2013December
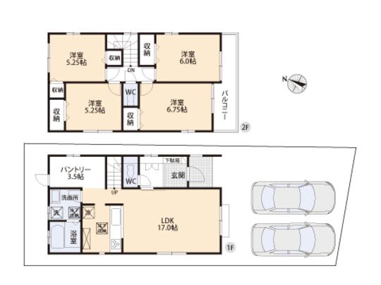
32,900,000 yen, 4LDK, 99.77 sq m
New Homes » Kanto » Saitama » Misato City
 
| | Misato City Prefecture 埼玉県三郷市 |
| Tsukuba Express "Misato center" walk 11 minutes つくばエクスプレス「三郷中央」歩11分 |
Price 価格 | | 32,900,000 yen 3290万円 | Floor plan 間取り | | 4LDK 4LDK | Units sold 販売戸数 | | 1 units 1戸 | Land area 土地面積 | | 128.65 sq m (measured) 128.65m2(実測) | Building area 建物面積 | | 99.77 sq m (measured) 99.77m2(実測) | Driveway burden-road 私道負担・道路 | | Nothing 無 | Completion date 完成時期(築年月) | | December 2013 2013年12月 | Address 住所 | | Misato City Prefecture Sakae 1 埼玉県三郷市栄1 | Traffic 交通 | | Tsukuba Express "Misato center" walk 11 minutes つくばエクスプレス「三郷中央」歩11分
| Contact お問い合せ先 | | TEL: 0800-805-6287 [Toll free] mobile phone ・ Also available from PHS Caller ID is not notified Please contact the "saw SUUMO (Sumo)" If it does not lead, If the real estate company TEL:0800-805-6287【通話料無料】携帯電話・PHSからもご利用いただけます 発信者番号は通知されません 「SUUMO(スーモ)を見た」と問い合わせください つながらない方、不動産会社の方は
| Building coverage, floor area ratio 建ぺい率・容積率 | | Fifty percent ・ 80% 50%・80% | Time residents 入居時期 | | Consultation 相談 | Land of the right form 土地の権利形態 | | Ownership 所有権 | Structure and method of construction 構造・工法 | | Wooden 2-story 木造2階建 | Use district 用途地域 | | One low-rise 1種低層 | Other limitations その他制限事項 | | Within land area 128.65m2 (about 88.47m2) high-voltage line under Other unused land interests about 0.41m2 Yes Share land interests about 1.77m2 Yes 土地面積128.65m2内(約88.47m2)高圧線下 他未利用地持分約0.41m2有 共有土地持分約1.77m2有 | Overview and notices その他概要・特記事項 | | Facilities: Public Water Supply, Individual septic tank, City gas, Building confirmation number: No. 01765, Parking: car space 設備:公営水道、個別浄化槽、都市ガス、建築確認番号:01765号、駐車場:カースペース | Company profile 会社概要 | | <Mediation> Minister of Land, Infrastructure and Transport (3) The 006,183 No. housing Information Center Soka store Seongnam Construction (Ltd.) Yubinbango340-0052 Soka KimuAkira cho 446-1 <仲介>国土交通大臣(3)第006183号住宅情報館 草加店城南建設(株)〒340-0052 埼玉県草加市金明町446-1 |
Local appearance photo現地外観写真  Local Photos
現地写真
 Local Photos
現地写真
Local photos, including front road前面道路含む現地写真  Frontal road
前面道路
Floor plan間取り図  32,900,000 yen, 4LDK, Land area 128.65 sq m , Building area 99.77 sq m floor plan
3290万円、4LDK、土地面積128.65m2、建物面積99.77m2 間取り図
Other localその他現地  Affinity elementary school A 10-minute walk (about 800m)
親和小学校 徒歩10分(約800m)
 Tsukuba Express Misato Central Station 11 minutes' walk (about 850m)
つくばエクスプレス三郷中央駅 徒歩11分(約850m)
Location
|