New Homes » Kanto » Saitama » Niiza
 
| | Saitama Prefecture Niiza 埼玉県新座市 |
| Tobu Tojo Line "Shiki" walk 9 minutes 東武東上線「志木」歩9分 |
| Shiki ・ Niiza Please leave my town Shiki head office of the community if "Shiki Station" the nearest thing. 志木市・新座市 『志木駅』最寄りの事なら地域密着のマイタウン志木本店にお任せください。 |
| Corresponding to the flat-35S, System kitchen, All room storage, Flat to the station, A quiet residential area, Washbasin with shower, Toilet 2 places, Warm water washing toilet seat, All room 6 tatami mats or more, City gas, Flat terrain フラット35Sに対応、システムキッチン、全居室収納、駅まで平坦、閑静な住宅地、シャワー付洗面台、トイレ2ヶ所、温水洗浄便座、全居室6畳以上、都市ガス、平坦地 |
Features pickup 特徴ピックアップ | | Corresponding to the flat-35S / System kitchen / All room storage / Flat to the station / A quiet residential area / Washbasin with shower / Toilet 2 places / Warm water washing toilet seat / All room 6 tatami mats or more / City gas / Flat terrain フラット35Sに対応 /システムキッチン /全居室収納 /駅まで平坦 /閑静な住宅地 /シャワー付洗面台 /トイレ2ヶ所 /温水洗浄便座 /全居室6畳以上 /都市ガス /平坦地 | Price 価格 | | 30,800,000 yen ~ 35,800,000 yen 3080万円 ~ 3580万円 | Floor plan 間取り | | 2LDK + S (storeroom) ・ 3LDK 2LDK+S(納戸)・3LDK | Units sold 販売戸数 | | 6 units 6戸 | Total units 総戸数 | | 6 units 6戸 | Land area 土地面積 | | 60.78 sq m ~ 65.66 sq m (measured) 60.78m2 ~ 65.66m2(実測) | Building area 建物面積 | | 86.11 sq m ~ 101.02 sq m (measured) 86.11m2 ~ 101.02m2(実測) | Completion date 完成時期(築年月) | | In late August 2012 2012年8月下旬 | Address 住所 | | Saitama Prefecture Niiza Kitano 3 埼玉県新座市北野3 | Traffic 交通 | | Tobu Tojo Line "Shiki" walk 9 minutes 東武東上線「志木」歩9分
| Related links 関連リンク | | [Related Sites of this company] 【この会社の関連サイト】 | Person in charge 担当者より | | Rep Yamashita Hiroshimigi Age: The Company of a wide range of network to the original 30s, We will always to convey fresh information. Also, Taking advantage of the My Home Purchase experience, Try the business of your eyes and we will respond. 担当者山下 浩右 年齢:30代当社の幅広いネットワークをもとに、常に新鮮な情報をお伝えさせて頂きます。また、マイホーム購入経験を生かし、お客様目線の営業を心掛けて対応させていただきます。 | Contact お問い合せ先 | | TEL: 0120-762666 [Toll free] Please contact the "saw SUUMO (Sumo)" TEL:0120-762666【通話料無料】「SUUMO(スーモ)を見た」と問い合わせください | Most price range 最多価格帯 | | 30 million yen ・ 33 million yen (each 2 units) 3000万円台・3300万円台(各2戸) | Building coverage, floor area ratio 建ぺい率・容積率 | | Kenpei rate: 60%, Volume ratio: 160% 建ペい率:60%、容積率:160% | Time residents 入居時期 | | Consultation 相談 | Land of the right form 土地の権利形態 | | Ownership 所有権 | Use district 用途地域 | | One middle and high 1種中高 | Overview and notices その他概要・特記事項 | | Contact: Yamashita Hiroshimigi , Building confirmation number: 00448 担当者:山下 浩右 、建築確認番号:00448 | Company profile 会社概要 | | <Mediation> Minister of Land, Infrastructure and Transport (1) No. 008439 (Ltd.) My Town Shiki head office Yubinbango351-0025 Saitama Prefecture Asaka Mihara 2-19-20 <仲介>国土交通大臣(1)第008439号(株)マイタウン志木本店〒351-0025 埼玉県朝霞市三原2-19-20 |
Rendering (appearance)完成予想図(外観)  (B-3 Building) Rendering
(B-3号棟)完成予想図
Local appearance photo現地外観写真  Local (August 2012) shooting
現地(2012年8月)撮影
 The entire compartment Figure
全体区画図
 Local (August 2012) shooting
現地(2012年8月)撮影
Local photos, including front road前面道路含む現地写真  Local (August 2012) shooting
現地(2012年8月)撮影
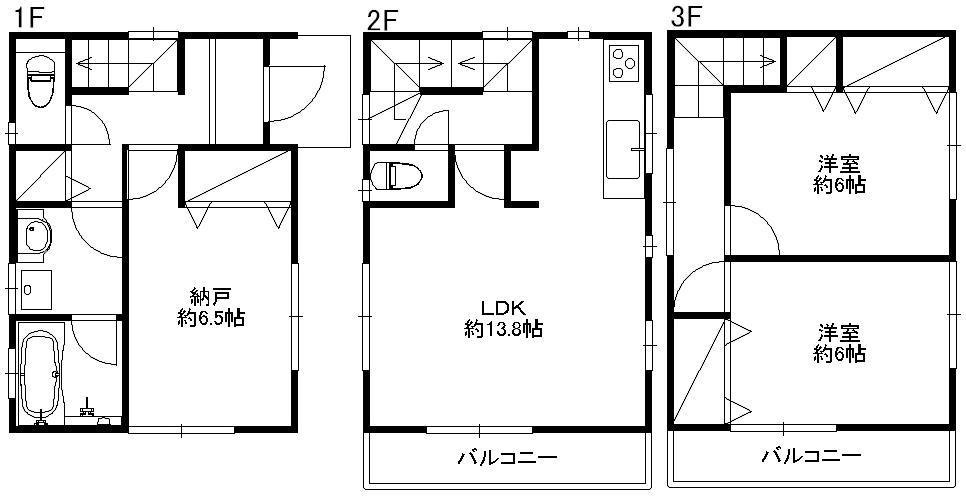
Floor plan間取り図  (A-1 Building), Price 33,800,000 yen, 3LDK, Land area 61.66 sq m , Building area 94.39 sq m
(A-1号棟)、価格3380万円、3LDK、土地面積61.66m2、建物面積94.39m2
 (A-3 Building), Price 30,800,000 yen, 2LDK+S, Land area 64.93 sq m , Building area 86.11 sq m
(A-3号棟)、価格3080万円、2LDK+S、土地面積64.93m2、建物面積86.11m2
 (A-5 Building), Price 33,800,000 yen, 2LDK+S, Land area 60.85 sq m , Building area 91.5 sq m
(A-5号棟)、価格3380万円、2LDK+S、土地面積60.85m2、建物面積91.5m2
 (A-6 Building), Price 32,800,000 yen, 3LDK, Land area 65.66 sq m , Building area 90.01 sq m
(A-6号棟)、価格3280万円、3LDK、土地面積65.66m2、建物面積90.01m2
Location
|