New Homes » Kanto » Saitama » Niiza


Saitama Prefecture Niiza
Seibu Ikebukuro Line "Hoya" walk 39 minutes
Peaceful new life to fulfill in a quiet residential area! It is your laundry Ease of every day in the south balcony
● face-to-face kitchen to enjoy the conversation with your family, even while cooking! ● convenient whole room with storage space! ● small children also reasonably attend Ikeda Elementary School (589m) is the proximity of the 8-minute walk!
Features pickup
System kitchen / All room storage / A quiet residential area / Japanese-style room / Toilet 2 places / 2-story / South balcony / The window in the bathroom / All room 6 tatami mats or more / All rooms are two-sided lighting
Price
23.4 million yen
Floor plan
4LDK
Units sold
1 units
Land area
127.42 sq m (registration)
Building area
95.64 sq m (registration)
Driveway burden-road
Nothing, Southeast 4.8m width
Completion date
August 2013
Address
Saitama Prefecture Niiza Ikeda 3
Traffic
Seibu Ikebukuro Line "Hoya" walk 39 minutes
Seibu Ikebukuro Line "Oizumigakuen" walk 45 minutes
Seibu Ikebukuro Line "Hibarigaoka" walk 50 minutes
Related links
[Related Sites of this company]
Person in charge
Rep Sakuma Hirohisa Age: 20 Daigyokai experience: do not lose to anyone goodness of the one-year youth and footwork.
Contact
TEL: 012025-3300 [Toll free] Please contact the "saw SUUMO (Sumo)"
Building coverage, floor area ratio
60% ・ Hundred percent
Time residents
Immediate available
Land of the right form
Ownership
Structure and method of construction
Wooden 2-story
Use district
One low-rise
Overview and notices
Contact: Sakuma Hirohisa, Facilities: Public Water Supply, This sewage, City gas, Building confirmation number: No. 12UDL1W Ken 00812, Parking: car space
Company profile
<Mediation> Saitama Governor (2) the first 020,328 No. Century 21 (Co.) East construction Yubinbango351-0112 Wako Maruyamadai 1-4-2


Local appearance photo

Local appearance photo. Local (August 2013) Shooting
Local (August 2013) Shooting

Local appearance photo. Local (August 2013) Shooting
Local (August 2013) Shooting

Kitchen

Kitchen. Local (August 2013) Shooting
Local (August 2013) Shooting

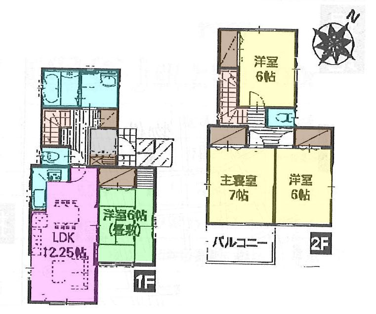
Floor plan

Floor plan. 23.4 million yen, 4LDK, Land area 127.42 sq m , Building area 95.64 sq m
23.4 million yen, 4LDK, Land area 127.42 sq m , Building area 95.64 sq m

Living

Living. Local (August 2013) Shooting
Local (August 2013) Shooting

Bathroom

Bathroom. Local (August 2013) Shooting
Local (August 2013) Shooting

Entrance

Entrance. Local (August 2013) Shooting
Local (August 2013) Shooting

Supermarket

Supermarket. Until Berg Ikeda shop 649m
Until Berg Ikeda shop 649m

Home center

Home center. 859m to Royal Home Center Niiza store
859m to Royal Home Center Niiza store

Junior high school

Junior high school. Niiza Tatsudai 859m until the third junior high school
Niiza Tatsudai 859m until the third junior high school

Primary school

Primary school. Niiza 589m to stand Ikeda elementary school
Niiza 589m to stand Ikeda elementary school



Location