New Homes » Kanto » Saitama » Niiza
 
| | Saitama Prefecture Niiza 埼玉県新座市 |
| Seibu Ikebukuro Line "Higashi Kurume" walk 25 minutes 西武池袋線「東久留米」歩25分 |
| All the living room facing south, This family of smile full of you live in an open exclusive location. Lighting all LED adopted by the peace of mind 20 years 全居室南向き、開放的な立地で家族の笑顔あふれるお住まいです。照明すべてLED採用で20年間安心 |
| ◆ Peace of mind even in the winter floor heating with ◆ Living: Down Light ◆ Lighting LED ◆ Shoes-in closet ◆ Pillars was skived ◆ Walk-in closet ◆ System kitchen with built-in dishwashing ◆冬でも安心床暖房つき◆リビング:ダウンライト◆照明LED◆シューズインクローゼット◆角取りをした柱◆ウォークインクローゼット◆ビルトイン食洗器付きのシステムキッチン |
Features pickup 特徴ピックアップ | | Parking two Allowed / System kitchen / Yang per good / LDK15 tatami mats or more / Japanese-style room / Face-to-face kitchen / Toilet 2 places / 2-story / South balcony / Double-glazing / Zenshitsuminami direction / Warm water washing toilet seat / Underfloor Storage / TV monitor interphone / Ventilation good / Dish washing dryer / Walk-in closet / All room 6 tatami mats or more / Water filter 駐車2台可 /システムキッチン /陽当り良好 /LDK15畳以上 /和室 /対面式キッチン /トイレ2ヶ所 /2階建 /南面バルコニー /複層ガラス /全室南向き /温水洗浄便座 /床下収納 /TVモニタ付インターホン /通風良好 /食器洗乾燥機 /ウォークインクロゼット /全居室6畳以上 /浄水器 | Price 価格 | | 39,800,000 yen 3980万円 | Floor plan 間取り | | 4LDK 4LDK | Units sold 販売戸数 | | 1 units 1戸 | Total units 総戸数 | | 2 units 2戸 | Land area 土地面積 | | 117.2 sq m (35.45 square meters) 117.2m2(35.45坪) | Building area 建物面積 | | 105.89 sq m (32.03 square meters) 105.89m2(32.03坪) | Driveway burden-road 私道負担・道路 | | Road width: 4m 道路幅:4m | Completion date 完成時期(築年月) | | November 2013 2013年11月 | Address 住所 | | Saitama Prefecture Niiza Nishibori 2-3-35 埼玉県新座市西堀2-3-35 | Traffic 交通 | | Seibu Ikebukuro Line "Higashi Kurume" walk 25 minutes Seibu Ikebukuro Line "Higashi Kurume" 8 minutes Higashikurume park walk 4 minutes by bus 西武池袋線「東久留米」歩25分 西武池袋線「東久留米」バス8分東久留米団地歩4分
| Related links 関連リンク | | [Related Sites of this company] 【この会社の関連サイト】 | Person in charge 担当者より | | Rep Fukasawa Tatsuya Age: 20s Actually I also refrain from marriage, It's home and was the midst of the looking for My Home, I think more can suggestions from our customers in the near position. Thank you 担当者深澤 達弥年齢:20代実は私も結婚を控えて、ただいまマイホーム探しをしている最中でして、よりお客様に近い立場からのご提案ができるかと思います。よろしくお願いいたします | Contact お問い合せ先 | | TEL: 0800-603-7718 [Toll free] mobile phone ・ Also available from PHS Caller ID is not notified Please contact the "saw SUUMO (Sumo)" If it does not lead, If the real estate company TEL:0800-603-7718【通話料無料】携帯電話・PHSからもご利用いただけます 発信者番号は通知されません 「SUUMO(スーモ)を見た」と問い合わせください つながらない方、不動産会社の方は
| Building coverage, floor area ratio 建ぺい率・容積率 | | Kenpei rate: 60%, Volume ratio: 100% 建ペい率:60%、容積率:100% | Time residents 入居時期 | | Consultation 相談 | Land of the right form 土地の権利形態 | | Ownership 所有権 | Structure and method of construction 構造・工法 | | Wooden 2-story 木造2階建 | Use district 用途地域 | | One low-rise 1種低層 | Overview and notices その他概要・特記事項 | | Contact: Fukasawa Tatsuya, Building confirmation number: first KS113-3610-00250 担当者:深澤 達弥、建築確認番号:第KS113-3610-00250 | Company profile 会社概要 | | <Mediation> Governor of Tokyo (2) No. 087596 (Corporation) Tokyo Metropolitan Government Building Lots and Buildings Transaction Business Association (Corporation) metropolitan area real estate Fair Trade Council member Century 21 (Ltd.) Ah Crest Hibarigaoka shop Yubinbango188-0001 Tokyo Nishitokyo Yato cho 2-11-15 first comfort1 floor <仲介>東京都知事(2)第087596号(公社)東京都宅地建物取引業協会会員 (公社)首都圏不動産公正取引協議会加盟センチュリー21(株)アークレストひばりヶ丘店〒188-0001 東京都西東京市谷戸町2-11-15 first comfort1階 |
Local appearance photo現地外観写真  Local (12 May 2013) Shooting
現地(2013年12月)撮影
 Local (12 May 2013) Shooting
現地(2013年12月)撮影
Livingリビング  Local (12 May 2013) Shooting
現地(2013年12月)撮影
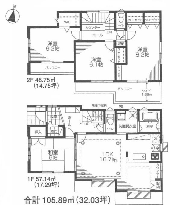
Floor plan間取り図  (B Building), Price 39,800,000 yen, 4LDK, Land area 117.2 sq m , Building area 105.89 sq m
(B号棟)、価格3980万円、4LDK、土地面積117.2m2、建物面積105.89m2
Bathroom浴室  Indoor (12 May 2013) Shooting
室内(2013年12月)撮影
Kitchenキッチン  Indoor (12 May 2013) Shooting
室内(2013年12月)撮影
Non-living roomリビング以外の居室  Indoor (12 May 2013) Shooting
室内(2013年12月)撮影
Balconyバルコニー  Local (12 May 2013) Shooting
現地(2013年12月)撮影
 Other
その他
Otherその他  Stairs
階段
Wash basin, toilet洗面台・洗面所  Indoor (12 May 2013) Shooting
室内(2013年12月)撮影
Entrance玄関  Local (12 May 2013) Shooting
現地(2013年12月)撮影
 Local (12 May 2013) Shooting
現地(2013年12月)撮影
Kitchenキッチン  Indoor (12 May 2013) Shooting
室内(2013年12月)撮影
Non-living roomリビング以外の居室  Indoor (12 May 2013) Shooting
室内(2013年12月)撮影
Livingリビング  Indoor (12 May 2013) Shooting
室内(2013年12月)撮影
Toiletトイレ  Indoor (12 May 2013) Shooting
室内(2013年12月)撮影
Location
|