New Homes » Kanto » Saitama » Niiza
 
| | Saitama Prefecture Niiza 埼玉県新座市 |
| Seibu Ikebukuro Line "Hoya" walk 20 minutes 西武池袋線「保谷」歩20分 |
| Bright house wrapped in a peaceful new life warm sunshine to fulfill in a quiet residential area. 閑静な住宅地で叶える穏やかな新生活暖かい陽光に包まれる明るい住まいです。 |
| ● With big success bathroom dryer in your laundry day of rain! ● all room convenient with storage space! ● TV monitor with intercom that visitors who can be confirmed! ●雨の日のお洗濯にも大活躍な浴室乾燥機付き!●全居室便利な収納スペース付き!●来客者が確認できるTVモニター付きインターホン! |
Features pickup 特徴ピックアップ | | Parking two Allowed / System kitchen / Bathroom Dryer / Yang per good / All room storage / A quiet residential area / LDK15 tatami mats or more / Washbasin with shower / Toilet 2 places / Southeast direction / Double-glazing / Underfloor Storage / The window in the bathroom / TV monitor interphone / All living room flooring / Three-story or more 駐車2台可 /システムキッチン /浴室乾燥機 /陽当り良好 /全居室収納 /閑静な住宅地 /LDK15畳以上 /シャワー付洗面台 /トイレ2ヶ所 /東南向き /複層ガラス /床下収納 /浴室に窓 /TVモニタ付インターホン /全居室フローリング /3階建以上 | Price 価格 | | 27,800,000 yen 2780万円 | Floor plan 間取り | | 4LDK 4LDK | Units sold 販売戸数 | | 1 units 1戸 | Land area 土地面積 | | 66.77 sq m (registration) 66.77m2(登記) | Building area 建物面積 | | 95.63 sq m (registration), Among the first floor garage 11.17 sq m 95.63m2(登記)、うち1階車庫11.17m2 | Driveway burden-road 私道負担・道路 | | Nothing, Northwest 4m width 無、北西4m幅 | Completion date 完成時期(築年月) | | October 2013 2013年10月 | Address 住所 | | Saitama Prefecture Nizashinodera 3 埼玉県新座市野寺3 | Traffic 交通 | | Seibu Ikebukuro Line "Hoya" walk 20 minutes Seibu Ikebukuro Line "Hibarigaoka" walk 33 minutes Seibu Ikebukuro Line "Higashi Kurume" walk 42 minutes 西武池袋線「保谷」歩20分 西武池袋線「ひばりヶ丘」歩33分 西武池袋線「東久留米」歩42分
| Related links 関連リンク | | [Related Sites of this company] 【この会社の関連サイト】 | Person in charge 担当者より | | Rep Masamoto Hill in good faith in response, To customers more to help to get used to more your happiness. 担当者八城 丘誠実に対応し、お客様がより一層お幸せになれるようお手伝いさせて頂きます。 | Contact お問い合せ先 | | TEL: 012025-3300 [Toll free] Please contact the "saw SUUMO (Sumo)" TEL:012025-3300【通話料無料】「SUUMO(スーモ)を見た」と問い合わせください | Building coverage, floor area ratio 建ぺい率・容積率 | | 60% ・ 200% 60%・200% | Time residents 入居時期 | | Consultation 相談 | Land of the right form 土地の権利形態 | | Ownership 所有権 | Structure and method of construction 構造・工法 | | Wooden three-story 木造3階建 | Use district 用途地域 | | One dwelling 1種住居 | Overview and notices その他概要・特記事項 | | Contact: Masamoto hill, Facilities: Public Water Supply, This sewage, City gas, Building confirmation number: TKK 確済 13-653, Parking: car space 担当者:八城 丘、設備:公営水道、本下水、都市ガス、建築確認番号:TKK確済13-653、駐車場:カースペース | Company profile 会社概要 | | <Mediation> Saitama Governor (2) the first 020,328 No. Century 21 (Co.) East construction Yubinbango351-0112 Wako Maruyamadai 1-4-2 <仲介>埼玉県知事(2)第020328号センチュリー21(株)東日本建設〒351-0112 埼玉県和光市丸山台1-4-2 |
Local appearance photo現地外観写真  Local (11 May 2013) Shooting
現地(2013年11月)撮影
Parking lot駐車場  Local (11 May 2013) Shooting
現地(2013年11月)撮影
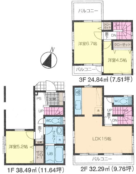
Floor plan間取り図  27,800,000 yen, 4LDK, Land area 66.77 sq m , Building area 95.63 sq m
2780万円、4LDK、土地面積66.77m2、建物面積95.63m2
Livingリビング  Local (11 May 2013) Shooting
現地(2013年11月)撮影
Bathroom浴室  Local (11 May 2013) Shooting
現地(2013年11月)撮影
Kitchenキッチン  Local (11 May 2013) Shooting
現地(2013年11月)撮影
Local photos, including front road前面道路含む現地写真  Local (11 May 2013) Shooting
現地(2013年11月)撮影
Supermarketスーパー  501m until the Summit store Niiza Katayama shop
サミットストア新座片山店まで501m
Livingリビング  Local (11 May 2013) Shooting
現地(2013年11月)撮影
Kitchenキッチン  Local (11 May 2013) Shooting
現地(2013年11月)撮影
Supermarketスーパー  696m until Inageya Niiza Nodera shop
いなげや新座野寺店まで696m
 Until Berg Ikeda shop 1087m
ベルク池田店まで1087m
Home centerホームセンター  Komeri Co., Ltd. hard & Green Hoya Kitamachi 1077m to shop
コメリハード&グリーン保谷北町店まで1077m
Location
|