New Homes » Kanto » Saitama » Niiza


Saitama Prefecture Niiza
Seibu Ikebukuro Line "Higashi Kurume" walk 24 minutes
Bright residence that is wrapped in a new life with plenty of sunlight to fulfill in a quiet residential area.
● Intercom with TV monitor visitor who is found! ● Happy to comfort your laundry daily in the south balcony! ● convenient whole room with storage space!
Features pickup
Corresponding to the flat-35S / Pre-ground survey / Facing south / System kitchen / Yang per good / All room storage / A quiet residential area / LDK15 tatami mats or more / Around traffic fewer / Japanese-style room / Shaping land / 2-story / South balcony / Double-glazing / Zenshitsuminami direction / Underfloor Storage / TV monitor interphone / City gas / Located on a hill
Price
28.8 million yen
Floor plan
4LDK
Units sold
1 units
Land area
103.09 sq m (measured)
Building area
96.05 sq m (registration)
Driveway burden-road
Nothing, Southwest 4.8m width, Southeast 8m width
Completion date
November 2013
Address
Saitama Prefecture Niiza Nishibori 1
Traffic
Seibu Ikebukuro Line "Higashi Kurume" walk 24 minutes
Seibu Ikebukuro Line "Higashi Kurume" bus 6 minutes Higashikurume park bus stop walk 2 minutes
Seibu Ikebukuro Line "Hibarigaoka" walk 37 minutes
Related links
[Related Sites of this company]
Person in charge
[Regarding this property.] New Seiyu is now open in the near! The number of the bus is also a multitude of subway par.
Contact
TEL: 012025-3300 [Toll free] Please contact the "saw SUUMO (Sumo)"
Building coverage, floor area ratio
60% ・ Hundred percent
Time residents
Consultation
Land of the right form
Ownership
Structure and method of construction
Wooden 2-story
Use district
One low-rise
Overview and notices
Facilities: Public Water Supply, This sewage, City gas, Building confirmation number: HPA-13-03043-1, Parking: car space
Company profile
<Mediation> Saitama Governor (2) the first 020,328 No. Century 21 (Co.) East construction Yubinbango351-0112 Wako Maruyamadai 1-4-2


Local appearance photo

Local appearance photo. Local (10 May 2013) Shooting
Local (10 May 2013) Shooting

Local appearance photo. Local (10 May 2013) Shooting
Local (10 May 2013) Shooting

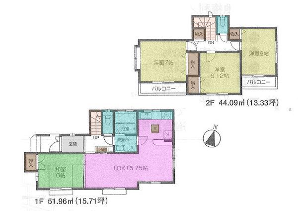
Floor plan

Floor plan. 28.8 million yen, 4LDK, Land area 103.09 sq m , Building area 96.05 sq m
28.8 million yen, 4LDK, Land area 103.09 sq m , Building area 96.05 sq m

Living

Living. Local (10 May 2013) Shooting
Local (10 May 2013) Shooting

Bathroom

Bathroom. Local (10 May 2013) Shooting
Local (10 May 2013) Shooting

Kitchen

Kitchen. Local (10 May 2013) Shooting
Local (10 May 2013) Shooting

Local photos, including front road

Local photos, including front road. Local (10 May 2013) Shooting
Local (10 May 2013) Shooting

Station

station. Seibu Ikebukuro Line "Higashi Kurume" 1900m to the station
Seibu Ikebukuro Line "Higashi Kurume" 1900m to the station



Location