2014March
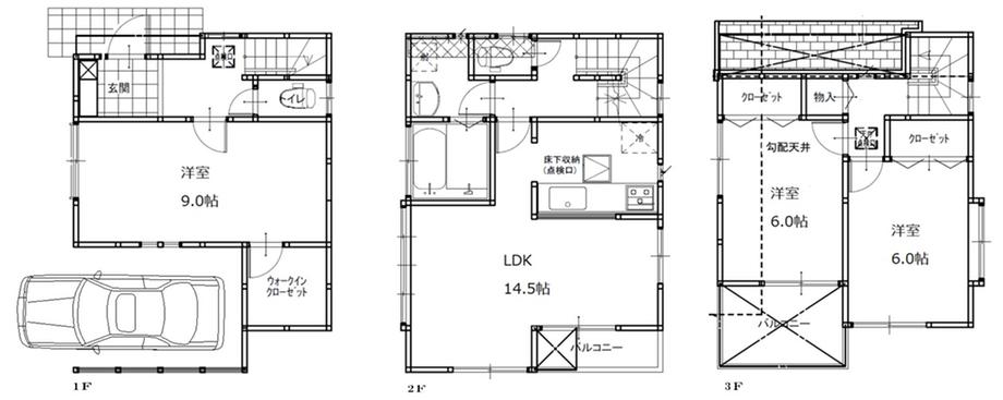
26,800,000 yen, 3LDK, 90.71 sq m
New Homes » Kanto » Saitama » Niiza
 
| | Saitama Prefecture Niiza 埼玉県新座市 |
| Seibu Ikebukuro Line "Hibarigaoka" bus 4 minutes Firewatch under walk 3 minutes 西武池袋線「ひばりヶ丘」バス4分火の見下歩3分 |
| Full-time mediated ・ Enhancing equipment such as dish washing dryer ・ Up to about eight stone elementary school 130m Up to about FamilyMart 150m Up to about Inageya 500m 専任媒介・食器洗乾燥機等の充実設備・八石小学校まで約130m ファミリーマートまで約150m いなげやまで約500m |
Features pickup 特徴ピックアップ | | Super close / System kitchen / All room storage / Washbasin with shower / Face-to-face kitchen / Toilet 2 places / 2 or more sides balcony / Warm water washing toilet seat / Underfloor Storage / TV monitor interphone / All living room flooring / Dish washing dryer / Walk-in closet / All room 6 tatami mats or more / Three-story or more スーパーが近い /システムキッチン /全居室収納 /シャワー付洗面台 /対面式キッチン /トイレ2ヶ所 /2面以上バルコニー /温水洗浄便座 /床下収納 /TVモニタ付インターホン /全居室フローリング /食器洗乾燥機 /ウォークインクロゼット /全居室6畳以上 /3階建以上 | Price 価格 | | 26,800,000 yen 2680万円 | Floor plan 間取り | | 3LDK 3LDK | Units sold 販売戸数 | | 1 units 1戸 | Total units 総戸数 | | 1 units 1戸 | Land area 土地面積 | | 64.92 sq m (19.63 tsubo) (Registration) 64.92m2(19.63坪)(登記) | Building area 建物面積 | | 90.71 sq m (27.43 tsubo) (Registration) 90.71m2(27.43坪)(登記) | Driveway burden-road 私道負担・道路 | | Nothing 無 | Completion date 完成時期(築年月) | | February 2014 2014年2月 | Address 住所 | | Saitama Prefecture Nizashinodera 2 埼玉県新座市野寺2 | Traffic 交通 | | Seibu Ikebukuro Line "Hibarigaoka" bus 4 minutes Firewatch under walk 3 minutes Seibu Ikebukuro Line "Hoya" walk 34 minutes Seibu Ikebukuro Line "Higashi Kurume" walk 30 minutes 西武池袋線「ひばりヶ丘」バス4分火の見下歩3分 西武池袋線「保谷」歩34分 西武池袋線「東久留米」歩30分
| Person in charge 担当者より | | Rep wilderness Naomi Age: 30 Daigyokai Experience: 11 years [Sales] I also I purchased my home a few years ago. "House" is the highest shopping in life. We are pleased that the help can be. I always thought that it be nice If you can end long-term relationship. 担当者原野 直美年齢:30代業界経験:11年【営業】私も数年前にマイホームを購入致しました。「家」は人生の中で一番高いお買い物。そのお手伝いが出来ることを嬉しく思います。末長くお付き合いが出来たらいいなといつも思っています。 | Contact お問い合せ先 | | TEL: 0800-602-5712 [Toll free] mobile phone ・ Also available from PHS Caller ID is not notified Please contact the "saw SUUMO (Sumo)" If it does not lead, If the real estate company TEL:0800-602-5712【通話料無料】携帯電話・PHSからもご利用いただけます 発信者番号は通知されません 「SUUMO(スーモ)を見た」と問い合わせください つながらない方、不動産会社の方は
| Building coverage, floor area ratio 建ぺい率・容積率 | | 60% ・ 200% 60%・200% | Time residents 入居時期 | | March 2014 schedule 2014年3月予定 | Land of the right form 土地の権利形態 | | Ownership 所有権 | Structure and method of construction 構造・工法 | | Wooden three-story 木造3階建 | Use district 用途地域 | | One middle and high 1種中高 | Overview and notices その他概要・特記事項 | | Contact: wilderness Naomi, Building confirmation number: 20751, Parking: car space 担当者:原野 直美、建築確認番号:20751、駐車場:カースペース | Company profile 会社概要 | | <Mediation> Saitama Governor (1) No. 022059 (Ltd.) My Town Seibu Yubinbango352-0035 Saitama Prefecture Niiza Kurihara 5-6-24 <仲介>埼玉県知事(1)第022059号(株)マイタウン西武〒352-0035 埼玉県新座市栗原5-6-24 |
Local appearance photo現地外観写真  Super convenience store near the living environment is good
スーパーコンビニ近く住環境良好です
Floor plan間取り図  26,800,000 yen, 3LDK, Land area 64.92 sq m , Building area 90.71 sq m
2680万円、3LDK、土地面積64.92m2、建物面積90.71m2
Local photos, including front road前面道路含む現地写真  Leafy quiet residential area
緑豊かな閑静な住宅街
Primary school小学校  130m to Niiza City eight stone elementary school
新座市立八石小学校まで130m
Supermarketスーパー  500m to Inageya Niiza Nodera shop
いなげや新座野寺店まで500m
Convenience storeコンビニ  FamilyMart Niiza 150m to Kurihara shop
ファミリーマート新座栗原店まで150m
Kindergarten ・ Nursery幼稚園・保育園  AkiraAya to kindergarten 410m
明彩幼稚園まで410m
Location
|