New Homes » Kanto » Saitama » Niiza
 
| | Saitama Prefecture Niiza 埼玉県新座市 |
| Seibu Ikebukuro Line "Higashi Kurume" bus 7 minutes Higashikurume park walk 9 minutes 西武池袋線「東久留米」バス7分東久留米団地歩9分 |
| Storage enhancement in with Grenier Shopping facility enhancement [Toll-free: 0120-13-3107] We look forward to. グルニエ付にて収納充実 買物施設充実 【通話無料:0120-13-3107】お待ちしております。 |
| All rooms are two-sided lighting, Attic storage, All room storage, The window in the bathroom, Year Available, Washbasin with shower, Super close, It is close to the city, System kitchen, A quiet residential area, Around traffic fewer, garden, 2-story, Double-glazing, Otobasu, Warm water washing toilet seat, Nantei, High-function toilet, Urban neighborhood, Ventilation good, Water filter, City gas, Maintained sidewalk 全室2面採光、屋根裏収納、全居室収納、浴室に窓、年内入居可、シャワー付洗面台、スーパーが近い、市街地が近い、システムキッチン、閑静な住宅地、周辺交通量少なめ、庭、2階建、複層ガラス、オートバス、温水洗浄便座、南庭、高機能トイレ、都市近郊、通風良好、浄水器、都市ガス、整備された歩道 |
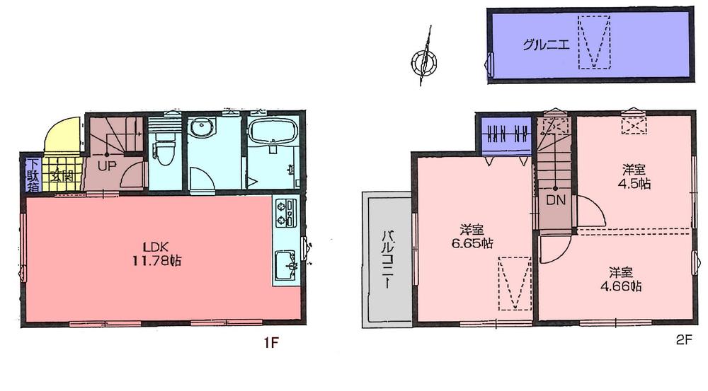
Features pickup 特徴ピックアップ | | Year Available / Super close / It is close to the city / System kitchen / All room storage / A quiet residential area / Around traffic fewer / garden / Washbasin with shower / 2-story / Double-glazing / Otobasu / Warm water washing toilet seat / Nantei / The window in the bathroom / High-function toilet / Urban neighborhood / Ventilation good / All living room flooring / Water filter / City gas / All rooms are two-sided lighting / Maintained sidewalk / Attic storage 年内入居可 /スーパーが近い /市街地が近い /システムキッチン /全居室収納 /閑静な住宅地 /周辺交通量少なめ /庭 /シャワー付洗面台 /2階建 /複層ガラス /オートバス /温水洗浄便座 /南庭 /浴室に窓 /高機能トイレ /都市近郊 /通風良好 /全居室フローリング /浄水器 /都市ガス /全室2面採光 /整備された歩道 /屋根裏収納 | Price 価格 | | 19,800,000 yen 1980万円 | Floor plan 間取り | | 3LDK 3LDK | Units sold 販売戸数 | | 1 units 1戸 | Land area 土地面積 | | 58.48 sq m (measured) 58.48m2(実測) | Building area 建物面積 | | 58.46 sq m (measured) 58.46m2(実測) | Driveway burden-road 私道負担・道路 | | 0.49 sq m 0.49m2 | Completion date 完成時期(築年月) | | December 2013 2013年12月 | Address 住所 | | Saitama Prefecture Niiza Ishigami 1 埼玉県新座市石神1 | Traffic 交通 | | Seibu Ikebukuro Line "Higashi Kurume" bus 7 minutes Higashikurume park walk 9 minutes Seibu Ikebukuro Line "Hibarigaoka" walk 37 minutes Seibu Ikebukuro Line "Kiyose" walk 42 minutes 西武池袋線「東久留米」バス7分東久留米団地歩9分 西武池袋線「ひばりヶ丘」歩37分 西武池袋線「清瀬」歩42分
| Related links 関連リンク | | [Related Sites of this company] 【この会社の関連サイト】 | Person in charge 担当者より | | Person in charge of real-estate and building FP Sengoku Eiji Age: 40 Daigyokai experience: our work 12 years is not considered only help looking for residence. Refinancing and prepayments, Also answer to the consultation after the end of fixed-rate selection period, Is possible to give the best offer in the future we believe that our mission. 担当者宅建FP千石 栄次年齢:40代業界経験:12年私達の仕事はお住まい探しのお手伝いだけとは考えておりません。借り換えや繰上げ返済、固定金利選択期間終了後のご相談にもお答えし、将来にわたって最適な提案を差し上げることが私達の使命と考えております。 | Contact お問い合せ先 | | TEL: 0800-603-0553 [Toll free] mobile phone ・ Also available from PHS Caller ID is not notified Please contact the "saw SUUMO (Sumo)" If it does not lead, If the real estate company TEL:0800-603-0553【通話料無料】携帯電話・PHSからもご利用いただけます 発信者番号は通知されません 「SUUMO(スーモ)を見た」と問い合わせください つながらない方、不動産会社の方は
| Building coverage, floor area ratio 建ぺい率・容積率 | | 60% ・ Hundred percent 60%・100% | Time residents 入居時期 | | Consultation 相談 | Land of the right form 土地の権利形態 | | Ownership 所有権 | Structure and method of construction 構造・工法 | | Wooden 2-story 木造2階建 | Use district 用途地域 | | One low-rise 1種低層 | Other limitations その他制限事項 | | Article 43 proviso adaptation road 43条但し書き適応道路 | Overview and notices その他概要・特記事項 | | Contact: Sengoku Eiji, Facilities: Public Water Supply, This sewage, City gas, Building confirmation number: No. H2500006, Parking: car space 担当者:千石 栄次、設備:公営水道、本下水、都市ガス、建築確認番号:第H2500006号、駐車場:カースペース | Company profile 会社概要 | | <Mediation> Governor of Tokyo (9) No. 042787 (Corporation) Tokyo Metropolitan Government Building Lots and Buildings Transaction Business Association (Corporation) metropolitan area real estate Fair Trade Council member THR housing distribution Group Co., Ltd., Toho House Kokubunji Yubinbango185-0021 Tokyo Kokubunji Minamicho 3-22-2 Tokio Marine & Nichido Building first floor ・ Second floor <仲介>東京都知事(9)第042787号(公社)東京都宅地建物取引業協会会員 (公社)首都圏不動産公正取引協議会加盟THR住宅流通グループ(株)東宝ハウス国分寺〒185-0021 東京都国分寺市南町3-22-2 東京海上日動ビル1階・2階 |
Floor plan間取り図  19,800,000 yen, 3LDK, Land area 58.48 sq m , Building area 58.46 sq m
1980万円、3LDK、土地面積58.48m2、建物面積58.46m2
Primary school小学校  320m to Niiza Tateishi God Elementary School
新座市立石神小学校まで320m
Junior high school中学校  Niiza 800m to stand sixth junior high school
新座市立第六中学校 まで800m
Kindergarten ・ Nursery幼稚園・保育園  450m to light the second nursery
光第二保育園 まで450m
Park公園  850m to historic park
史跡公園 まで850m
Hospital病院  Niiza 700m to the hospital
新座病院 まで700m
Presentプレゼント ![Present. Wife and children, I want you to take advantage of after purchase with great feeling of appreciation to your husband [House Owner's Club] Food and drink, Beauty, Semi-permanently available the dozens of discount coupons and travel. [Toll-free: 0120-13-3107] We look forward to.](/images/saitama/niiza/a0256b0002.jpg) Wife and children, I want you to take advantage of after purchase with great feeling of appreciation to your husband [House Owner's Club] Food and drink, Beauty, Semi-permanently available the dozens of discount coupons and travel. [Toll-free: 0120-13-3107] We look forward to.
奥様やお子様、ご主人へのねぎらいの気持ちをこめて購入後に活用してほしい【ハウスオーナーズクラブ】飲食、美容、旅行など数十社の割引クーポンを半永久的に使用可能。【通話無料:0120-13-3107】お待ちしております。
You will receive this brochureこんなパンフレットが届きます ![You will receive this brochure. It is during the present campaign implementation of non-public property brochure. [Toll-free: 0120-13-3107] We look forward to.](/images/saitama/niiza/a0256b0003.jpg) It is during the present campaign implementation of non-public property brochure. [Toll-free: 0120-13-3107] We look forward to.
未公開物件パンフレットのプレゼントキャンペーン実施中です。【通話無料:0120-13-3107】お待ちしております。
Location
|