New Homes » Kanto » Saitama » Niiza
 
| | Saitama Prefecture Niiza 埼玉県新座市 |
| JR Musashino Line "Niiza" walk 17 minutes JR武蔵野線「新座」歩17分 |
| ☆ 3LDK + S ☆ ☆ 2 stations within walking distance ☆ ☆ Living environment enhancement ☆ ☆3LDK+S☆☆2駅徒歩圏☆☆住環境充実☆ |
| Facing south, LDK15 tatami mats or more, City gas, Face-to-face kitchen, Super close, Bathroom Dryer, Construction housing performance with evaluation, Design house performance with evaluation, 2 along the line more accessible, System kitchen, Yang per good, All room storage, Siemens south road, Washbasin with shower, Toilet 2 places, 2 or more sides balcony, Double-glazing, The window in the bathroom, TV monitor interphone, All living room flooring, Built garage, Dish washing dryer, Three-story or more, Living stairs, Storeroom 南向き、LDK15畳以上、都市ガス、対面式キッチン、スーパーが近い、浴室乾燥機、建設住宅性能評価付、設計住宅性能評価付、2沿線以上利用可、システムキッチン、陽当り良好、全居室収納、南側道路面す、シャワー付洗面台、トイレ2ヶ所、2面以上バルコニー、複層ガラス、浴室に窓、TVモニタ付インターホン、全居室フローリング、ビルトガレージ、食器洗乾燥機、3階建以上、リビング階段、納戸 |
Features pickup 特徴ピックアップ | | Construction housing performance with evaluation / Design house performance with evaluation / 2 along the line more accessible / Super close / Facing south / System kitchen / Bathroom Dryer / Yang per good / All room storage / Siemens south road / LDK15 tatami mats or more / Washbasin with shower / Face-to-face kitchen / Toilet 2 places / 2 or more sides balcony / Double-glazing / The window in the bathroom / TV monitor interphone / All living room flooring / Built garage / Dish washing dryer / Three-story or more / Living stairs / City gas / Storeroom 建設住宅性能評価付 /設計住宅性能評価付 /2沿線以上利用可 /スーパーが近い /南向き /システムキッチン /浴室乾燥機 /陽当り良好 /全居室収納 /南側道路面す /LDK15畳以上 /シャワー付洗面台 /対面式キッチン /トイレ2ヶ所 /2面以上バルコニー /複層ガラス /浴室に窓 /TVモニタ付インターホン /全居室フローリング /ビルトガレージ /食器洗乾燥機 /3階建以上 /リビング階段 /都市ガス /納戸 | Price 価格 | | 33,300,000 yen 3330万円 | Floor plan 間取り | | 3LDK + S (storeroom) 3LDK+S(納戸) | Units sold 販売戸数 | | 1 units 1戸 | Total units 総戸数 | | 1 units 1戸 | Land area 土地面積 | | 82.56 sq m 82.56m2 | Building area 建物面積 | | 108.47 sq m , Among the first floor garage 8.69 sq m 108.47m2、うち1階車庫8.69m2 | Driveway burden-road 私道負担・道路 | | Nothing, South 5.4m width 無、南5.4m幅 | Completion date 完成時期(築年月) | | January 2014 2014年1月 | Address 住所 | | Saitama Prefecture Niiza Kitano 1 埼玉県新座市北野1 | Traffic 交通 | | JR Musashino Line "Niiza" walk 17 minutes Tobu Tojo Line "Shiki" walk 22 minutes Tobu Tojo Line "Asakadai" walk 27 minutes JR武蔵野線「新座」歩17分東武東上線「志木」歩22分 東武東上線「朝霞台」歩27分
| Related links 関連リンク | | [Related Sites of this company] 【この会社の関連サイト】 | Contact お問い合せ先 | | (Ltd.) Land style TEL: 0800-603-9115 [Toll free] mobile phone ・ Also available from PHS Caller ID is not notified Please contact the "saw SUUMO (Sumo)" If it does not lead, If the real estate company (株)ランドスタイルTEL:0800-603-9115【通話料無料】携帯電話・PHSからもご利用いただけます 発信者番号は通知されません 「SUUMO(スーモ)を見た」と問い合わせください つながらない方、不動産会社の方は
| Building coverage, floor area ratio 建ぺい率・容積率 | | 60% ・ 200% 60%・200% | Time residents 入居時期 | | February 2014 schedule 2014年2月予定 | Land of the right form 土地の権利形態 | | Ownership 所有権 | Structure and method of construction 構造・工法 | | Wooden three-story (2 × 4 construction method) 木造3階建(2×4工法) | Use district 用途地域 | | One dwelling 1種住居 | Other limitations その他制限事項 | | Some city planning road 一部都市計画道路 | Overview and notices その他概要・特記事項 | | Facilities: Public Water Supply, This sewage, City gas, Building confirmation number: No. H25SHC114040, Parking: car space 設備:公営水道、本下水、都市ガス、建築確認番号:第H25SHC114040号、駐車場:カースペース | Company profile 会社概要 | | <Mediation> Saitama Governor (1) No. 021596 (Ltd.) land style Yubinbango352-0001 Saitama Prefecture Niiza Tohoku 2-14-7 <仲介>埼玉県知事(1)第021596号(株)ランドスタイル〒352-0001 埼玉県新座市東北2-14-7 |
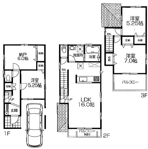
Floor plan間取り図  33,300,000 yen, 3LDK + S (storeroom), Land area 82.56 sq m , Building area 108.47 sq m
3330万円、3LDK+S(納戸)、土地面積82.56m2、建物面積108.47m2
 Local appearance photo
現地外観写真
 Local photos, including front road
前面道路含む現地写真
Primary school小学校  850m to Northeast Elementary School
東北小学校まで850m
Junior high school中学校  Niiza 960m until the second junior high school
新座市第二中学校まで960m
Kindergarten ・ Nursery幼稚園・保育園  214m until Kitano nursery
北野保育園まで214m
 Feariteiru to nursery school 304m
ふぇありーている保育園まで304m
Hospital病院  695m until Kitano hospital
北野病院まで695m
Location
|