New Homes » Kanto » Saitama » Niiza
 
| | Saitama Prefecture Niiza 埼玉県新座市 |
| Seibu Ikebukuro Line "Hibarigaoka" walk 5 minutes 西武池袋線「ひばりヶ丘」歩5分 |
| ■ Seller direct sales ■ "Hibarigaoka" station a 5-minute walk of the good location ■ Urban Modan'eko house to the next generation insulation material Aqua form ■ Living TES floor heating (water heater Eco Jaws) ■ Total illumination LED (except for some) ■ ■売主直売■「ひばりヶ丘」駅徒歩5分の好立地■次世代断熱材アクアフォームに都市型モダンエコ住宅■リビングTES床暖房(給湯器エコジョーズ)■全照明LED(一部除く)■ |
Features pickup 特徴ピックアップ | | System kitchen / Bathroom Dryer / All room storage / LDK15 tatami mats or more / Japanese-style room / Washbasin with shower / Face-to-face kitchen / Toilet 2 places / 2-story / Double-glazing / Warm water washing toilet seat / Underfloor Storage / TV monitor interphone / Dish washing dryer / Water filter / City gas / Floor heating システムキッチン /浴室乾燥機 /全居室収納 /LDK15畳以上 /和室 /シャワー付洗面台 /対面式キッチン /トイレ2ヶ所 /2階建 /複層ガラス /温水洗浄便座 /床下収納 /TVモニタ付インターホン /食器洗乾燥機 /浄水器 /都市ガス /床暖房 | Price 価格 | | 43,800,000 yen 4380万円 | Floor plan 間取り | | 4LDK 4LDK | Units sold 販売戸数 | | 1 units 1戸 | Total units 総戸数 | | 1 units 1戸 | Land area 土地面積 | | 106 sq m (32.06 tsubo) (Registration) 106m2(32.06坪)(登記) | Building area 建物面積 | | 106.61 sq m (32.24 tsubo) (Registration) 106.61m2(32.24坪)(登記) | Driveway burden-road 私道負担・道路 | | Share equity 109.7 sq m × (1 / 100) 共有持分109.7m2×(1/100) | Completion date 完成時期(築年月) | | April 2014 2014年4月 | Address 住所 | | Saitama Prefecture Niiza Kurihara 5 埼玉県新座市栗原5 | Traffic 交通 | | Seibu Ikebukuro Line "Hibarigaoka" walk 5 minutes Seibu Ikebukuro Line "Higashi Kurume" walk 22 minutes Seibu Ikebukuro Line "Hoya" walk 31 minutes 西武池袋線「ひばりヶ丘」歩5分 西武池袋線「東久留米」歩22分 西武池袋線「保谷」歩31分
| Person in charge 担当者より | | Rep wilderness Naomi Age: 30 Daigyokai Experience: 11 years [Sales] I also I purchased my home a few years ago. "House" is the highest shopping in life. We are pleased that the help can be. I always thought that it be nice If you can end long-term relationship. 担当者原野 直美年齢:30代業界経験:11年【営業】私も数年前にマイホームを購入致しました。「家」は人生の中で一番高いお買い物。そのお手伝いが出来ることを嬉しく思います。末長くお付き合いが出来たらいいなといつも思っています。 | Contact お問い合せ先 | | TEL: 0800-602-5712 [Toll free] mobile phone ・ Also available from PHS Caller ID is not notified Please contact the "saw SUUMO (Sumo)" If it does not lead, If the real estate company TEL:0800-602-5712【通話料無料】携帯電話・PHSからもご利用いただけます 発信者番号は通知されません 「SUUMO(スーモ)を見た」と問い合わせください つながらない方、不動産会社の方は
| Building coverage, floor area ratio 建ぺい率・容積率 | | 60% ・ 200% 60%・200% | Time residents 入居時期 | | May 2014 plans 2014年5月予定 | Land of the right form 土地の権利形態 | | Ownership 所有権 | Structure and method of construction 構造・工法 | | Wooden 2-story 木造2階建 | Use district 用途地域 | | One dwelling 1種住居 | Overview and notices その他概要・特記事項 | | Contact: wilderness Naomi, Facilities: Public Water Supply, This sewage, City gas, Building confirmation number: 311032869, Parking: car space 担当者:原野 直美、設備:公営水道、本下水、都市ガス、建築確認番号:311032869、駐車場:カースペース | Company profile 会社概要 | | <Seller> Saitama Governor (1) No. 022059 (Ltd.) My Town Seibu Yubinbango352-0035 Saitama Prefecture Niiza Kurihara 5-6-24 <売主>埼玉県知事(1)第022059号(株)マイタウン西武〒352-0035 埼玉県新座市栗原5-6-24 |
Rendering (appearance)完成予想図(外観)  Rendering Perth
完成予想パース
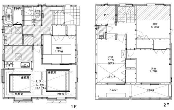
Floor plan間取り図  43,800,000 yen, 4LDK, Land area 106 sq m , Building area 106.61 sq m
4380万円、4LDK、土地面積106m2、建物面積106.61m2
Otherその他  Living example of construction LD has a feeling of opening has been 200mm ceiling higher than normal established a ceiling on cosmetic beams
リビング施工例 LDは天井に化粧梁を設置し通常より200mm天井高くしており開放感があります
Kindergarten ・ Nursery幼稚園・保育園  400m to Kurihara nursery
栗原保育園まで400m
Otherその他  Kitchen construction cases Dish washing dryer with system Kitchen. Underfloor Storage, Marble flooring adopt that feeling of luxury.
キッチン施工例 食器洗乾燥機付システムキッチン。床下収納、高級感のある大理石調フローリング採用。
Shopping centreショッピングセンター  Hibarigaoka to Parco 480m
ひばりが丘パルコまで480m
Otherその他  Western-style construction cases Room is high heat shielding Low-e glass specification. Also it will increase heating and cooling efficiency
洋室施工例 居室は遮熱性の高いLow-eガラス仕様。冷暖房効率も上がります
Supermarketスーパー  277m to Olympic Hibarigaoka shop
オリンピックひばりヶ丘店まで277m
Otherその他  Japanese-style room Example of construction
和室 施工例
Supermarketスーパー  617m until Seiyu Hibarigaoka shop
西友ひばりが丘店まで617m
Otherその他  Bathroom construction cases Difficult dirt, Easy care, It is freely 1 pyeong type of bath. Bathroom ventilation dryer with.
浴室施工例 汚れにくく、お手入れのしやすい、のびのび1坪タイプのお風呂です。浴室換気乾燥機つき。
Convenience storeコンビニ  Daily Yamazaki Hibarigaoka to the north exit shop 292m
デイリーヤマザキひばりヶ丘北口店まで292m
Otherその他  Vanity construction cases Vanity is vanity with happy to wife three-sided mirror. Fishing cupboard is a storage capacity pat so also with.
洗面化粧台施工例 奥様に嬉しい三面鏡付洗面化粧台です。つり戸棚もついているので収納力バッチリです。
 Toilet construction cases Super water-saving type. Compared with the conventional products, Achieve a water saving of about 69%. Dirt, Scratch hardly luck special processing.
トイレ施工例 超節水タイプ。従来品と比べ、約69%の節水を実現。汚れ、傷もつきにくい特殊加工。
Location
|