|
|
Saitama Prefecture Niiza
埼玉県新座市
|
|
Seibu Ikebukuro Line "Hibarigaoka" bus 13 minutes Niiza high school walk 6 minutes
西武池袋線「ひばりヶ丘」バス13分新座高校歩6分
|
|
Construction housing performance with evaluation, Design house performance with evaluation, Corresponding to the flat-35S, System kitchen, All room storage, A quiet residential areaese-style room, Shaping land, Washbasin with shower, Barrier-free, Toilet 2 places, bath
建設住宅性能評価付、設計住宅性能評価付、フラット35Sに対応、システムキッチン、全居室収納、閑静な住宅地、和室、整形地、シャワー付洗面台、バリアフリー、トイレ2ヶ所、浴
|
|
Construction housing performance with evaluation, Design house performance with evaluation, Corresponding to the flat-35S, System kitchen, All room storage, A quiet residential areaese-style room, Shaping land, Washbasin with shower, Barrier-free, Toilet 2 places, Bathroom 1 tsubo or more, 2-story, Underfloor Storage, The window in the bathroom, TV monitor interphone, Leafy residential area, Water filter, City gas
建設住宅性能評価付、設計住宅性能評価付、フラット35Sに対応、システムキッチン、全居室収納、閑静な住宅地、和室、整形地、シャワー付洗面台、バリアフリー、トイレ2ヶ所、浴室1坪以上、2階建、床下収納、浴室に窓、TVモニタ付インターホン、緑豊かな住宅地、浄水器、都市ガス
|
Features pickup 特徴ピックアップ | | Construction housing performance with evaluation / Design house performance with evaluation / Corresponding to the flat-35S / System kitchen / All room storage / A quiet residential area / Japanese-style room / Shaping land / Washbasin with shower / Barrier-free / Toilet 2 places / Bathroom 1 tsubo or more / 2-story / Underfloor Storage / The window in the bathroom / TV monitor interphone / Leafy residential area / Water filter / City gas 建設住宅性能評価付 /設計住宅性能評価付 /フラット35Sに対応 /システムキッチン /全居室収納 /閑静な住宅地 /和室 /整形地 /シャワー付洗面台 /バリアフリー /トイレ2ヶ所 /浴室1坪以上 /2階建 /床下収納 /浴室に窓 /TVモニタ付インターホン /緑豊かな住宅地 /浄水器 /都市ガス |
Price 価格 | | 26,800,000 yen ~ 28.8 million yen 2680万円 ~ 2880万円 |
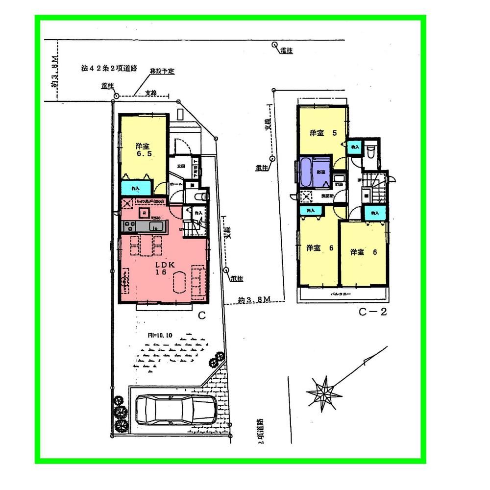
Floor plan 間取り | | 4LDK 4LDK |
Units sold 販売戸数 | | 4 units 4戸 |
Total units 総戸数 | | 4 units 4戸 |
Land area 土地面積 | | 106 sq m ~ 114.41 sq m (registration) 106m2 ~ 114.41m2(登記) |
Building area 建物面積 | | 84.73 sq m ~ 91.5 sq m (registration) 84.73m2 ~ 91.5m2(登記) |
Completion date 完成時期(築年月) | | March 2014 schedule 2014年3月予定 |
Address 住所 | | Saitama Prefecture Niiza Baba 4-1 埼玉県新座市馬場4-1 |
Traffic 交通 | | Seibu Ikebukuro Line "Hibarigaoka" bus 13 minutes Niiza high school walk 6 minutes 西武池袋線「ひばりヶ丘」バス13分新座高校歩6分
|
Person in charge 担当者より | | Person in charge of real-estate and building Toyama Ryota Age: 20 Daigyokai experience: six years Seibu Line railroad area was started, Please leave Kenroku real estate of the community (founded 45 years Kenroku group). Stocks also such advertising before the information, We also will support the day of the tour. 担当者宅建遠山 亮太年齢:20代業界経験:6年西武線沿線エリアをはじめとした、地域密着の兼六不動産(創業45年 兼六グループ)にお任せください。広告掲載前の情報なども取り揃えており、当日の見学も対応致しております。 |
Contact お問い合せ先 | | TEL: 0800-603-3520 [Toll free] mobile phone ・ Also available from PHS Caller ID is not notified Please contact the "saw SUUMO (Sumo)" If it does not lead, If the real estate company TEL:0800-603-3520【通話料無料】携帯電話・PHSからもご利用いただけます 発信者番号は通知されません 「SUUMO(スーモ)を見た」と問い合わせください つながらない方、不動産会社の方は
|
Time residents 入居時期 | | March 2014 schedule 2014年3月予定 |
Land of the right form 土地の権利形態 | | Ownership 所有権 |
Use district 用途地域 | | One low-rise 1種低層 |
Overview and notices その他概要・特記事項 | | Contact: Toyama Ryota, Building confirmation number: HPA-13-06545-1 No. 担当者:遠山 亮太、建築確認番号:HPA-13-06545-1号 |
Company profile 会社概要 | | <Mediation> Governor of Tokyo (2) the first 083,428 No. Kenroku Real Estate Co., Ltd. Yubinbango178-0061 Nerima-ku, Tokyo Ōizumigakuenchō 1-29-7 <仲介>東京都知事(2)第083428号兼六不動産(株)〒178-0061 東京都練馬区大泉学園町1-29-7 |