|
|
Saitama Prefecture Niiza
埼玉県新座市
|
|
JR Musashino Line "Niiza" walk 17 minutes
JR武蔵野線「新座」歩17分
|
|
JR Musashino Line "Niiza" station walk 17 minutes There are two parking spaces (depending on model)
JR武蔵野線「新座」駅徒歩17分 駐車スペース2台あり(車種による)
|
|
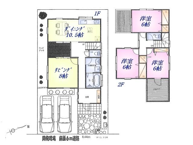
New construction condominiums is an introduction with a wood deck (first floor dining and living room is equipped with wooden deck that connects the) pool of barbecue and summer of children in the wood deck, etc., How will bulge clear of the site 37.65 square meters large car two parking possible (by car) the second floor is the development site full of open feeling of the front road 6m road balcony Thank two places. 24 hours please about 250m please feel free to contact us to Seiyu not sales.
ウッドデッキ付新築分譲住宅のご紹介です (1階ダイニングとリビングをつなぐウッドデッキ付です) ウッドデッキでバーベキューや夏のお子様のプール等、使い方が膨らみます ゆとりの敷地37.65坪 大型車2台駐車可能(車種による) 2階はバルコニーが2か所ございます 前面道路6m道路の開放感あふれる開発現場です。 24時間営業の西友まで約250m どうぞお気軽にお問い合わせくださいませ。
|
Features pickup 特徴ピックアップ | | System kitchen / Bathroom Dryer / All room storage / Or more before road 6m / 2-story / Wood deck / Dish washing dryer / All room 6 tatami mats or more / City gas システムキッチン /浴室乾燥機 /全居室収納 /前道6m以上 /2階建 /ウッドデッキ /食器洗乾燥機 /全居室6畳以上 /都市ガス |
Price 価格 | | 38,800,000 yen 3880万円 |
Floor plan 間取り | | 4LDK 4LDK |
Units sold 販売戸数 | | 1 units 1戸 |
Total units 総戸数 | | 1 units 1戸 |
Land area 土地面積 | | 124.48 sq m (measured) 124.48m2(実測) |
Building area 建物面積 | | 94.19 sq m (measured) 94.19m2(実測) |
Driveway burden-road 私道負担・道路 | | Nothing, East 6m width 無、東6m幅 |
Completion date 完成時期(築年月) | | December 2013 2013年12月 |
Address 住所 | | Saitama Prefecture Niiza Nobidome 8 埼玉県新座市野火止8 |
Traffic 交通 | | JR Musashino Line "Niiza" walk 17 minutes JR武蔵野線「新座」歩17分 |
Contact お問い合せ先 | | TEL: 0800-603-1400 [Toll free] mobile phone ・ Also available from PHS Caller ID is not notified Please contact the "saw SUUMO (Sumo)" If it does not lead, If the real estate company TEL:0800-603-1400【通話料無料】携帯電話・PHSからもご利用いただけます 発信者番号は通知されません 「SUUMO(スーモ)を見た」と問い合わせください つながらない方、不動産会社の方は
|
Building coverage, floor area ratio 建ぺい率・容積率 | | 60% ・ 200% 60%・200% |
Time residents 入居時期 | | Consultation 相談 |
Land of the right form 土地の権利形態 | | Ownership 所有権 |
Structure and method of construction 構造・工法 | | Wooden 2-story 木造2階建 |
Use district 用途地域 | | Industry 工業 |
Other limitations その他制限事項 | | There is a separate driveway equity about 11.40 square meters 別途私道持分約11.40平米あり |
Overview and notices その他概要・特記事項 | | Facilities: Public Water Supply, This sewage, City gas, Building confirmation number: SJK-KX1311010372, Parking: car space 設備:公営水道、本下水、都市ガス、建築確認番号:SJK-KX1311010372、駐車場:カースペース |
Company profile 会社概要 | | <Marketing alliance (mediated)> Minister of Land, Infrastructure and Transport (6) No. 004224 (Corporation) All Japan Real Estate Association (Corporation) metropolitan area real estate Fair Trade Council member (Ltd.) Towa House Internet Contact Center Yubinbango188-0012 Tokyo Nishitokyo Minamicho 5-5-13 second floor <販売提携(媒介)>国土交通大臣(6)第004224号(公社)全日本不動産協会会員 (公社)首都圏不動産公正取引協議会加盟(株)藤和ハウスインターネットお問合せセンター〒188-0012 東京都西東京市南町5-5-13 2階 |