|
|
Saitama Prefecture Okegawa
埼玉県桶川市
|
|
JR Takasaki Line "Okegawa" walk 10 minutes
JR高崎線「桶川」歩10分
|
|
◆ ◇ ◆ You can see the actual room. It is a positive per well in the southwest corner lot. Two pets in car spaces parallel. Full-time, It is being guided accepting reservations ◇ ◆ ◇
◆◇◆実際のお部屋がご覧いただけます。南西角地で陽当り良好です。カースペースは並列で2台可。常時、案内予約受付中です◇◆◇
|
|
■ Face-to-face kitchen conversation with your family, even while your cuisine ■ There is storage space of the size of 3 pledge to the main bedroom ■ Environmentally friendly solar panels installed in your wallet ■ Floor plan of living and Japanese-style independent ■ There and convenient under-floor storage ■ With big success bathroom dryer in your laundry on a rainy day ■ With your voice mail to worry monitor children interphone
■お料理をしながらでもご家族との会話が楽しめる対面キッチン ■主寝室には3帖の広さの収納スペースあり ■お財布にも環境にも優しい太陽光パネル搭載 ■リビングと和室が独立した間取り ■あると便利な床下収納庫 ■雨の日のお洗濯にも大活躍な浴室乾燥機付き ■お子様のお留守番にも安心なモニタ付きインタホン
|
Features pickup 特徴ピックアップ | | Solar power system / Parking two Allowed / Immediate Available / It is close to the city / System kitchen / Bathroom Dryer / All room storage / A quiet residential area / LDK15 tatami mats or more / Japanese-style room / Washbasin with shower / Face-to-face kitchen / Toilet 2 places / Bathroom 1 tsubo or more / 2-story / Double-glazing / Warm water washing toilet seat / Underfloor Storage / The window in the bathroom / TV monitor interphone / Urban neighborhood / Water filter / Storeroom 太陽光発電システム /駐車2台可 /即入居可 /市街地が近い /システムキッチン /浴室乾燥機 /全居室収納 /閑静な住宅地 /LDK15畳以上 /和室 /シャワー付洗面台 /対面式キッチン /トイレ2ヶ所 /浴室1坪以上 /2階建 /複層ガラス /温水洗浄便座 /床下収納 /浴室に窓 /TVモニタ付インターホン /都市近郊 /浄水器 /納戸 |
Price 価格 | | 27,800,000 yen 2780万円 |
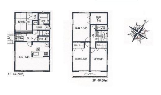
Floor plan 間取り | | 4LDK + S (storeroom) 4LDK+S(納戸) |
Units sold 販売戸数 | | 1 units 1戸 |
Total units 総戸数 | | 2 units 2戸 |
Land area 土地面積 | | 109.85 sq m (33.22 tsubo) (Registration) 109.85m2(33.22坪)(登記) |
Building area 建物面積 | | 96.39 sq m (29.15 tsubo) (Registration) 96.39m2(29.15坪)(登記) |
Driveway burden-road 私道負担・道路 | | Nothing, Southeast 4m width, Southwest 4m width 無、南東4m幅、南西4m幅 |
Completion date 完成時期(築年月) | | October 2013 2013年10月 |
Address 住所 | | Saitama Prefecture Okegawa Izumi 1 埼玉県桶川市泉1 |
Traffic 交通 | | JR Takasaki Line "Okegawa" walk 10 minutes JR高崎線「桶川」歩10分
|
Person in charge 担当者より | | Person in charge of Yoshida Hiroshi Age: 30 Daigyokai Experience: 10 years three of Whirlpool of Papa. I think that if we help of your house hunting standing in the customer's point of view. 担当者吉田 裕志年齢:30代業界経験:10年3人の子持ちのパパです。お客様の立場に立ってお家探しのお手伝いができればと思います。 |
Contact お問い合せ先 | | TEL: 0800-603-6421 [Toll free] mobile phone ・ Also available from PHS Caller ID is not notified Please contact the "saw SUUMO (Sumo)" If it does not lead, If the real estate company TEL:0800-603-6421【通話料無料】携帯電話・PHSからもご利用いただけます 発信者番号は通知されません 「SUUMO(スーモ)を見た」と問い合わせください つながらない方、不動産会社の方は
|
Building coverage, floor area ratio 建ぺい率・容積率 | | 70% ・ 160% 70%・160% |
Time residents 入居時期 | | Immediate available 即入居可 |
Land of the right form 土地の権利形態 | | Ownership 所有権 |
Structure and method of construction 構造・工法 | | Wooden 2-story 木造2階建 |
Use district 用途地域 | | Two mid-high 2種中高 |
Other limitations その他制限事項 | | Law Article 22 zone Sewage treatment zone 法22条区域 下水道処理区域 |
Overview and notices その他概要・特記事項 | | Contact: Yoshida Hiroshi, Facilities: Public Water Supply, This sewage, Building confirmation number: No. HPA-13-04235-1, Parking: car space 担当者:吉田 裕志、設備:公営水道、本下水、建築確認番号:第HPA-13-04235-1号、駐車場:カースペース |
Company profile 会社概要 | | <Mediation> Saitama Governor (2) No. 020699 (Corporation) Prefecture Building Lots and Buildings Transaction Business Association (Corporation) metropolitan area real estate Fair Trade Council member (Ltd.) Academic House Yubinbango338-0002 Saitama Chuo Shimoochiai 4-10-12 <仲介>埼玉県知事(2)第020699号(公社)埼玉県宅地建物取引業協会会員 (公社)首都圏不動産公正取引協議会加盟(株)アカデミックハウス〒338-0002 埼玉県さいたま市中央区下落合4-10-12 |