|
|
Saitama Prefecture Okegawa
埼玉県桶川市
|
|
JR Takasaki Line "Okegawa" walk 10 minutes
JR高崎線「桶川」歩10分
|
|
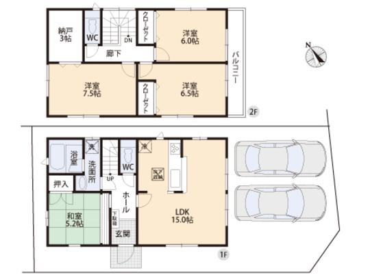
"Okegawa" station a 10-minute walk ・ Corner lot ・ Car space two possible ・ Mato loose ・ Face-to-face kitchen ・ Spacious LDK ・ There closet
「桶川」駅徒歩10分・角地・カースペース2台可能・間取ゆったり・対面式キッチン・広々LDK・納戸あり
|
|
"Okegawa" station a 10-minute walk of the good location! It is very convenient for commuting. Ventilation per corner lot, Open feeling good! Parking spaces in the can park two car. It is encouraging even when the visitor. Mato is spacious 4LDK. In face-to-face kitchen conversation bouncing of the family, About 15 Pledge of LDK is available relaxation relax and your whole family. On the second floor there is also about three tatami mats of storeroom, Storage capacity is plenty. Please contact us by all means.
「桶川」駅徒歩10分の好立地!通勤通学に大変便利です。角地に付き風通し、開放感良好!駐車スペースにはお車2台駐車可能。来客時にも心強いですね。間取はゆったり4LDK。家族の会話も弾む対面式キッチンに、約15帖のLDKはご家族揃ってゆったりとお寛ぎいただけます。2階には約3畳の納戸もあり、収納力たっぷりです。ぜひお問い合わせ下さいませ。
|
Price 価格 | | 27,800,000 yen 2780万円 |
Floor plan 間取り | | 4LDK 4LDK |
Units sold 販売戸数 | | 1 units 1戸 |
Land area 土地面積 | | 109.85 sq m (measured) 109.85m2(実測) |
Building area 建物面積 | | 96.39 sq m (measured) 96.39m2(実測) |
Driveway burden-road 私道負担・道路 | | Nothing 無 |
Completion date 完成時期(築年月) | | October 2013 2013年10月 |
Address 住所 | | Saitama Prefecture Okegawa Izumi 1 埼玉県桶川市泉1 |
Traffic 交通 | | JR Takasaki Line "Okegawa" walk 10 minutes JR高崎線「桶川」歩10分
|
Related links 関連リンク | | [Related Sites of this company] 【この会社の関連サイト】 |
Contact お問い合せ先 | | TEL: 0800-805-6288 [Toll free] mobile phone ・ Also available from PHS Caller ID is not notified Please contact the "saw SUUMO (Sumo)" If it does not lead, If the real estate company TEL:0800-805-6288【通話料無料】携帯電話・PHSからもご利用いただけます 発信者番号は通知されません 「SUUMO(スーモ)を見た」と問い合わせください つながらない方、不動産会社の方は
|
Building coverage, floor area ratio 建ぺい率・容積率 | | 70% ・ 160% 70%・160% |
Time residents 入居時期 | | Consultation 相談 |
Land of the right form 土地の権利形態 | | Ownership 所有権 |
Structure and method of construction 構造・工法 | | Wooden 2-story 木造2階建 |
Use district 用途地域 | | Two mid-high 2種中高 |
Overview and notices その他概要・特記事項 | | Facilities: Public Water Supply, This sewage, Individual LPG, Parking: car space 設備:公営水道、本下水、個別LPG、駐車場:カースペース |
Company profile 会社概要 | | <Mediation> Minister of Land, Infrastructure and Transport (3) The 006,183 No. housing Information Center Ageo store Seongnam Construction (Ltd.) Yubinbango362-0032 Saitama Prefecture Ageo sunrise 1-9-5 <仲介>国土交通大臣(3)第006183号住宅情報館 上尾店城南建設(株)〒362-0032 埼玉県上尾市日の出1-9-5 |