New Homes » Kanto » Saitama » Okegawa
 
| | Saitama Prefecture Okegawa 埼玉県桶川市 |
| JR Takasaki Line "Okegawa" walk 26 minutes JR高崎線「桶川」歩26分 |
| Per corner lot, Exposure to the sun ・ Ventilation good! Only to customers who call or document request, Get the Kuokado of 10,000 yen for those of every month 10 pairs 角地につき、陽当り・通風良好!お電話または資料請求頂いたお客様に限り、毎月10組の方に10,000円のクオカードをプレゼント |
| ・ Consideration to security aspects in the TV monitor interphone ・ With big success bathroom dryer in your laundry on a rainy day ・ Face-to-face kitchen ground survey already be felt your family close, Vibration Control ・ Seismic isolation ・ Earthquake resistant, Parking two Allowed, Facing south, System kitchen, Bathroom Dryer, All room storage, Siemens south road, LDK15 tatami mats or more, Corner lotese-style room, Shaping land, Washbasin with shower, Face-to-face kitchen, Barrier-free, Toilet 2 places, Bathroom 1 tsubo or more, 2-story, South balcony, Double-glazing, Otobasu, Warm water washing toilet seat, Underfloor Storage, The window in the bathroom, TV monitor interphone, City gas, All rooms are two-sided lighting, Maintained sidewalk ・TVモニタ付インタホンでセキュリティ面にも配慮・雨の日のお洗濯にも大活躍な浴室乾燥機付・ご家族を近くに感じられる対面キッチン地盤調査済、制震・免震・耐震、駐車2台可、南向き、システムキッチン、浴室乾燥機、全居室収納、南側道路面す、LDK15畳以上、角地、和室、整形地、シャワー付洗面台、対面式キッチン、バリアフリー、トイレ2ヶ所、浴室1坪以上、2階建、南面バルコニー、複層ガラス、オートバス、温水洗浄便座、床下収納、浴室に窓、TVモニタ付インターホン、都市ガス、全室2面採光、整備された歩道 |
Features pickup 特徴ピックアップ | | Pre-ground survey / Vibration Control ・ Seismic isolation ・ Earthquake resistant / Parking two Allowed / Facing south / System kitchen / Bathroom Dryer / All room storage / Siemens south road / LDK15 tatami mats or more / Corner lot / Japanese-style room / Shaping land / Washbasin with shower / Face-to-face kitchen / Barrier-free / Toilet 2 places / Bathroom 1 tsubo or more / 2-story / South balcony / Double-glazing / Otobasu / Warm water washing toilet seat / Underfloor Storage / The window in the bathroom / TV monitor interphone / City gas / All rooms are two-sided lighting / Maintained sidewalk 地盤調査済 /制震・免震・耐震 /駐車2台可 /南向き /システムキッチン /浴室乾燥機 /全居室収納 /南側道路面す /LDK15畳以上 /角地 /和室 /整形地 /シャワー付洗面台 /対面式キッチン /バリアフリー /トイレ2ヶ所 /浴室1坪以上 /2階建 /南面バルコニー /複層ガラス /オートバス /温水洗浄便座 /床下収納 /浴室に窓 /TVモニタ付インターホン /都市ガス /全室2面採光 /整備された歩道 | Price 価格 | | 26,800,000 yen 2680万円 | Floor plan 間取り | | 4LDK 4LDK | Units sold 販売戸数 | | 1 units 1戸 | Total units 総戸数 | | 1 units 1戸 | Land area 土地面積 | | 121 sq m (36.60 tsubo) (Registration) 121m2(36.60坪)(登記) | Building area 建物面積 | | 97.2 sq m (29.40 tsubo) (Registration) 97.2m2(29.40坪)(登記) | Driveway burden-road 私道負担・道路 | | Nothing, South 4m width, West 4m width 無、南4m幅、西4m幅 | Completion date 完成時期(築年月) | | February 2014 2014年2月 | Address 住所 | | Saitama Prefecture Okegawa Oaza Kamihideya 埼玉県桶川市大字上日出谷 | Traffic 交通 | | JR Takasaki Line "Okegawa" walk 26 minutes JR Takasaki Line "Kitamoto" walk 45 minutes JR Takasaki Line "Kitaageo" walk 55 minutes JR高崎線「桶川」歩26分 JR高崎線「北本」歩45分 JR高崎線「北上尾」歩55分
| Related links 関連リンク | | [Related Sites of this company] 【この会社の関連サイト】 | Person in charge 担当者より | | Person in charge of real-estate and building Washio MoriFutoshi Age: your sale from the 50s your home assessment, Purchase, Anything please feel free to contact us or mortgage! 担当者宅建鷲尾 盛太年齢:50代ご自宅の査定からご売却、ご購入、住宅ローン等何でもお気軽にご相談下さい! | Contact お問い合せ先 | | TEL: 0800-603-8258 [Toll free] mobile phone ・ Also available from PHS Caller ID is not notified Please contact the "saw SUUMO (Sumo)" If it does not lead, If the real estate company TEL:0800-603-8258【通話料無料】携帯電話・PHSからもご利用いただけます 発信者番号は通知されません 「SUUMO(スーモ)を見た」と問い合わせください つながらない方、不動産会社の方は
| Building coverage, floor area ratio 建ぺい率・容積率 | | 70% ・ 200% 70%・200% | Time residents 入居時期 | | February 2014 schedule 2014年2月予定 | Land of the right form 土地の権利形態 | | Ownership 所有権 | Structure and method of construction 構造・工法 | | Wooden 2-story 木造2階建 | Use district 用途地域 | | One dwelling 1種住居 | Other limitations その他制限事項 | | Kamihideya south specific land readjustment project provisional replotting Archaeological comprehending land On the day you can visit. 上日出谷南特定土地区画整理事業仮換地 埋蔵文化財包蔵地 当日見学可能です。 | Overview and notices その他概要・特記事項 | | Contact: Washio MoriFutoshi, Facilities: Public Water Supply, This sewage, City gas, Building confirmation number: 13UDI1W02613, Parking: car space 担当者:鷲尾 盛太、設備:公営水道、本下水、都市ガス、建築確認番号:13UDI1W02613、駐車場:カースペース | Company profile 会社概要 | | <Mediation> Saitama Governor (2) the first 021,116 No. Century 21 (Ltd.) House Navi Yubinbango333-0866 Kawaguchi City Prefecture, Oaza turf 4438-1 <仲介>埼玉県知事(2)第021116号センチュリー21(株)ハウスナビ〒333-0866 埼玉県川口市大字芝4438-1 |
Otherその他  This property is possible guidance on the day. 9 o'clock ~ If you can contact us at 23 o'clock, Please contact "0800-603-8258" so you can visit. It is also possible to ask to pick up your designated station. Also of interest you after work!
こちらの物件は当日ご案内が可能です。9時 ~ 23時までご連絡いただければ、見学できますのでお気軽に『0800-603-8258』までお問い合わせください。ご指定の駅までお迎えに伺うことも可能です。お仕事帰りにもどうぞ!
Local appearance photo現地外観写真  Local (12 May 2013) Shooting
現地(2013年12月)撮影
Rendering (appearance)完成予想図(外観)  Rendering
完成予想図
Local photos, including front road前面道路含む現地写真  Local (12 May 2013) Shooting
現地(2013年12月)撮影
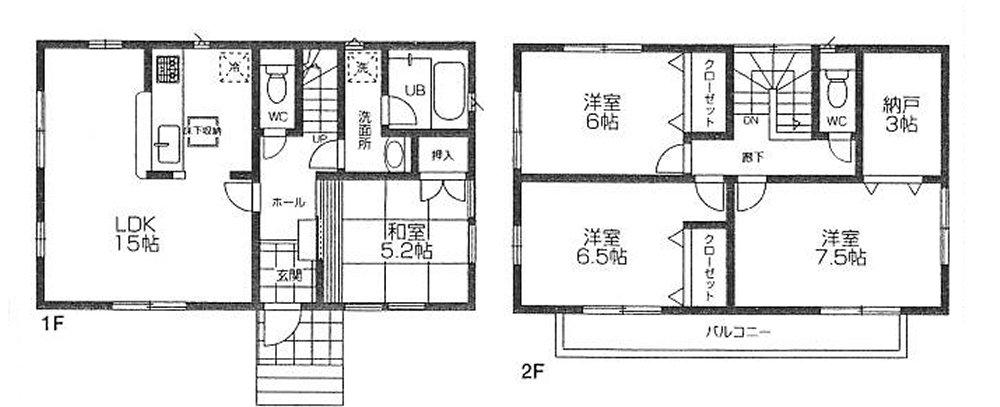
Floor plan間取り図  26,800,000 yen, 4LDK, Land area 121 sq m , Building area 97.2 sq m
2680万円、4LDK、土地面積121m2、建物面積97.2m2
Supermarketスーパー  York Mart 839m to Kitamoto shop
ヨークマート北本店まで839m
Otherその他  section
区画
Junior high school中学校  Okegawa Municipal Okegawa 1400m to the West Junior High School
桶川市立桶川西中学校まで1400m
Otherその他  Takasaki Line Okegawa Station
高崎線 桶川駅
Primary school小学校  Okegawa Municipal Hideya 400m up to elementary school
桶川市立日出谷小学校まで400m
Kindergarten ・ Nursery幼稚園・保育園  Atago 1257m to kindergarten
愛宕幼稚園まで1257m
Hospital病院  Medical Corporation MakotoNoborukai Kitamoto 1040m to mutual aid hospital
医療法人誠昇会北本共済病院まで1040m
Presentプレゼント  Only to customers who call or document request, Get the Kuokado of 10,000 yen for those of every month 10 pairs ☆ Double chance! "I will present the Kuokado of 2,000 yen to all customers who fill out to visit us We questionnaire with your family" (I will consider it as a one-time set-like)
お電話または資料請求頂いたお客様に限り、毎月10組の方に10,000円のクオカードをプレゼント☆ダブルチャンス!「ご家族でご来店頂きアンケートにご記入頂いたお客様全員に2,000円のクオカードをプレゼント致します」(1組様1回限りとさせて頂きます)
Location
|