New Homes » Kanto » Saitama » Chuo-ku
 
| | Saitama, Chuo-ku, 埼玉県さいたま市中央区 |
| JR Saikyo Line "Yonohonmachi" walk 15 minutes JR埼京線「与野本町」歩15分 |
| Solar power installation mortgage HFMS, LDK16 Pledge, Face-to-face kitchen, All room two-sided lighting, All room pair glass 太陽光発電設置住宅HFMS付、LDK16帖、対面キッチン、全居室2面採光、全居室ペアガラス |
| Unit bus with bathroom dryer, Intercom with TV monitor, Entrance door with picking measures, Fully equipped, such as porch light is the standard specification with motion sensors. During construction of the building will guide the complete listing of other site. 浴室乾燥機付ユニットバス、TVモニター付インターホン、ピッキング対策付玄関ドア、人感センサー付玄関灯など充実した設備が標準仕様です。建物の建築中は他の現場の完成物件をご案内いたします。 |
Features pickup 特徴ピックアップ | | Solar power system / Year Available / System kitchen / Bathroom Dryer / All room storage / A quiet residential area / LDK15 tatami mats or more / Japanese-style room / Face-to-face kitchen / Barrier-free / Toilet 2 places / Bathroom 1 tsubo or more / 2-story / Underfloor Storage / The window in the bathroom / TV monitor interphone / City gas / All rooms are two-sided lighting 太陽光発電システム /年内入居可 /システムキッチン /浴室乾燥機 /全居室収納 /閑静な住宅地 /LDK15畳以上 /和室 /対面式キッチン /バリアフリー /トイレ2ヶ所 /浴室1坪以上 /2階建 /床下収納 /浴室に窓 /TVモニタ付インターホン /都市ガス /全室2面採光 | Price 価格 | | 30,800,000 yen 3080万円 | Floor plan 間取り | | 4LDK 4LDK | Units sold 販売戸数 | | 1 units 1戸 | Land area 土地面積 | | 137.54 sq m (registration), Alley-like portion: 16.4 sq m including 137.54m2(登記)、路地状部分:16.4m2含 | Building area 建物面積 | | 96.39 sq m (measured) 96.39m2(実測) | Driveway burden-road 私道負担・道路 | | Share interests 144 sq m × (1 / 5), Northwest 4m width 共有持分144m2×(1/5)、北西4m幅 | Completion date 完成時期(築年月) | | November 2013 2013年11月 | Address 住所 | | Saitama, Chuo-ku, Kamimine 1 埼玉県さいたま市中央区上峰1 | Traffic 交通 | | JR Saikyo Line "Yonohonmachi" walk 15 minutes JR埼京線「与野本町」歩15分
| Related links 関連リンク | | [Related Sites of this company] 【この会社の関連サイト】 | Person in charge 担当者より | | Person in charge of real-estate and building Sekine Toshio Age: 50 Daigyokai Experience: 20 years Please contact us anything about the real estate. 担当者宅建関根 登志夫年齢:50代業界経験:20年不動産について何でもご相談ください。 | Contact お問い合せ先 | | TEL: 0800-603-0561 [Toll free] mobile phone ・ Also available from PHS Caller ID is not notified Please contact the "saw SUUMO (Sumo)" If it does not lead, If the real estate company TEL:0800-603-0561【通話料無料】携帯電話・PHSからもご利用いただけます 発信者番号は通知されません 「SUUMO(スーモ)を見た」と問い合わせください つながらない方、不動産会社の方は
| Building coverage, floor area ratio 建ぺい率・容積率 | | 60% ・ 200% 60%・200% | Time residents 入居時期 | | Consultation 相談 | Land of the right form 土地の権利形態 | | Ownership 所有権 | Structure and method of construction 構造・工法 | | Wooden 2-story 木造2階建 | Use district 用途地域 | | Semi-industrial 準工業 | Overview and notices その他概要・特記事項 | | Contact: Sekine Toshio, Facilities: Public Water Supply, This sewage, City gas, Building confirmation number: 13UDI1w Ken 02003, Parking: car space 担当者:関根 登志夫、設備:公営水道、本下水、都市ガス、建築確認番号:13UDI1w建02003、駐車場:カースペース | Company profile 会社概要 | | <Mediation> Minister of Land, Infrastructure and Transport (3) No. 006,185 (one company) National Housing Industry Association (Corporation) metropolitan area real estate Fair Trade Council member Asahi Housing Corporation Omiya Yubinbango330-0845 Saitama Omiya-ku Nakamachi 1-54-3 Visionary III 4 floor <仲介>国土交通大臣(3)第006185号(一社)全国住宅産業協会会員 (公社)首都圏不動産公正取引協議会加盟朝日住宅(株)大宮店〒330-0845 埼玉県さいたま市大宮区仲町1-54-3 ビジョナリーIII 4階 |
 Local appearance photo
現地外観写真
 Local photos, including front road
前面道路含む現地写真
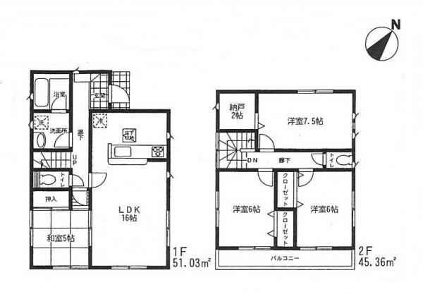
Floor plan間取り図  30,800,000 yen, 4LDK, Land area 137.54 sq m , Building area 96.39 sq m
3080万円、4LDK、土地面積137.54m2、建物面積96.39m2
 Living
リビング
 Bathroom
浴室
 Kitchen
キッチン
 Non-living room
リビング以外の居室
 Wash basin, toilet
洗面台・洗面所
 Toilet
トイレ
 Garden
庭
Primary school小学校  Up to elementary school 1260m Yonohonmachi elementary school
小学校まで1260m 与野本町小学校
 Other local
その他現地
 Kitchen
キッチン
 Non-living room
リビング以外の居室
Junior high school中学校  1260m up to junior high school junior high school Hachioji
中学校まで1260m 八王子中学校
 Kitchen
キッチン
 Non-living room
リビング以外の居室
Other Environmental Photoその他環境写真  To other environment photo 1260m Yonohonmachi
その他環境写真まで1260m 与野本町駅
 Non-living room
リビング以外の居室
Convenience storeコンビニ  120m to the convenience store Seven-Eleven
コンビニまで120m セブンイレブン
Hospital病院  360m to the hospital the Western General Hospital
病院まで360m 西部総合病院
Location
|