New Homes » Kanto » Saitama » Chuo-ku
 
| | Saitama, Chuo-ku, 埼玉県さいたま市中央区 |
| JR Saikyo Line "Kitayono" 10 minutes En'nami 5-chome, walk 5 minutes by bus JR埼京線「北与野」バス10分円阿弥5丁目歩5分 |
| 11 / Get the Kuokado we change 25 price! ! "Get the Kuokado of 10,000 yen for those 20 pairs each month by telephone or materials lottery than customers who claim" 11/25価格変更いたしましたクオカードをプレゼント!!「お電話または資料請求頂いたお客様より抽選で毎月20組の方に10,000円のクオカードをプレゼント」 |
| It is a popular city gas. Land area 30 square meters or more! Each room enhancement ・ Of satisfaction storage space. ・ Desirability of the location can also be used bus. ・ It is safe in the 10-year warranty. ・ Educational institutions, So that it can be recommended with confidence for living environment Customers shopping facilities and fulfilling, We have to check the property from vacant lot. Because there are other photos that are not me, Please feel free to contact us. Contact us, please call toll-free "0800-603-3267". 人気の都市ガスです。土地面積30坪以上!各部屋充実・満足の収納スペース。 ・バスも使える立地の良さ。 ・10年保証で安心です。 ・教育施設、買物施設が充実した住環境 お客様に自信を持ってお勧めできるように、私達は更地から物件のチェックしております。掲載していないその他の写真もございますので、お気軽にお問い合わせ下さい。お問い合わせはフリーダイヤル「0800-603-3267」までお電話ください。 |
Features pickup 特徴ピックアップ | | Measures to conserve energy / Solar power system / Pre-ground survey / Parking two Allowed / Immediate Available / System kitchen / Bathroom Dryer / Yang per good / All room storage / LDK15 tatami mats or more / Japanese-style room / Washbasin with shower / Face-to-face kitchen / Toilet 2 places / 2-story / South balcony / Double-glazing / Zenshitsuminami direction / Warm water washing toilet seat / Underfloor Storage / The window in the bathroom / TV monitor interphone / All living room flooring / All room 6 tatami mats or more / City gas 省エネルギー対策 /太陽光発電システム /地盤調査済 /駐車2台可 /即入居可 /システムキッチン /浴室乾燥機 /陽当り良好 /全居室収納 /LDK15畳以上 /和室 /シャワー付洗面台 /対面式キッチン /トイレ2ヶ所 /2階建 /南面バルコニー /複層ガラス /全室南向き /温水洗浄便座 /床下収納 /浴室に窓 /TVモニタ付インターホン /全居室フローリング /全居室6畳以上 /都市ガス | Price 価格 | | 27,800,000 yen ・ 28.8 million yen 2780万円・2880万円 | Floor plan 間取り | | 4LDK 4LDK | Units sold 販売戸数 | | 2 units 2戸 | Total units 総戸数 | | 2 units 2戸 | Land area 土地面積 | | 137.37 sq m ・ 178.33 sq m (41.55 tsubo ・ 53.94 tsubo) (Registration) 137.37m2・178.33m2(41.55坪・53.94坪)(登記) | Building area 建物面積 | | 93.15 sq m ・ 98.01 sq m (28.17 tsubo ・ 29.64 tsubo) (Registration) 93.15m2・98.01m2(28.17坪・29.64坪)(登記) | Driveway burden-road 私道負担・道路 | | Road width: 4m 道路幅:4m | Completion date 完成時期(築年月) | | November 2013 2013年11月 | Address 住所 | | Saitama, Chuo-ku, En'nami 5 埼玉県さいたま市中央区円阿弥5 | Traffic 交通 | | JR Saikyo Line "Kitayono" 10 minutes En'nami 5-chome, walk 5 minutes by bus JR Saikyo Line "Yonohonmachi" walk 36 minutes JR埼京線「北与野」バス10分円阿弥5丁目歩5分 JR埼京線「与野本町」歩36分
| Related links 関連リンク | | [Related Sites of this company] 【この会社の関連サイト】 | Person in charge 担当者より | | Rep Waragai Mitsuo Age: 40's house hunting is a very big shopping. That's why, It becomes a customer's point of view, We have the motto that I am allowed to introduce the great property. Salesman that attentive 担当者藁谷 三雄年齢:40代家探しはとても大きな買物です。だからこそ、お客様の立場になり、すばらしい物件をご紹介させて頂く事をモットーにしております。気が利く営業マン | Contact お問い合せ先 | | TEL: 0800-603-3267 [Toll free] mobile phone ・ Also available from PHS Caller ID is not notified Please contact the "saw SUUMO (Sumo)" If it does not lead, If the real estate company TEL:0800-603-3267【通話料無料】携帯電話・PHSからもご利用いただけます 発信者番号は通知されません 「SUUMO(スーモ)を見た」と問い合わせください つながらない方、不動産会社の方は
| Building coverage, floor area ratio 建ぺい率・容積率 | | Kenpei rate: 60%, Volume ratio: 200% 建ペい率:60%、容積率:200% | Time residents 入居時期 | | Immediate available 即入居可 | Land of the right form 土地の権利形態 | | Ownership 所有権 | Structure and method of construction 構造・工法 | | Wooden 2-story 木造2階建 | Use district 用途地域 | | One middle and high 1種中高 | Overview and notices その他概要・特記事項 | | Contact: Waragai Mitsuo, Building confirmation number: 13UDI1W Ken 02082 ~ 担当者:藁谷 三雄、建築確認番号:13UDI1W建02082 ~ | Company profile 会社概要 | | <Mediation> Saitama Governor (3) No. 019932 (Corporation) Prefecture Building Lots and Buildings Transaction Business Association (Corporation) metropolitan area real estate Fair Trade Council member Century 21 (Ltd.) medianet Yubinbango336-0015 Saitama Minami-ku Oaza Daitakubo 1957 <仲介>埼玉県知事(3)第019932号(公社)埼玉県宅地建物取引業協会会員 (公社)首都圏不動産公正取引協議会加盟センチュリー21(株)メディアネット〒336-0015 埼玉県さいたま市南区大字太田窪1957 |
Otherその他  It is a popular city gas. Land area 30 square meters or more! Each room enhancement ・ Of satisfaction storage space. On the day of the tour is also available. Contact us, please call toll-free "0800-603-3267".
人気の都市ガスです。土地面積30坪以上!各部屋充実・満足の収納スペース。当日の見学も可能です。お問い合わせはフリーダイヤル「0800-603-3267」までお電話ください。
Local photos, including front road前面道路含む現地写真  12 / 6 shooting
12/6撮影
Local appearance photo現地外観写真  11 Building
11号棟
Livingリビング  11 Building
11号棟
Floor plan間取り図  (11 Building), Price 27,800,000 yen, 4LDK, Land area 137.37 sq m , Building area 93.15 sq m
(11号棟)、価格2780万円、4LDK、土地面積137.37m2、建物面積93.15m2
Kitchenキッチン  11 Building
11号棟
Livingリビング  11 Building
11号棟
 11 Building
11号棟
 11 Building
11号棟
Kitchenキッチン  11 Building
11号棟
Bathroom浴室  11 Building
11号棟
Non-living roomリビング以外の居室  11 Building
11号棟
 11 Building
11号棟
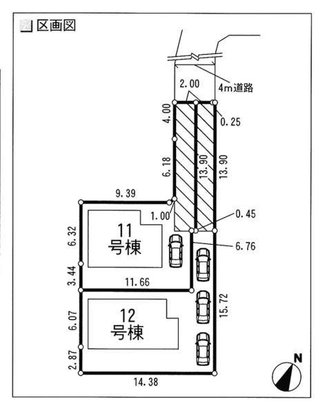
 The entire compartment Figure
全体区画図
Floor plan間取り図  (12 Building), Price 28.8 million yen, 4LDK, Land area 178.33 sq m , Building area 98.01 sq m
(12号棟)、価格2880万円、4LDK、土地面積178.33m2、建物面積98.01m2
Otherその他  JR Saikyo Line Kitayono Station
JR埼京線 北与野駅
Presentプレゼント  "Call us or gift Kuokado of 10,000 yen for those 20 pairs each month in the documentation lottery than customers who claim" double chance! "I will present the Kuokado of 2,000 yen to all customers who fill out to visit us We questionnaire" (I will consider it as a one-time set-like)
「お電話または資料請求頂いたお客様より抽選で毎月20組の方に10,000円のクオカードをプレゼント」ダブルチャンス!「ご来店頂きアンケートにご記入頂いたお客様全員に2,000円のクオカードをプレゼント致します」(1組様1回限りとさせて頂きます)
Location
|