New Homes » Kanto » Saitama » Iwatsuki
 
| | Saitama Iwatsuki 埼玉県さいたま市岩槻区 |
| Tobu Noda line "Higashiiwatsuki" walk 13 minutes 東武野田線「東岩槻」歩13分 |
| 12 / 9 has been price changes! We will deliver the latest information. Only to customers who call or document request, Get the Kuokado of 10,000 yen for those of every month 10 pairs 12/9価格変更しました!最新情報をお届けします。お電話または資料請求頂いたお客様に限り、毎月10組の方に10,000円のクオカードをプレゼント |
| ・ Johoku elementary school (800m) is the proximity of the 10-minute walk to attend small children also reasonably ・ Face-to-face kitchen where you can enjoy a conversation with your family, even while cooking ・ Spacious living space ground survey completed in with all the living room storage space, Vibration Control ・ Seismic isolation ・ Earthquake resistant, System kitchen, Or more before road 6mese-style room, Barrier-free, Toilet 2 places, Bathroom 1 tsubo or more, 2-story, Double-glazing, Otobasu, Underfloor Storage, The window in the bathroom, All room 6 tatami mats or more ・小さなお子様も無理なく通える城北小学校(800m)は徒歩10分の近さ・料理をしながらでもご家族との会話を楽しめる対面キッチン・全居室収納スペース付で広々住空間地盤調査済、制震・免震・耐震、システムキッチン、前道6m以上、和室、バリアフリー、トイレ2ヶ所、浴室1坪以上、2階建、複層ガラス、オートバス、床下収納、浴室に窓、全居室6畳以上 |
Features pickup 特徴ピックアップ | | Pre-ground survey / Vibration Control ・ Seismic isolation ・ Earthquake resistant / System kitchen / All room storage / LDK15 tatami mats or more / Or more before road 6m / Japanese-style room / Face-to-face kitchen / Barrier-free / Toilet 2 places / Bathroom 1 tsubo or more / 2-story / Double-glazing / Otobasu / Underfloor Storage / The window in the bathroom / All room 6 tatami mats or more 地盤調査済 /制震・免震・耐震 /システムキッチン /全居室収納 /LDK15畳以上 /前道6m以上 /和室 /対面式キッチン /バリアフリー /トイレ2ヶ所 /浴室1坪以上 /2階建 /複層ガラス /オートバス /床下収納 /浴室に窓 /全居室6畳以上 | Price 価格 | | 24,800,000 yen 2480万円 | Floor plan 間取り | | 4LDK 4LDK | Units sold 販売戸数 | | 1 units 1戸 | Total units 総戸数 | | 3 units 3戸 | Land area 土地面積 | | 160.09 sq m (48.42 tsubo) (Registration) 160.09m2(48.42坪)(登記) | Building area 建物面積 | | 104.33 sq m (31.55 tsubo) (Registration) 104.33m2(31.55坪)(登記) | Driveway burden-road 私道負担・道路 | | Road width: 6m 道路幅:6m | Completion date 完成時期(築年月) | | 2013 mid-November 2013年11月中旬 | Address 住所 | | Saitama Iwatsuki Miyamachi 2 埼玉県さいたま市岩槻区宮町2 | Traffic 交通 | | Tobu Noda line "Higashiiwatsuki" walk 13 minutes Tobu Noda line "Iwatsuki" walk 21 minutes Tobu Noda line "Toyoharu" walk 35 minutes 東武野田線「東岩槻」歩13分 東武野田線「岩槻」歩21分 東武野田線「豊春」歩35分
| Related links 関連リンク | | [Related Sites of this company] 【この会社の関連サイト】 | Person in charge 担当者より | | Rep Taniguchi Kazuhiko Age: 30s Nice to meet you, Taniguchi is Kazuhiko. Anything please consult Plenty of real estate. We will be happy to help the motto faster than anywhere. 担当者谷口 和彦年齢:30代はじめまして、谷口和彦です。不動産のことなら何でもご相談下さい。どこよりも早くをモットーにお手伝いさせて頂きます。 | Contact お問い合せ先 | | TEL: 0800-603-8258 [Toll free] mobile phone ・ Also available from PHS Caller ID is not notified Please contact the "saw SUUMO (Sumo)" If it does not lead, If the real estate company TEL:0800-603-8258【通話料無料】携帯電話・PHSからもご利用いただけます 発信者番号は通知されません 「SUUMO(スーモ)を見た」と問い合わせください つながらない方、不動産会社の方は
| Building coverage, floor area ratio 建ぺい率・容積率 | | Kenpei rate: 50%, Volume ratio: 80% 建ペい率:50%、容積率:80% | Time residents 入居時期 | | Consultation 相談 | Land of the right form 土地の権利形態 | | Ownership 所有権 | Structure and method of construction 構造・工法 | | Wooden 2-story 木造2階建 | Use district 用途地域 | | One low-rise 1種低層 | Other limitations その他制限事項 | | On the day you can visit. 当日見学可能です。 | Overview and notices その他概要・特記事項 | | Contact: Taniguchi Kazuhiko, Building confirmation number: No. 13UDI3S Ken 01222 ~ The 13UDI3S Ken No. 01224 担当者:谷口 和彦、建築確認番号:第13UDI3S建01222号 ~ 第13UDI3S建01224号 | Company profile 会社概要 | | <Sales tie-up (recovery agency)> Saitama Governor (2) the first 021,116 No. Century 21 (Ltd.) House Navi Yubinbango333-0866 Kawaguchi City Prefecture, Oaza turf 4438-1 <販売提携(復代理)>埼玉県知事(2)第021116号センチュリー21(株)ハウスナビ〒333-0866 埼玉県川口市大字芝4438-1 |
Otherその他  This property is possible guidance on the day. 9 o'clock ~ If you can contact us at 23 o'clock, Please contact "0800-603-8258" so you can visit. It is also possible to ask to pick up your designated station. Also of interest you after work!
こちらの物件は当日ご案内が可能です。9時 ~ 23時までご連絡いただければ、見学できますのでお気軽に『0800-603-8258』までお問い合わせください。ご指定の駅までお迎えに伺うことも可能です。お仕事帰りにもどうぞ!
Local appearance photo現地外観写真  Your family everyone is comfortable and welcoming spacious living site (December 2013) Shooting 1 Building
ご家族みんながゆったりくつろげる広々リビング現地(2013年12月)撮影 1号棟
Otherその他  Tobu Noda line "Higashiiwatsuki" station
東武野田線「東岩槻」駅
Local appearance photo現地外観写真  Local (12 May 2013) Shooting 1 Building
現地(2013年12月)撮影 1号棟
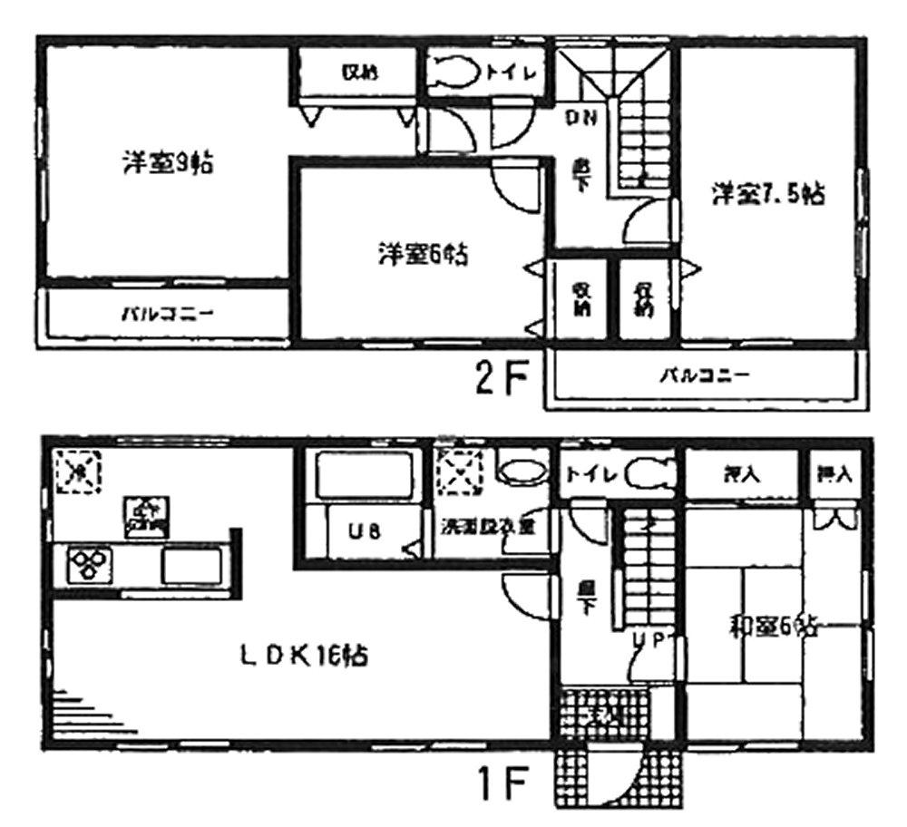
Floor plan間取り図  (1 Building), Price 24,800,000 yen, 4LDK, Land area 160.09 sq m , Building area 104.33 sq m
(1号棟)、価格2480万円、4LDK、土地面積160.09m2、建物面積104.33m2
Local photos, including front road前面道路含む現地写真  Local (11 May 2013) Shooting
現地(2013年11月)撮影
Supermarketスーパー  Mamimato until Iwatsuki shop 1244m
マミーマート岩槻店まで1244m
 The entire compartment Figure
全体区画図
Junior high school中学校  1400m until the Saitama Municipal Johoku junior high school
さいたま市立城北中学校まで1400m
Primary school小学校  Saitama Municipal Johoku 800m up to elementary school
さいたま市立城北小学校まで800m
Kindergarten ・ Nursery幼稚園・保育園  Iwatsuki 528m to nursery school
岩槻保育園まで528m
 Hakutsuru to kindergarten 349m
はくつる幼稚園まで349m
Hospital病院  慈弘 Board Iwatsuki 1285m to the central hospital
慈弘会岩槻中央病院まで1285m
Presentプレゼント  Only to customers who call or document request, Get the Kuokado of 10,000 yen for those of every month 10 pairs ☆ Double chance! "I will present the Kuokado of 2,000 yen to all customers who fill out to visit us We questionnaire with your family" (I will consider it as a one-time set-like)
お電話または資料請求頂いたお客様に限り、毎月10組の方に10,000円のクオカードをプレゼント☆ダブルチャンス!「ご家族でご来店頂きアンケートにご記入頂いたお客様全員に2,000円のクオカードをプレゼント致します」(1組様1回限りとさせて頂きます)
Location
|