New Homes » Kanto » Saitama » Kita-ku
 
| | Saitama city north district 埼玉県さいたま市北区 |
| Saitama new urban transportation Inasen "east Miyahara" walk 4 minutes 埼玉新都市交通伊奈線「東宮原」歩4分 |
| ☆ Convenient to commute in 2 station 2 wayside Available! Two car space Bun'yu! 3LDKS of all rooms facing southeast! Spacious living space with all the living room storage space! Inquiry to 0800-800-8557! ☆2駅2沿線利用可で通勤通学に便利!カースペース2台分有!全室東南向きの3LDKS!全居室収納スペース付で広々住空間!お問合せは0800-800-8557まで! |
| Corresponding to the flat-35S, Parking two Allowed, 2 along the line more accessible, Super close, System kitchen, Bathroom Dryer, All room storage, A quiet residential area, LDK15 tatami mats or moreese-style room, Washbasin with shower, Face-to-face kitchen, Toilet 2 places, Bathroom 1 tsubo or more, 2-story, Double-glazing, Warm water washing toilet seat, The window in the bathroom, TV monitor interphone, City gas, Storeroom, All rooms facing southeast フラット35Sに対応、駐車2台可、2沿線以上利用可、スーパーが近い、システムキッチン、浴室乾燥機、全居室収納、閑静な住宅地、LDK15畳以上、和室、シャワー付洗面台、対面式キッチン、トイレ2ヶ所、浴室1坪以上、2階建、複層ガラス、温水洗浄便座、浴室に窓、TVモニタ付インターホン、都市ガス、納戸、全室東南向き |
Features pickup 特徴ピックアップ | | Corresponding to the flat-35S / Parking two Allowed / 2 along the line more accessible / Super close / System kitchen / Bathroom Dryer / All room storage / A quiet residential area / LDK15 tatami mats or more / Japanese-style room / Washbasin with shower / Face-to-face kitchen / Toilet 2 places / Bathroom 1 tsubo or more / 2-story / Double-glazing / Warm water washing toilet seat / The window in the bathroom / TV monitor interphone / City gas / Storeroom / All rooms facing southeast フラット35Sに対応 /駐車2台可 /2沿線以上利用可 /スーパーが近い /システムキッチン /浴室乾燥機 /全居室収納 /閑静な住宅地 /LDK15畳以上 /和室 /シャワー付洗面台 /対面式キッチン /トイレ2ヶ所 /浴室1坪以上 /2階建 /複層ガラス /温水洗浄便座 /浴室に窓 /TVモニタ付インターホン /都市ガス /納戸 /全室東南向き | Price 価格 | | 26,800,000 yen 2680万円 | Floor plan 間取り | | 3LDK + S (storeroom) 3LDK+S(納戸) | Units sold 販売戸数 | | 1 units 1戸 | Total units 総戸数 | | 3 units 3戸 | Land area 土地面積 | | 109.78 sq m (measured), Alley-like portion: 26.16 sq m including 109.78m2(実測)、路地状部分:26.16m2含 | Building area 建物面積 | | 93.98 sq m (measured) 93.98m2(実測) | Driveway burden-road 私道負担・道路 | | Nothing, East 5.5m width 無、東5.5m幅 | Completion date 完成時期(築年月) | | December 2013 2013年12月 | Address 住所 | | Saitama city north district Miyahara-machi 2 埼玉県さいたま市北区宮原町2 | Traffic 交通 | | Saitama new urban transportation Inasen "east Miyahara" walk 4 minutes JR Takasaki Line "Miyahara" walk 14 minutes 埼玉新都市交通伊奈線「東宮原」歩4分 JR高崎線「宮原」歩14分
| Related links 関連リンク | | [Related Sites of this company] 【この会社の関連サイト】 | Person in charge 担当者より | | [Regarding this property.] ☆ Convenient to commute in 2 station 2 wayside Available! Two car space Bun'yu! 3LDKS of all rooms facing southeast! Spacious living space with all the living room storage space! Free dial [0800-800-8557] Please feel free to contact us to! 【この物件について】☆2駅2沿線利用可で通勤通学に便利!カースペース2台分有!全室東南向きの3LDKS!全居室収納スペース付で広々住空間!フリーダイヤル【0800-800-8557】までお気軽にお問合わせください! | Contact お問い合せ先 | | TEL: 0800-8008557 [Toll free] Please contact the "saw SUUMO (Sumo)" TEL:0800-8008557【通話料無料】「SUUMO(スーモ)を見た」と問い合わせください | Building coverage, floor area ratio 建ぺい率・容積率 | | 60% ・ 200% 60%・200% | Time residents 入居時期 | | Immediate available 即入居可 | Land of the right form 土地の権利形態 | | Ownership 所有権 | Structure and method of construction 構造・工法 | | Wooden 2-story 木造2階建 | Use district 用途地域 | | One dwelling 1種住居 | Overview and notices その他概要・特記事項 | | Facilities: Public Water Supply, This sewage, City gas, Building confirmation number: No. SJK-KX1311020409, Parking: car space 設備:公営水道、本下水、都市ガス、建築確認番号:第SJK-KX1311020409号、駐車場:カースペース | Company profile 会社概要 | | <Mediation> Saitama Governor (2) No. 021094 (Ltd.) Eidai House Omiya Yubinbango330-0854 Saitama Omiya-ku Sakuragicho 4-213 <仲介>埼玉県知事(2)第021094号(株)永大ハウス大宮店〒330-0854 埼玉県さいたま市大宮区桜木町4-213 |
 Local appearance photo
現地外観写真
 Local photos, including front road
前面道路含む現地写真
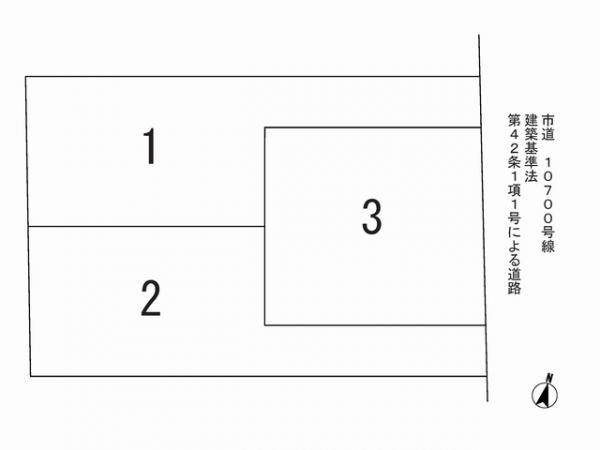
Floor plan間取り図  26,800,000 yen, 3LDK+S, Land area 109.78 sq m , Building area 93.98 sq m 1 Building
2680万円、3LDK+S、土地面積109.78m2、建物面積93.98m2 1号棟
 Living
リビング
 Bathroom
浴室
 Kitchen
キッチン
 Entrance
玄関
 Wash basin, toilet
洗面台・洗面所
 Toilet
トイレ
Primary school小学校  Elementary school to 1150m Saitama Municipal peace elementary school
小学校まで1150m さいたま市立泰平小学校
 Other
その他
Junior high school中学校  1880m until junior high school Municipal Miyahara Junior High School
中学校まで1880m さいたま市立宮原中学校
Other Environmental Photoその他環境写真  To other environment photo 320m Saitama new urban transport Inasen "east Miyahara" station
その他環境写真まで320m 埼玉新都市交通伊奈線「東宮原」駅
Location
|