New Homes » Kanto » Saitama » Kita-ku
 
| | Saitama city north district 埼玉県さいたま市北区 |
| JR Takasaki Line "Miyahara" walk 2 minutes JR高崎線「宮原」歩2分 |
| ~ Takasaki Line ・ Utsunomiya ・ If Kawagoe Line along the line of the new information ~ ☆ Same day viewable if the Company's website from the new non-public information to markdown information ☆ Local preview do not hesitate. ~ 高崎線・宇都宮線・川越線沿線の新規情報なら ~ ☆当社ホームページなら新規未公開情報から値下げ情報まで即日閲覧可能☆現地内覧はお気軽に。 |
| With vaulted ceiling in the living stairs ☆ Loft, Since the ceiling height is very high for children playground ・ Study, etc. ☆ The spacious foyer also has a shoe cloak ☆ Immediate Available, LDK20 tatami mats or more, Super close, Facing south, System kitchen, Bathroom Dryer, Yang per good, All room storage, Around traffic fewer, Face-to-face kitchen, Bathroom 1 tsubo or more, 2-story, City gas リビング階段には吹き抜け付☆ロフトは、天井高がとても高いのでお子様の遊び場・書斎など☆ひろびろ玄関にはシュークロークも付いていますよ☆即入居可、LDK20畳以上、スーパーが近い、南向き、システムキッチン、浴室乾燥機、陽当り良好、全居室収納、周辺交通量少なめ、対面式キッチン、浴室1坪以上、2階建、都市ガス |
Features pickup 特徴ピックアップ | | Immediate Available / Super close / Facing south / System kitchen / Bathroom Dryer / Yang per good / All room storage / Around traffic fewer / Face-to-face kitchen / Bathroom 1 tsubo or more / 2-story / City gas 即入居可 /スーパーが近い /南向き /システムキッチン /浴室乾燥機 /陽当り良好 /全居室収納 /周辺交通量少なめ /対面式キッチン /浴室1坪以上 /2階建 /都市ガス | Price 価格 | | 43,800,000 yen 4380万円 | Floor plan 間取り | | 4LDK 4LDK | Units sold 販売戸数 | | 1 units 1戸 | Land area 土地面積 | | 106.59 sq m 106.59m2 | Building area 建物面積 | | 99.64 sq m 99.64m2 | Driveway burden-road 私道負担・道路 | | Nothing 無 | Completion date 完成時期(築年月) | | September 2013 2013年9月 | Address 住所 | | Saitama city north district Miyahara-cho 3 埼玉県さいたま市北区宮原町3 | Traffic 交通 | | JR Takasaki Line "Miyahara" walk 2 minutes JR Kawagoe Line "Nisshin" walk 18 minutes Saitama new urban transportation Inasen "east Miyahara" walk 17 minutes JR高崎線「宮原」歩2分 JR川越線「日進」歩18分 埼玉新都市交通伊奈線「東宮原」歩17分
| Related links 関連リンク | | [Related Sites of this company] 【この会社の関連サイト】 | Contact お問い合せ先 | | TEL: 0800-602-6594 [Toll free] mobile phone ・ Also available from PHS Caller ID is not notified Please contact the "saw SUUMO (Sumo)" If it does not lead, If the real estate company TEL:0800-602-6594【通話料無料】携帯電話・PHSからもご利用いただけます 発信者番号は通知されません 「SUUMO(スーモ)を見た」と問い合わせください つながらない方、不動産会社の方は
| Time residents 入居時期 | | Immediate available 即入居可 | Land of the right form 土地の権利形態 | | Ownership 所有権 | Structure and method of construction 構造・工法 | | Wooden 2-story 木造2階建 | Overview and notices その他概要・特記事項 | | Facilities: Public Water Supply, This sewage, City gas, Parking: car space 設備:公営水道、本下水、都市ガス、駐車場:カースペース | Company profile 会社概要 | | <Mediation> Saitama Governor (1) No. 022253 (Ltd.) Qualia home Yubinbango338-0821 Saitama Sakura-ku Yamakubo 2-8-8 <仲介>埼玉県知事(1)第022253号(株)クオリアホーム〒338-0821 埼玉県さいたま市桜区山久保2-8-8 |
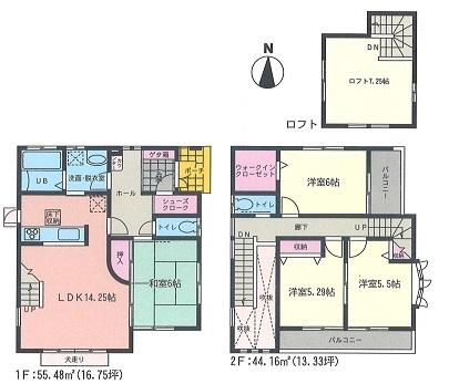
Floor plan間取り図  43,800,000 yen, 4LDK, Land area 106.59 sq m , Building area 99.64 sq m
4380万円、4LDK、土地面積106.59m2、建物面積99.64m2
 Local appearance photo
現地外観写真
 Kitchen
キッチン
 Other
その他
 Bathroom
浴室
 Living
リビング
 Living
リビング
Otherその他  There is there is a stairwell in the living, Smile of your family is likely to overflowing.
リビングには階段があり吹き抜けがあり、ご家族の笑顔が満ち溢れそうです。
 With shoe Croke entrance
玄関にはシュークローク付
 Other
その他
 Other
その他
 Other
その他
 Other
その他
 Other
その他
 Other
その他
 Other
その他
 Spacious loft, It is longing for children
広々ロフトは、お子様の憧れかも
 Other
その他
 Other
その他
 Loft space with a high ceiling
天井高のあるロフトスペース
Station駅  Why not a building to a single one of the specification with feelings are visited by your family everyone? .
仕様の一つ一つにこだわりのある建物をご家族皆様で見学されてみませんか?ロフトスペースはご家族皆様の笑顔が溢れると思います。
Location
|