New Homes » Kanto » Saitama » Kita-ku


Saitama city north district
Saitama new urban transportation Inasen "Yoshinoharu" walk 5 minutes
◆ A 5-minute walk to the station ◆ House performance evaluation papers
Construction housing performance with evaluation, Design house performance with evaluation, Pre-ground survey, Parking two Allowed, System kitchen, All room storage, Washbasin with shower, Face-to-face kitchen, Barrier-free, Bathroom 1 tsubo or more, 2-story, Double-glazing, Underfloor Storage, The window in the bathroom, Leafy residential area, All living room flooring
Features pickup
Construction housing performance with evaluation / Design house performance with evaluation / Pre-ground survey / Parking two Allowed / System kitchen / All room storage / Washbasin with shower / Face-to-face kitchen / Barrier-free / Bathroom 1 tsubo or more / 2-story / Double-glazing / Underfloor Storage / The window in the bathroom / Leafy residential area / All living room flooring
Price
25,800,000 yen ~ 31.5 million yen
Floor plan
4LDK
Units sold
3 units
Total units
3 units
Land area
149.05 sq m ~ 179.23 sq m (measured)
Building area
92.74 sq m ~ 101.23 sq m
Driveway burden-road
Road width: 9m
Completion date
March 2014 schedule
Address
Saitama city north district Imahane-cho, 282
Traffic
Saitama new urban transportation Inasen "Yoshinoharu" walk 5 minutes
Related links
[Related Sites of this company]
Person in charge
Rep Yamaura Hirofumi Age: 50 Daigyokai experience: born and raised local people in the 12 years Warabi. Please feel free to contact us with any thing.
Contact
TEL: 0800-603-1338 [Toll free] mobile phone ・ Also available from PHS
Caller ID is not notified
Please contact the "saw SUUMO (Sumo)"
If it does not lead, If the real estate company
Building coverage, floor area ratio
Kenpei rate: 60%, Volume ratio: 200%
Time residents
March 2014 schedule
Land of the right form
Ownership
Structure and method of construction
Wooden 2-story
Use district
Two mid-high
Land category
Residential land
Overview and notices
Contact: YAMAURA Hirofumi, Building confirmation number: No. HPA-13-06235-1
Company profile
<Mediation> Saitama Governor (10) Article 008812 No. Century 21 Ltd. Nikken Ju販 Yubinbango335-0034 Toda City Prefecture Sasame 1-15-10


Local appearance photo

Local appearance photo. Local (12 May 2013) Shooting
Local (12 May 2013) Shooting

Local photos, including front road

Local photos, including front road. Local (12 May 2013) Shooting
Local (12 May 2013) Shooting

Floor plan

Floor plan. (1 Building), Price 25,800,000 yen, 4LDK, Land area 179.23 sq m , Building area 92.74 sq m
(1 Building), Price 25,800,000 yen, 4LDK, Land area 179.23 sq m , Building area 92.74 sq m

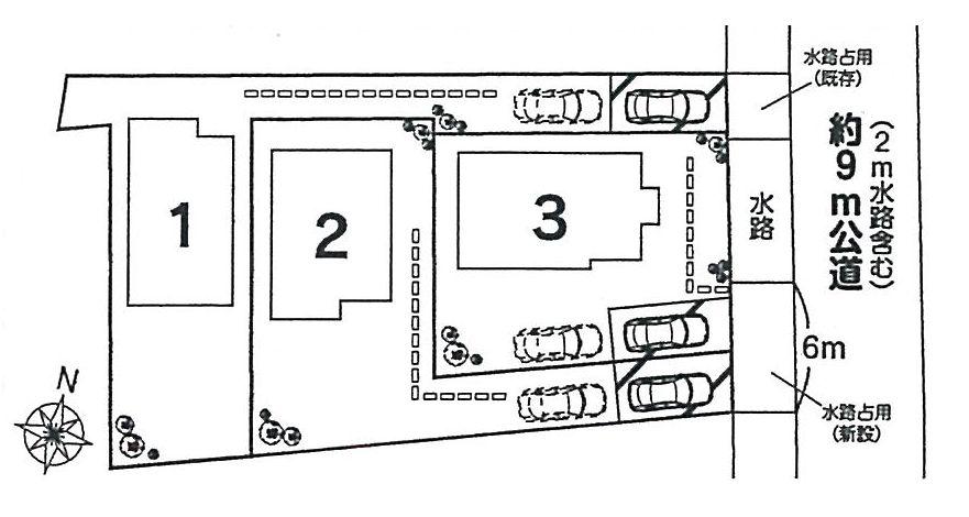
The entire compartment Figure
The entire compartment Figure

Floor plan. (Building 2), Price 27,800,000 yen, 4LDK, Land area 171.04 sq m , Building area 96.46 sq m
(Building 2), Price 27,800,000 yen, 4LDK, Land area 171.04 sq m , Building area 96.46 sq m

Floor plan. (3 Building), Price 31.5 million yen, 4LDK, Land area 149.05 sq m , Building area 101.23 sq m
(3 Building), Price 31.5 million yen, 4LDK, Land area 149.05 sq m , Building area 101.23 sq m



Location