Investing in Japanese real estate
Saitama, Kita-ku, Hongo-cho
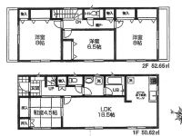
2014February 33,800,000 yen ~ 38,800,000 yen, 4LDK, 93.57 sq m ~ 100.19 sq m | ||
Saitama, Kita-ku, Hongo-cho
2014February 33,800,000 yen ~ 38,800,000 yen, 4LDK, 93.57 sq m ~ 100.19 sq m | ||
Saitama city north district Miyahara cho
2013November 37,800,000 yen, 3LDK + S (storeroom), 111.78 sq m | ||
Saitama city north district Taisei-cho 4
2013November 34,800,000 yen ~ 38,800,000 yen, 4LDK, 97.6 sq m ~ 99.83 sq m | Saitama city north district Miyahara-machi 4
22,800,000 yen, 132.56 sq m | |
Saitama city north district Imahane cho 343-1
2014January 28.8 million yen ・ 29,800,000 yen, 3LDK ・ 3LDK (4LDK correspondence possible), 97.51 sq m ・ 102.22 sq m | ||
Saitama, Kita-ku, Yoshino-cho 2-242
2014March 21,800,000 yen ~ 25,800,000 yen, 4LDK, 85.85 sq m ~ 102.05 sq m | ||
Saitama city north district Miyahara-machi 2
2013December 26,800,000 yen, 3LDK + S (storeroom), 93.98 sq m | ||