New Homes » Kanto » Saitama » Midori-ku
 
| | Saitama Midori Ward 埼玉県さいたま市緑区 |
| JR Keihin Tohoku Line "Urawa" walk 41 minutes JR京浜東北線「浦和」歩41分 |
| ■ Nakao until elementary school 1340m (17 minutes walk) ■ Higashiura to sum junior high school 1130m (15 minutes walk) ☆ Lifestyle proposal type theme Town. [The House of cafe] ☆ ■中尾小学校まで1340m(徒歩17分) ■東浦和中学校まで1130m(徒歩15分)☆ライフスタイル提案型テーマタウン。【カフェのいえ】☆ |
| ◆ Partition wall adopted to accommodate the lifestyle of your family. ◆ pantry, Linen cabinet, Living storage, Room housing wealth. It maintains the integrity of the room and clean. ◆ There is lighting from all rooms south. You can spend the day comfortably. ◆ In Mato of living access, Communication with your family is easy to summarize that take ◆ご家族のライフスタイルに対応できる間仕切り壁採用。◆パントリー、リネン庫、リビング収納、居室収納豊富。お部屋をすっきりと保てます。◆全室南側からの採光あり。一日気持ちよくお過ごしいただけます。◆リビングアクセスの間取で、ご家族とのコミュニケーションがとりやすい間取です |
Features pickup 特徴ピックアップ | | Immediate Available / Super close / Facing south / System kitchen / Yang per good / All room storage / LDK15 tatami mats or more / Or more before road 6m / Washbasin with shower / Face-to-face kitchen / Toilet 2 places / Bathroom 1 tsubo or more / 2-story / South balcony / Double-glazing / Zenshitsuminami direction / Warm water washing toilet seat / Underfloor Storage / The window in the bathroom / Atrium / TV monitor interphone / Ventilation good / All living room flooring / Dish washing dryer / Walk-in closet / Or more ceiling height 2.5m / All room 6 tatami mats or more / Water filter / Living stairs / City gas / All rooms are two-sided lighting / Floor heating 即入居可 /スーパーが近い /南向き /システムキッチン /陽当り良好 /全居室収納 /LDK15畳以上 /前道6m以上 /シャワー付洗面台 /対面式キッチン /トイレ2ヶ所 /浴室1坪以上 /2階建 /南面バルコニー /複層ガラス /全室南向き /温水洗浄便座 /床下収納 /浴室に窓 /吹抜け /TVモニタ付インターホン /通風良好 /全居室フローリング /食器洗乾燥機 /ウォークインクロゼット /天井高2.5m以上 /全居室6畳以上 /浄水器 /リビング階段 /都市ガス /全室2面採光 /床暖房 | Price 価格 | | 33,700,000 yen 3370万円 | Floor plan 間取り | | 2LDK 2LDK | Units sold 販売戸数 | | 1 units 1戸 | Land area 土地面積 | | 110.12 sq m (33.31 tsubo) (Registration) 110.12m2(33.31坪)(登記) | Building area 建物面積 | | 92.32 sq m (27.92 tsubo) (Registration) 92.32m2(27.92坪)(登記) | Driveway burden-road 私道負担・道路 | | Nothing, North 6m width 無、北6m幅 | Completion date 完成時期(築年月) | | June 2013 2013年6月 | Address 住所 | | Saitama Midori Ward Oaza Nakao 埼玉県さいたま市緑区大字中尾 | Traffic 交通 | | JR Keihin Tohoku Line "Urawa" walk 41 minutes JR Keihin Tohoku Line "Urawa" bus 23 minutes Nakao KitaAyumi 3 minutes JR Keihin Tohoku Line "Kitaurawa" a 20-minute education center before walking 7 minutes by bus JR京浜東北線「浦和」歩41分 JR京浜東北線「浦和」バス23分中尾北歩3分 JR京浜東北線「北浦和」バス20分教育センター前歩7分
| Person in charge 担当者より | | Person in charge of real-estate and building Nakajima Takashi Age: 40 Daigyokai Experience: 17 years our Yono sales office, Intermediary handling the number of Yono Station within walking distance condominium is there rich. now, Or when to buy or when selling real estate, We will carry out appropriate advice. 担当者宅建中島 崇年齢:40代業界経験:17年私ども与野営業所は、与野駅徒歩圏内中古マンションの仲介取り扱い数が豊富でございます。今、不動産の売り時か買い時か、適切なアドバイスをさせていただきます。 | Contact お問い合せ先 | | TEL: 0800-603-0718 [Toll free] mobile phone ・ Also available from PHS Caller ID is not notified Please contact the "saw SUUMO (Sumo)" If it does not lead, If the real estate company TEL:0800-603-0718【通話料無料】携帯電話・PHSからもご利用いただけます 発信者番号は通知されません 「SUUMO(スーモ)を見た」と問い合わせください つながらない方、不動産会社の方は
| Building coverage, floor area ratio 建ぺい率・容積率 | | Fifty percent ・ Hundred percent 50%・100% | Time residents 入居時期 | | Immediate available 即入居可 | Land of the right form 土地の権利形態 | | Ownership 所有権 | Structure and method of construction 構造・工法 | | Wooden 2-story (conventional method) 木造2階建(在来工法) | Construction 施工 | | Poratekku (Ltd.) ポラテック(株) | Use district 用途地域 | | One low-rise, Two dwellings 1種低層、2種住居 | Overview and notices その他概要・特記事項 | | Contact: Nakajima Takashi, Facilities: Public Water Supply, This sewage, City gas, Parking: car space 担当者:中島 崇、設備:公営水道、本下水、都市ガス、駐車場:カースペース | Company profile 会社概要 | | <Seller> Minister of Land, Infrastructure and Transport (11) No. 002401 (Corporation) Prefecture Building Lots and Buildings Transaction Business Association (Corporation) metropolitan area real estate Fair Trade Council member (Ltd.) a central residential Porras residence of Information Center Yono office Yubinbango330-0071 Saitama Urawa Ward City Kamikizaki 1-8-10 <売主>国土交通大臣(11)第002401号(公社)埼玉県宅地建物取引業協会会員 (公社)首都圏不動産公正取引協議会加盟(株)中央住宅ポラス住まいの情報館与野営業所〒330-0071 埼玉県さいたま市浦和区上木崎1-8-10 |
Local appearance photo現地外観写真  ◆ Wooden 2-story site (August 2013) Shooting
◆木造2階建現地(2013年8月)撮影
Livingリビング  ◆ LDK in flow line of the family. Room (August 2013) Shooting
◆ご家族の動線にLDK。 室内(2013年8月)撮影
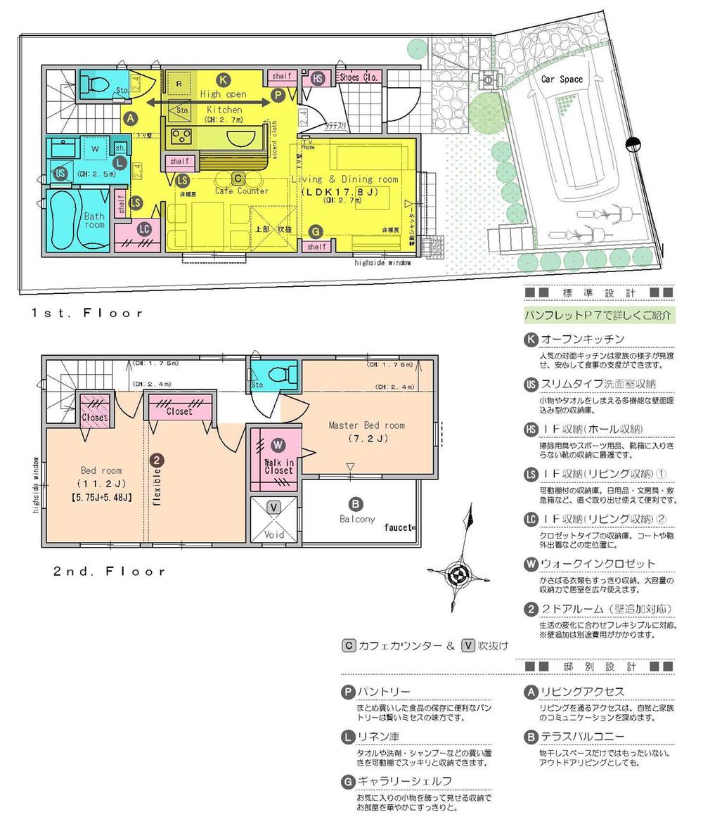
Floor plan間取り図  33,700,000 yen, 2LDK, Land area 110.12 sq m , Building area 92.32 sq m ◆ Matrix where you can enjoy a home cafe
3370万円、2LDK、土地面積110.12m2、建物面積92.32m2 ◆お家カフェを楽しめる間取
Local appearance photo現地外観写真  Local (August 2013) Shooting
現地(2013年8月)撮影
Livingリビング  Room (August 2013) Shooting
室内(2013年8月)撮影
Bathroom浴室  Room (August 2013) Shooting
室内(2013年8月)撮影
Kitchenキッチン  Room (August 2013) Shooting
室内(2013年8月)撮影
Non-living roomリビング以外の居室  Room (August 2013) Shooting
室内(2013年8月)撮影
Wash basin, toilet洗面台・洗面所  Room (August 2013) Shooting
室内(2013年8月)撮影
Shopping centreショッピングセンター  250m to quiz gate Urawa
クイズゲート浦和まで250m
Non-living roomリビング以外の居室  Room (August 2013) Shooting
室内(2013年8月)撮影
Supermarketスーパー  Inageya 250m to Urawa Nakao shop
いなげや浦和中尾店まで250m
Junior high school中学校  1130m to Saitama City Tatsuhigashi Urawa junior high school
さいたま市立東浦和中学校まで1130m
Primary school小学校  1340m to Saitama City Nakao Elementary School
さいたま市立中尾小学校まで1340m
Hospital病院  830m until the medical corporation Hirohito Association mutual aid hospital
医療法人博仁会共済病院まで830m
Location
|