New Homes » Kanto » Saitama » Midori-ku
 
| | Saitama Midori Ward 埼玉県さいたま市緑区 |
| JR Keihin Tohoku Line "Kitaurawa" bus 13 minutes Municipal apartment walk 3 minutes JR京浜東北線「北浦和」バス13分市営アパート歩3分 |
| Living in the rich commercial facility and the birth of the new city blocks 12 House to enjoy facilities of enhancement area in parent and child notice from. 住んでから気付く豊かな商業施設と親子で楽しめる施設が充実のエリアに新街区12邸誕生。 |
| ◆ All 23 House ・ Project consisting of two city blocks! ◆ In the center of town to good access ○ JR Keihin Tohoku Line "Kitaurawa" station use! Supermarkets and park in ○ within a 10-minute walk, Town of elementary school there is peace of mind! Friendly planning ○ to Mrs. equipped with a variety of storage! ◆全23邸・2街区からなるプロジェクト!◆○JR京浜東北線「北浦和」駅利用で都心まで好アクセス!○徒歩10分圏内にスーパーや公園、小学校がある安心の街!○多彩な収納をそなえたミセスに優しいプランニング! |
Local guide map 現地案内図 | | Local guide map 現地案内図 | Features pickup 特徴ピックアップ | | Measures to conserve energy / Vibration Control ・ Seismic isolation ・ Earthquake resistant / Super close / System kitchen / Bathroom Dryer / All room storage / LDK15 tatami mats or more / Corner lot / Japanese-style room / Washbasin with shower / Face-to-face kitchen / Wide balcony / Barrier-free / Toilet 2 places / Bathroom 1 tsubo or more / 2-story / South balcony / Double-glazing / Warm water washing toilet seat / The window in the bathroom / TV monitor interphone / Dish washing dryer / Walk-in closet / Or more ceiling height 2.5m / City gas / All rooms are two-sided lighting / BS ・ CS ・ CATV / Floor heating 省エネルギー対策 /制震・免震・耐震 /スーパーが近い /システムキッチン /浴室乾燥機 /全居室収納 /LDK15畳以上 /角地 /和室 /シャワー付洗面台 /対面式キッチン /ワイドバルコニー /バリアフリー /トイレ2ヶ所 /浴室1坪以上 /2階建 /南面バルコニー /複層ガラス /温水洗浄便座 /浴室に窓 /TVモニタ付インターホン /食器洗乾燥機 /ウォークインクロゼット /天井高2.5m以上 /都市ガス /全室2面採光 /BS・CS・CATV /床暖房 | Property name 物件名 | | Sale house of Porras Hill of Ikumi Urawa ・ Sayado ~ Limone Street District ~ ポラスの分譲住宅 育実の丘 浦和・道祖土 ~ リモーネ街区 ~ | Price 価格 | | 41,800,000 yen ~ 43,800,000 yen 4180万円 ~ 4380万円 | Floor plan 間取り | | 3LDK ~ 4LDK 3LDK ~ 4LDK | Units sold 販売戸数 | | 3 units 3戸 | Total units 総戸数 | | 23 units 23戸 | Land area 土地面積 | | 105.54 sq m ~ 112.45 sq m (registration) 105.54m2 ~ 112.45m2(登記) | Building area 建物面積 | | 97.7 sq m ~ 103.4 sq m 97.7m2 ~ 103.4m2 | Driveway burden-road 私道負担・道路 | | Yes あり | Completion date 完成時期(築年月) | | Mid-April, 2014 2014年4月中旬予定 | Address 住所 | | Saitama Midori Ward Sayado 2-132-1 埼玉県さいたま市緑区道祖土2-132-1 | Traffic 交通 | | JR Keihin Tohoku Line "Kitaurawa" bus 13 minutes Municipal apartment walk 3 minutes JR京浜東北線「北浦和」バス13分市営アパート歩3分
| Related links 関連リンク | | [Related Sites of this company] 【この会社の関連サイト】 | Contact お問い合せ先 | | Porras My Home Plaza (Ltd.) TEL: 0120-235334 [Toll free] Please contact the "saw SUUMO (Sumo)" ポラスマイホームプラザ(株)TEL:0120-235334【通話料無料】「SUUMO(スーモ)を見た」と問い合わせください | Sale schedule 販売スケジュール | | First-come-first-served basis application being accepted 先着順申込受付中 | Building coverage, floor area ratio 建ぺい率・容積率 | | Building coverage 60% floor space index 200% 建ぺい率60% 容積率200% | Time residents 入居時期 | | April 2014 schedule 2014年4月予定 | Land of the right form 土地の権利形態 | | Ownership 所有権 | Structure and method of construction 構造・工法 | | Wooden 2-story (conventional method) 木造2階建(在来工法) | Construction 施工 | | Poratekku (Ltd.) ポラテック(株) | Use district 用途地域 | | One middle and high 1種中高 | Land category 地目 | | Residential land 宅地 | Other limitations その他制限事項 | | ※ The sale price includes the consumption tax eighth of the building. ※ Total units of Limone city block will be 12 units. ※ Driveway equity 60.76m2 (4 minutes of the 1 3 ・ 4 ・ 5 ・ 6 Building), 66.41m2 (4 minutes of the 1 7 ・ 8 ・ 9 ・ 10 Building) there is. ※販売価格には建物の消費税8分が含まれます。 ※リモーネ街区の総戸数は12戸になります。 ※私道持分60.76m2(4分の1 3・4・5・6号棟)、66.41m2(4分の1 7・8・9・10号棟)がございます。 | Overview and notices その他概要・特記事項 | | Building confirmation number: No. SJK-KX1311071712 (2013 October 22) Other 建築確認番号:第SJK-KX1311071712号(平成25年10月22日)他 | Company profile 会社概要 | | <Seller> Saitama Governor (9) No. 008059 (Corporation) Prefecture Building Lots and Buildings Transaction Business Association (Corporation) metropolitan area real estate Fair Trade Council member Porras My Home Plaza Co., Ltd. Yubinbango330-0061 Saitama Urawa-ku, Tokiwa 10-15-16 <売主>埼玉県知事(9)第008059号(公社)埼玉県宅地建物取引業協会会員 (公社)首都圏不動産公正取引協議会加盟ポラスマイホームプラザ(株)〒330-0061 埼玉県さいたま市浦和区常盤10-15-16 |
Rendering (appearance)完成予想図(外観)  Limone Street District
リモーネ街区
 Bright streets of the outer wall of the soft shades fit with the blue sky
柔らかな色合いの外壁が青空となじむ明るい街並
 Price - All 23 House of project. Town to support the 23 families of the community.
価格 - 全23邸のプロジェクト。23家族のコミュニティーをサポートする街。
Model house photoモデルハウス写真  Support child-rearing, Planning can enjoy mom.
子育てをサポートし、ママも楽しめるプランニング。
 To dinner taking food from the home garden.
家庭菜園から食材をとって夕食に。
 Space DEN a little relaxation
ちょっとした寛ぎの空間DEN
 Kids housed support the self-reliance and discipline of children
キッズ収納はお子様のしつけと自立をサポート
Other Equipmentその他設備  Unit bus of slowly relaxing 1 pyeong type in the family. Difficult dirt, Sugopika support the clean bathtub and feelings bath floor will keep the beauty much.
家族でゆっくり寛げる1坪タイプのユニットバス。汚れにくく、ずっとキレイをささえるスゴピカ浴槽やキモチ浴フロアーが美しさを保ちます。
 heating ・ Drying ・ Cool breeze ・ Bathroom ventilation dryer with four of the functions of the ventilation
暖房・乾燥・涼風・換気の4つの機能が付いた浴室換気乾燥機
 Caring Easy artificial marble counters and smart hood reduce the burden of wife. Room is born to the time the dish washing dryer in the standard installation.
お手入れらくらくの人造大理石カウンターやスマートフードが奥様の負担を軽減。食器洗乾燥機を標準設置で時間にゆとりが生まれます。
 Power eradication mist will wash away the stubborn dirt.
パワー除菌ミストが頑固な汚れを洗い流します。
Primary school小学校  750m to Daito elementary school
大東小学校まで750m
Junior high school中学校  Kizaki 990m until junior high school
木崎中学校まで990m
Kindergarten ・ Nursery幼稚園・保育園  810m until nuts kindergarten
木の実幼稚園まで810m
Supermarketスーパー  Until Akore 260m
アコレまで260m
 960m to Saitama Co-op
さいたまコープまで960m
Hospital病院  500m to family clinic
ファミリークリニックまで500m
 590m until Kimura internal medicine clinic
木村内科クリニックまで590m
 Local guide map
現地案内図
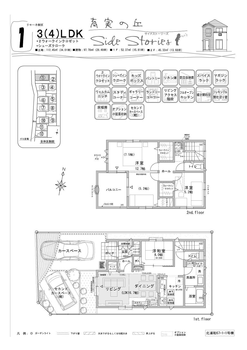
Floor plan間取り図  (Limone Street District 1 Building), Price 41,800,000 yen, 3LDK+3S, Land area 112.45 sq m , Building area 97.7 sq m
(リモーネ街区1号棟)、価格4180万円、3LDK+3S、土地面積112.45m2、建物面積97.7m2
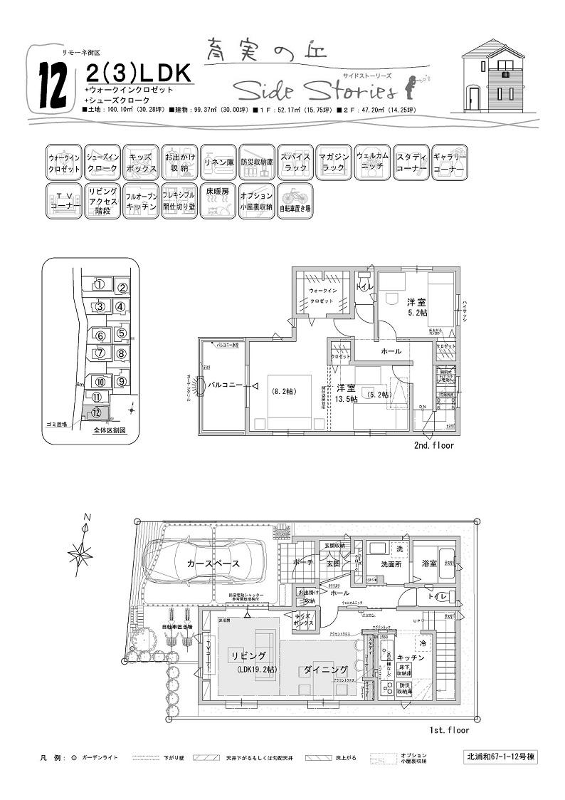
 (Limone Street District 12 Building), Price 30,800,000 yen, 2LDK+2S, Land area 100.1 sq m , Building area 99.37 sq m
(リモーネ街区12号棟)、価格3080万円、2LDK+2S、土地面積100.1m2、建物面積99.37m2
Location
|