|
|
Saitama Midori Ward
埼玉県さいたま市緑区
|
|
JR Keihin Tohoku Line "Urawa" walk 18 minutes
JR京浜東北線「浦和」歩18分
|
|
And the atrium there is a feeling of opening, It is with a loft, It is safe, built-in garage.
開放感がある吹き抜けと、ロフト付です、安心なビルトイン車庫です。
|
|
HARAYAMA until elementary school 100m, HARAYAMA 100m until junior high school, 750m until Okay store, It is 120m to Urawa Mizuho kindergarten.
原山小学校まで100m、原山中学校まで100m、オーケーストアまで750m、浦和みずほ幼稚園まで120mです。
|
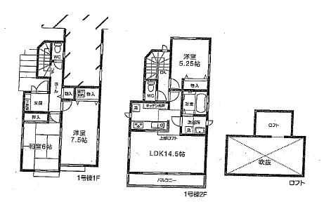
Features pickup 特徴ピックアップ | | System kitchen / Washbasin with shower / Face-to-face kitchen / Toilet 2 places / 2-story / Double-glazing / Warm water washing toilet seat / loft / Underfloor Storage / Atrium / TV monitor interphone / Built garage / City gas システムキッチン /シャワー付洗面台 /対面式キッチン /トイレ2ヶ所 /2階建 /複層ガラス /温水洗浄便座 /ロフト /床下収納 /吹抜け /TVモニタ付インターホン /ビルトガレージ /都市ガス |
Price 価格 | | 34,500,000 yen 3450万円 |
Floor plan 間取り | | 3LDK 3LDK |
Units sold 販売戸数 | | 1 units 1戸 |
Total units 総戸数 | | 1 units 1戸 |
Land area 土地面積 | | 80.7 sq m (registration) 80.7m2(登記) |
Building area 建物面積 | | 92.74 sq m (measured), Among the first floor garage 11.17 sq m 92.74m2(実測)、うち1階車庫11.17m2 |
Driveway burden-road 私道負担・道路 | | 23.97 sq m 23.97m2 |
Completion date 完成時期(築年月) | | January 2014 2014年1月 |
Address 住所 | | Saitama Midori Ward Daitakubo 1 埼玉県さいたま市緑区太田窪1 |
Traffic 交通 | | JR Keihin Tohoku Line "Urawa" walk 18 minutes JR京浜東北線「浦和」歩18分
|
Related links 関連リンク | | [Related Sites of this company] 【この会社の関連サイト】 |
Person in charge 担当者より | | [Regarding this property.] Anything that, Please feel free to contact us, We will introduce your satisfaction Property thank you very much. 【この物件について】どんな事でも、お気軽にご相談下さい、ご満足頂ける物件をご紹介いたしますのでどうぞよろしくお願いいたします。 |
Contact お問い合せ先 | | TEL: 0800-603-3853 [Toll free] mobile phone ・ Also available from PHS Caller ID is not notified Please contact the "saw SUUMO (Sumo)" If it does not lead, If the real estate company TEL:0800-603-3853【通話料無料】携帯電話・PHSからもご利用いただけます 発信者番号は通知されません 「SUUMO(スーモ)を見た」と問い合わせください つながらない方、不動産会社の方は
|
Building coverage, floor area ratio 建ぺい率・容積率 | | 60% ・ 200% 60%・200% |
Time residents 入居時期 | | January 2014 2014年1月 |
Land of the right form 土地の権利形態 | | Ownership 所有権 |
Structure and method of construction 構造・工法 | | Wooden 2-story 木造2階建 |
Use district 用途地域 | | One dwelling 1種住居 |
Overview and notices その他概要・特記事項 | | Facilities: Public Water Supply, This sewage, City gas, Building confirmation number: No. HPA-13-06402-1, Parking: Garage 設備:公営水道、本下水、都市ガス、建築確認番号:第HPA-13-06402-1号、駐車場:車庫 |
Company profile 会社概要 | | <Mediation> Saitama Governor (3) No. 018791 (Ltd.) CH Cosmo Home home sales Urawa office Yubinbango330-0063 Saitama Urawa-ku Takasago 1-7-8 <仲介>埼玉県知事(3)第018791号(株)CHコスモホーム住宅販売浦和営業所〒330-0063 埼玉県さいたま市浦和区高砂1-7-8 |