|
|
Saitama Minami-ku
埼玉県さいたま市南区
|
|
JR Musashino Line "Kazu Nishiura" walk 18 minutes
JR武蔵野線「西浦和」歩18分
|
|
JR Musashino Line is ideally situated in west Urawa Station 18 mins, LDK spacious 16.5 Pledge.
JR武蔵野線西浦和駅徒歩18分の好立地です、LDK広々16.5帖です。
|
|
800m until Tajima Elementary School, 900m until Tajima junior high school, 196m to Matsumoto kindergarten, 1000m is up to Rogers. Face-to-face kitchen, Storeroom, LDK15 tatami mats or more, All room storage, Three-story or more, City gas, Toilet 2 places, Double-glazing, Warm water washing toilet seat, TV monitor interphone
田島小学校まで800m、田島中学校まで900m、松本幼稚園まで196m、ロジャースまで1000mです。 対面式キッチン、納戸、LDK15畳以上、全居室収納、3階建以上、都市ガス、トイレ2ヶ所、複層ガラス、温水洗浄便座、TVモニタ付インターホン
|
Features pickup 特徴ピックアップ | | All room storage / LDK15 tatami mats or more / Face-to-face kitchen / Toilet 2 places / Double-glazing / Warm water washing toilet seat / TV monitor interphone / Three-story or more / City gas / Storeroom 全居室収納 /LDK15畳以上 /対面式キッチン /トイレ2ヶ所 /複層ガラス /温水洗浄便座 /TVモニタ付インターホン /3階建以上 /都市ガス /納戸 |
Price 価格 | | 23.8 million yen 2380万円 |
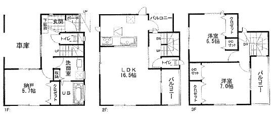
Floor plan 間取り | | 2LDK + S (storeroom) 2LDK+S(納戸) |
Units sold 販売戸数 | | 1 units 1戸 |
Land area 土地面積 | | 65.21 sq m 65.21m2 |
Building area 建物面積 | | 103.05 sq m (measured), Among the first floor garage 11.17 sq m 103.05m2(実測)、うち1階車庫11.17m2 |
Driveway burden-road 私道負担・道路 | | 15.19 sq m 15.19m2 |
Completion date 完成時期(築年月) | | March 2014 2014年3月 |
Address 住所 | | Saitama Minami-ku Matsumoto 3 埼玉県さいたま市南区松本3 |
Traffic 交通 | | JR Musashino Line "Kazu Nishiura" walk 18 minutes JR武蔵野線「西浦和」歩18分 |
Related links 関連リンク | | [Related Sites of this company] 【この会社の関連サイト】 |
Person in charge 担当者より | | [Regarding this property.] Anything that, Please feel free to contact us, We will introduce your satisfaction Property thank you very much. 【この物件について】どんな事でも、お気軽にご相談下さい、ご満足頂ける物件をご紹介いたしますのでどうぞよろしくお願いいたします。 |
Contact お問い合せ先 | | TEL: 0800-603-3853 [Toll free] mobile phone ・ Also available from PHS Caller ID is not notified Please contact the "saw SUUMO (Sumo)" If it does not lead, If the real estate company TEL:0800-603-3853【通話料無料】携帯電話・PHSからもご利用いただけます 発信者番号は通知されません 「SUUMO(スーモ)を見た」と問い合わせください つながらない方、不動産会社の方は
|
Building coverage, floor area ratio 建ぺい率・容積率 | | 60% ・ 160% 60%・160% |
Time residents 入居時期 | | March 2014 schedule 2014年3月予定 |
Land of the right form 土地の権利形態 | | Ownership 所有権 |
Structure and method of construction 構造・工法 | | Wooden three-story 木造3階建 |
Use district 用途地域 | | One dwelling 1種住居 |
Other limitations その他制限事項 | | Regulations have by the Landscape Act, Height district 景観法による規制有、高度地区 |
Overview and notices その他概要・特記事項 | | Facilities: Public Water Supply, This sewage, City gas, Building confirmation number: No. KS113-3120-00262, Parking: Garage 設備:公営水道、本下水、都市ガス、建築確認番号:第KS113-3120-00262号、駐車場:車庫 |
Company profile 会社概要 | | <Mediation> Saitama Governor (3) No. 018791 (Ltd.) CH Cosmo Home home sales Urawa office Yubinbango330-0063 Saitama Urawa-ku Takasago 1-7-8 <仲介>埼玉県知事(3)第018791号(株)CHコスモホーム住宅販売浦和営業所〒330-0063 埼玉県さいたま市浦和区高砂1-7-8 |