|
|
Saitama Prefecture Satte
埼玉県幸手市
|
|
Tobu Nikko Line "Satte" walk 15 minutes
東武日光線「幸手」歩15分
|
|
Limited time offer! Air conditioning three gift Campaign! Please feel free to contact us.
期間限定!エアコン3台プレゼントキャンペーン実施中!お気軽にお問い合わせください。
|
|
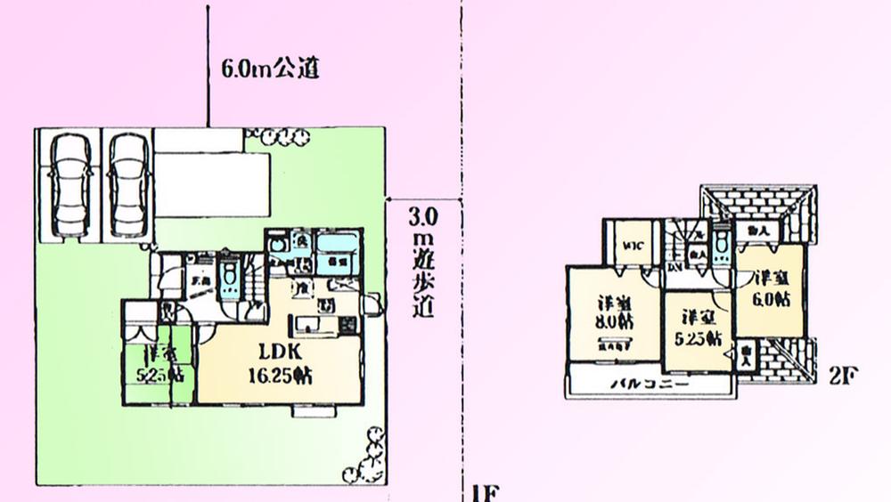
・ LDK16 quires more ・ Car space two parking Allowed ・ Enhancement, such as shopping facilities are within walking distance! Convenient living environment ・ With bathroom dryer of your laundry a breeze even on a rainy day
・LDK16帖以上・カースペース2台駐車可・買い物施設などが徒歩圏内に充実!便利な住環境・雨の日もお洗濯楽々の浴室乾燥機付き
|
Features pickup 特徴ピックアップ | | Design house performance with evaluation / Long-term high-quality housing / Pre-ground survey / Vibration Control ・ Seismic isolation ・ Earthquake resistant / Parking two Allowed / Land 50 square meters or more / Super close / It is close to the city / System kitchen / Bathroom Dryer / Yang per good / All room storage / Flat to the station / LDK15 tatami mats or more / Around traffic fewer / Or more before road 6m / Japanese-style room / Shaping land / Garden more than 10 square meters / garden / Washbasin with shower / Face-to-face kitchen / Wide balcony / Toilet 2 places / Bathroom 1 tsubo or more / 2-story / 2 or more sides balcony / Double-glazing / Otobasu / Warm water washing toilet seat / Nantei / Underfloor Storage / The window in the bathroom / TV monitor interphone / Leafy residential area / Ventilation good / Walk-in closet / Water filter / Flat terrain 設計住宅性能評価付 /長期優良住宅 /地盤調査済 /制震・免震・耐震 /駐車2台可 /土地50坪以上 /スーパーが近い /市街地が近い /システムキッチン /浴室乾燥機 /陽当り良好 /全居室収納 /駅まで平坦 /LDK15畳以上 /周辺交通量少なめ /前道6m以上 /和室 /整形地 /庭10坪以上 /庭 /シャワー付洗面台 /対面式キッチン /ワイドバルコニー /トイレ2ヶ所 /浴室1坪以上 /2階建 /2面以上バルコニー /複層ガラス /オートバス /温水洗浄便座 /南庭 /床下収納 /浴室に窓 /TVモニタ付インターホン /緑豊かな住宅地 /通風良好 /ウォークインクロゼット /浄水器 /平坦地 |
Price 価格 | | 23.8 million yen 2380万円 |
Floor plan 間取り | | 4LDK 4LDK |
Units sold 販売戸数 | | 1 units 1戸 |
Total units 総戸数 | | 1 units 1戸 |
Land area 土地面積 | | 190.11 sq m (measured) 190.11m2(実測) |
Building area 建物面積 | | 99.36 sq m (measured) 99.36m2(実測) |
Driveway burden-road 私道負担・道路 | | Nothing 無 |
Completion date 完成時期(築年月) | | April 2014 2014年4月 |
Address 住所 | | Saitama Prefecture Satte Kamikoya 1 埼玉県幸手市上高野1 |
Traffic 交通 | | Tobu Nikko Line "Satte" walk 15 minutes Tobu Nikko Line "Sugito Takanodai" walk 26 minutes Isesaki Tobu "Wado" walk 57 minutes 東武日光線「幸手」歩15分 東武日光線「杉戸高野台」歩26分 東武伊勢崎線「和戸」歩57分
|
Person in charge 担当者より | | [Regarding this property.] M's is a convenient living environment for shopping facilities and fulfilling, such as Town and Joyful Honda. Going out and attending school and a 15-minute walk from the station, Convenient to commute! 【この物件について】エムズタウンやジョイフル本田などの買い物施設が充実した便利な住環境です。駅へも徒歩15分とお出かけや通学、通勤に便利! |
Contact お問い合せ先 | | TEL: 0800-809-8278 [Toll free] mobile phone ・ Also available from PHS Caller ID is not notified Please contact the "saw SUUMO (Sumo)" If it does not lead, If the real estate company TEL:0800-809-8278【通話料無料】携帯電話・PHSからもご利用いただけます 発信者番号は通知されません 「SUUMO(スーモ)を見た」と問い合わせください つながらない方、不動産会社の方は
|
Building coverage, floor area ratio 建ぺい率・容積率 | | Fifty percent ・ Hundred percent 50%・100% |
Time residents 入居時期 | | May 2014 plans 2014年5月予定 |
Land of the right form 土地の権利形態 | | Ownership 所有権 |
Structure and method of construction 構造・工法 | | Wooden 2-story (framing method) 木造2階建(軸組工法) |
Overview and notices その他概要・特記事項 | | Facilities: Public Water Supply, This sewage, City gas, Building confirmation number: H25SHC100172, Parking: car space 設備:公営水道、本下水、都市ガス、建築確認番号:H25SHC100172、駐車場:カースペース |
Company profile 会社概要 | | <Mediation> Saitama Governor (1) No. 022390 (Corporation) Makoto real estate Yubinbango340-0114 Saitama Prefecture Satte City East 3-5-1 <仲介>埼玉県知事(1)第022390号(株)マコト不動産〒340-0114 埼玉県幸手市東3-5-1 |