New Homes » Kanto » Saitama » Sayama
 
| | Saitama Prefecture Sayama 埼玉県狭山市 |
| Seibu Shinjuku Line "Sayama" 10 minutes Negishi Ayumi Shindo 6 minutes by bus 西武新宿線「狭山市」バス10分根岸新道歩6分 |
| Bright house facing south road. Your friends is also possible your car two parking lots to call. City gas available. All rooms screen door ・ It is with lighting equipment. 南道路に面した明るい住まいです。お友達もたくさん呼べるお車2台駐車可能です。都市ガスご利用いただけます。全室網戸・照明器具付きです。 |
| Pre-ground survey, Parking two Allowed, Facing south, System kitchen, Bathroom Dryer, Yang per good, Fiscal year Available, All room storage, Siemens south road, A quiet residential area, LDK15 tatami mats or more, Around traffic fewerese-style room, Shaping land, Washbasin with shower, Face-to-face kitchen, Wide balcony, Barrier-free, Toilet 2 places, Bathroom 1 tsubo or more, 2-story, South balcony, Double-glazing, Warm water washing toilet seat, Underfloor Storage, The window in the bathroom, TV monitor interphone, Mu front building, Ventilation good, Water filter, City gas, All rooms are two-sided lighting, Flat terrain, Movable partition 地盤調査済、駐車2台可、南向き、システムキッチン、浴室乾燥機、陽当り良好、年度内入居可、全居室収納、南側道路面す、閑静な住宅地、LDK15畳以上、周辺交通量少なめ、和室、整形地、シャワー付洗面台、対面式キッチン、ワイドバルコニー、バリアフリー、トイレ2ヶ所、浴室1坪以上、2階建、南面バルコニー、複層ガラス、温水洗浄便座、床下収納、浴室に窓、TVモニタ付インターホン、前面棟無、通風良好、浄水器、都市ガス、全室2面採光、平坦地、可動間仕切り |
Local guide map 現地案内図 | | Local guide map 現地案内図 | Features pickup 特徴ピックアップ | | Pre-ground survey / Parking two Allowed / Fiscal year Available / Facing south / System kitchen / Bathroom Dryer / Yang per good / All room storage / Siemens south road / A quiet residential area / LDK15 tatami mats or more / Around traffic fewer / Japanese-style room / Shaping land / Washbasin with shower / Face-to-face kitchen / Wide balcony / Barrier-free / Toilet 2 places / Bathroom 1 tsubo or more / 2-story / South balcony / Double-glazing / Warm water washing toilet seat / Underfloor Storage / The window in the bathroom / TV monitor interphone / Mu front building / Ventilation good / Water filter / City gas / All rooms are two-sided lighting / Flat terrain / Movable partition 地盤調査済 /駐車2台可 /年度内入居可 /南向き /システムキッチン /浴室乾燥機 /陽当り良好 /全居室収納 /南側道路面す /閑静な住宅地 /LDK15畳以上 /周辺交通量少なめ /和室 /整形地 /シャワー付洗面台 /対面式キッチン /ワイドバルコニー /バリアフリー /トイレ2ヶ所 /浴室1坪以上 /2階建 /南面バルコニー /複層ガラス /温水洗浄便座 /床下収納 /浴室に窓 /TVモニタ付インターホン /前面棟無 /通風良好 /浄水器 /都市ガス /全室2面採光 /平坦地 /可動間仕切り | Property name 物件名 | | ● Seller ● life ism Sayama ・ Negishi The final building ●売主●ライフイズム狭山・根岸 最終棟 | Price 価格 | | 24,800,000 yen 2480万円 | Floor plan 間取り | | 4LDK 4LDK | Units sold 販売戸数 | | 1 units 1戸 | Total units 総戸数 | | 1 units 1戸 | Land area 土地面積 | | 118.84 sq m (35.94 tsubo) (Registration) 118.84m2(35.94坪)(登記) | Building area 建物面積 | | 94.06 sq m (28.45 tsubo) (measured) 94.06m2(28.45坪)(実測) | Driveway burden-road 私道負担・道路 | | Nothing, South 4m width 無、南4m幅 | Completion date 完成時期(築年月) | | March 2014 2014年3月 | Address 住所 | | Saitama Prefecture Sayama Negishi 2-25 埼玉県狭山市根岸2-25 | Traffic 交通 | | Seibu Shinjuku Line "Sayama" 10 minutes Negishi Ayumi Shindo 6 minutes by bus Seibu Ikebukuro Line "Iruma" walk 33 minutes Seibu Ikebukuro Line "Inariyamakoen" walk 40 minutes 西武新宿線「狭山市」バス10分根岸新道歩6分 西武池袋線「入間市」歩33分 西武池袋線「稲荷山公園」歩40分
| Related links 関連リンク | | [Related Sites of this company] 【この会社の関連サイト】 | Person in charge 担当者より | | Person in charge of real-estate and building Sano Tsuyoshi Age: 30 Daigyokai experience: on 15 years in this industry will be in 10 years. For our customers, Buying and selling of real estate is also in the life, There is no thing so there many times. Peace of mind such a big event ・ Be able to come safely deal, We will always try to correspond. 担当者宅建佐野 剛年齢:30代業界経験:15年この業界に入って10数年になります。お客様にとって、不動産の売買は人生の中でも、そう何度もある事ではありません。そんな一大イベントを安心・安全に取引き出来るよう、いつも心掛けて対応させて頂きます。 | Contact お問い合せ先 | | TEL: 0800-603-0666 [Toll free] mobile phone ・ Also available from PHS Caller ID is not notified Please contact the "saw SUUMO (Sumo)" If it does not lead, If the real estate company TEL:0800-603-0666【通話料無料】携帯電話・PHSからもご利用いただけます 発信者番号は通知されません 「SUUMO(スーモ)を見た」と問い合わせください つながらない方、不動産会社の方は
| Building coverage, floor area ratio 建ぺい率・容積率 | | Fifty percent ・ 80% 50%・80% | Time residents 入居時期 | | March 2014 schedule 2014年3月予定 | Land of the right form 土地の権利形態 | | Ownership 所有権 | Structure and method of construction 構造・工法 | | Wooden 2-story 木造2階建 | Use district 用途地域 | | One low-rise 1種低層 | Other limitations その他制限事項 | | Regulations have by the Landscape Act 景観法による規制有 | Overview and notices その他概要・特記事項 | | Contact: Sano Tsuyoshi, Facilities: Public Water Supply, This sewage, City gas, Building confirmation number: 13UDI3S Ken 01800, Parking: car space 担当者:佐野 剛、設備:公営水道、本下水、都市ガス、建築確認番号:13UDI3S建01800、駐車場:カースペース | Company profile 会社概要 | | <Seller> Minister of Land, Infrastructure and Transport (3) No. 006,323 (one company) National Housing Industry Association (Corporation) metropolitan area real estate Fair Trade Council member (Ltd.) Seibu development Sayama shop Yubinbango350-1306 Saitama Prefecture Sayama Fujimi 1-15-36 <売主>国土交通大臣(3)第006323号(一社)全国住宅産業協会会員 (公社)首都圏不動産公正取引協議会加盟(株)西武開発狭山店〒350-1306 埼玉県狭山市富士見1-15-36 |
Rendering (appearance)完成予想図(外観)  (B Building) Rendering
(B号棟)完成予想図
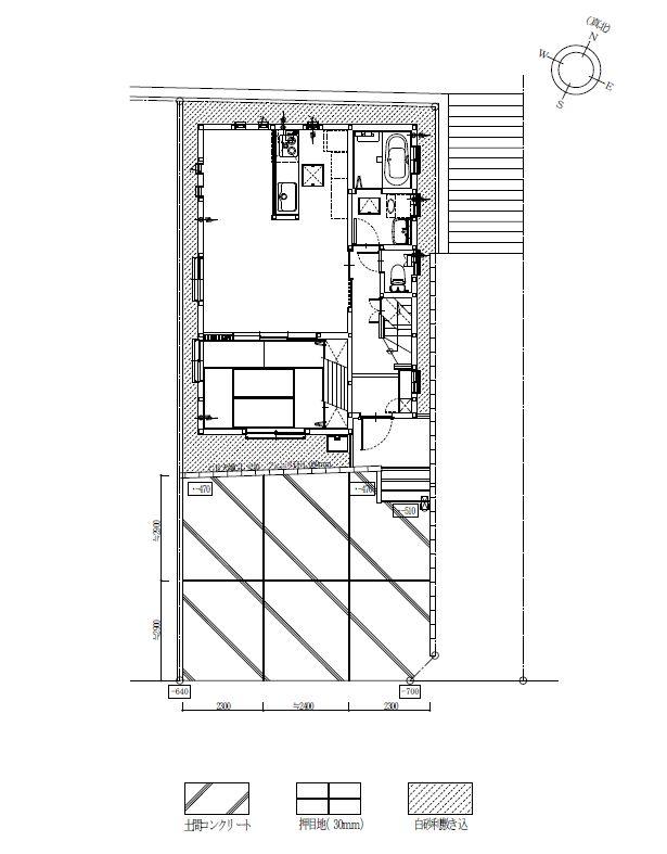
Floor plan間取り図  24,800,000 yen, 4LDK, Land area 118.84 sq m , Building area 94.06 sq m
2480万円、4LDK、土地面積118.84m2、建物面積94.06m2
Rendering (appearance)完成予想図(外観)  (B Building) Rendering
(B号棟)完成予想図
Same specifications photo (bathroom)同仕様写真(浴室)  Same specifications
同仕様
Local photos, including front road前面道路含む現地写真  Local (12 May 2013) Shooting
現地(2013年12月)撮影
Otherその他  Outside construction plan view
外工事予定図
Local photos, including front road前面道路含む現地写真  Local (10 May 2013) Shooting
現地(2013年10月)撮影
Primary school小学校  Water-rich to elementary school 10m
水富小学校まで10m
Local appearance photo現地外観写真  Local (12 May 2013) Shooting
現地(2013年12月)撮影
 Local guide map
現地案内図
Same specifications photos (living)同仕様写真(リビング)  Same specifications
同仕様
Same specifications photo (kitchen)同仕様写真(キッチン)  Same specifications
同仕様
Kindergarten ・ Nursery幼稚園・保育園  50m to municipal water wealth kindergarten
市立水富幼稚園まで50m
Other Environmental Photoその他環境写真  Water-rich to the clinic 310m
水富診療所まで310m
Kindergarten ・ Nursery幼稚園・保育園  440m until the only and the forest nursery
けやの森保育園まで440m
 Municipal Sasai to nursery 610m
市立笹井保育所まで610m
Shopping centreショッピングセンター  Yaoko Co., Ltd. Pashiosu up to 1700m
ヤオコーパシオスまで1700m
Hospital病院  2000m to Maeda hospital
前田病院まで2000m
Drug storeドラッグストア  Until Baigo 880m
バイゴーまで880m
Junior high school中学校  2100m to the West Junior High School
西中学校まで2100m
Location
|