New Homes » Kanto » Saitama » Shiki


Saitama Prefecture Shiki
Tobu Tojo Line "Yanasegawa" walk 3 minutes
Large three-story Dishwasher ・ Wash basin, etc. fully equipped with Eco-handle Roof balcony
Large three-story Dishwasher ・ Wash basin, etc. fully equipped with Eco-handle Roof balcony
Features pickup
LDK18 tatami mats or more / System kitchen / All room storage / Face-to-face kitchen / 3 face lighting / South balcony / Dish washing dryer / Three-story or more / roof balcony
Price
33,800,000 yen
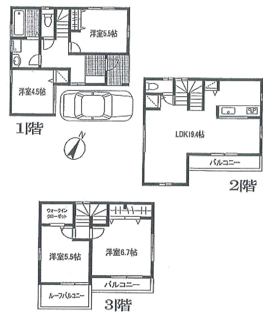
Floor plan
4LDK
Units sold
1 units
Land area
65.38 sq m
Building area
99.63 sq m
Driveway burden-road
Nothing, South 4.5m width
Completion date
September 2013
Address
Saitama Prefecture Shiki Kashiwamachi 6
Traffic
Tobu Tojo Line "Yanasegawa" walk 3 minutes
Tobu Tojo Line "Shiki" walk 19 minutes
Tobu Tojo Line "Mizuhodai" walk 25 minutes
Related links
[Related Sites of this company]
Person in charge
Rep Odo Masahiro Age: 30 Daigyokai experience: born and raised in nine years Asaka, Currently I live in Shiki. Real estate buying and selling of peripheral Shiki Please leave.
Contact
TEL: 048-472-1011 Please inquire as "saw SUUMO (Sumo)"
Building coverage, floor area ratio
60% ・ 200%
Time residents
Consultation
Land of the right form
Ownership
Structure and method of construction
Wooden three-story
Use district
One middle and high
Overview and notices
Contact: Odo Masahiro, Facilities: Public Water Supply, This sewage, City gas
Company profile
<Mediation> Minister of Land, Infrastructure and Transport (11) No. 002135 (one company) National Housing Industry Association (Corporation) metropolitan area real estate Fair Trade Council member Asahi Living Co., Ltd. Shiki office Yubinbango352-0001 Saitama Prefecture Niiza northeast 2-29-26 Shoei building first floor


Floor plan

Floor plan. 33,800,000 yen, 4LDK, Land area 65.38 sq m , Building area 99.63 sq m
33,800,000 yen, 4LDK, Land area 65.38 sq m , Building area 99.63 sq m

Local appearance photo
Local appearance photo

View photos from the dwelling unit
View photos from the dwelling unit

Living
Living

Bathroom
Bathroom

Kitchen
Kitchen

Wash basin, toilet

Wash basin, toilet. Bathroom vanity
Bathroom vanity

Local photos, including front road

Local photos, including front road. Frontal road
Frontal road

Parking lot

Parking lot. Local garage
Local garage

Receipt

Receipt. Walk-in closet
Walk-in closet

Receipt. Walk-in closet
Walk-in closet

Toilet

Toilet. First floor toilet
First floor toilet

Other introspection

Other introspection. Western style room
Western style room



Location