New Homes » Kanto » Saitama » Shiki
 
| | Saitama Prefecture Shiki 埼玉県志木市 |
| Tobu Tojo Line "Shiki" walk 6 minutes 東武東上線「志木」歩6分 |
| Per prime location of 6-minute walk from the Shiki Station, Commute ・ It is very convenient to go to school. Living environment is good. It is with a popular counter kitchen. Masu car space throne. Please feel free to contact us. 志木駅まで徒歩6分の好立地につき、通勤・通学に大変便利です。生活環境良好です。人気のカウンターキッチン付です。カースペースござます。お気軽にお問合せ下さい。 |
| Solar power system, Immediate Available, Super close, It is close to the city, Bathroom Dryer, Yang per good, All room storageese-style room, Washbasin with shower, Face-to-face kitchen, Toilet 2 places, 2-story, South balcony, Warm water washing toilet seat, Underfloor Storage, The window in the bathroom, TV monitor interphone, Ventilation good, Living stairs 太陽光発電システム、即入居可、スーパーが近い、市街地が近い、浴室乾燥機、陽当り良好、全居室収納、和室、シャワー付洗面台、対面式キッチン、トイレ2ヶ所、2階建、南面バルコニー、温水洗浄便座、床下収納、浴室に窓、TVモニタ付インターホン、通風良好、リビング階段 |
Features pickup 特徴ピックアップ | | Solar power system / Immediate Available / Super close / It is close to the city / Bathroom Dryer / Yang per good / All room storage / Japanese-style room / Washbasin with shower / Face-to-face kitchen / Toilet 2 places / 2-story / South balcony / Warm water washing toilet seat / Underfloor Storage / The window in the bathroom / TV monitor interphone / Ventilation good / Living stairs 太陽光発電システム /即入居可 /スーパーが近い /市街地が近い /浴室乾燥機 /陽当り良好 /全居室収納 /和室 /シャワー付洗面台 /対面式キッチン /トイレ2ヶ所 /2階建 /南面バルコニー /温水洗浄便座 /床下収納 /浴室に窓 /TVモニタ付インターホン /通風良好 /リビング階段 | Price 価格 | | 39,800,000 yen 3980万円 | Floor plan 間取り | | 4LDK 4LDK | Units sold 販売戸数 | | 1 units 1戸 | Land area 土地面積 | | 91.68 sq m (27.73 square meters) 91.68m2(27.73坪) | Building area 建物面積 | | 93.14 sq m (28.17 square meters) 93.14m2(28.17坪) | Driveway burden-road 私道負担・道路 | | Nothing, East 4.2m width (contact the road width 4.2m) 無、東4.2m幅(接道幅4.2m) | Completion date 完成時期(築年月) | | November 2013 2013年11月 | Address 住所 | | Saitama Prefecture Shiki Saiwaicho 1 埼玉県志木市幸町1 | Traffic 交通 | | Tobu Tojo Line "Shiki" walk 6 minutes 東武東上線「志木」歩6分
| Related links 関連リンク | | [Related Sites of this company] 【この会社の関連サイト】 | Person in charge 担当者より | | Person in charge of real-estate and building Uemura Takashi Age: 30 Daigyokai experience: This is Uemura was now to be entrusted with the 10-year Taisei housing Kawagoe housing gallery manager. To be able to introduce a customer satisfaction Property, Always we will continue to work hard at 120% of the force. Thank you. 担当者宅建上村 貴志年齢:30代業界経験:10年大成住宅川越ハウジングギャラリーの店長を任されることになりました上村です。お客様のご満足いただける物件をご紹介できるように、常に120%の力で頑張ってまいります。宜しくお願い致します。 | Contact お問い合せ先 | | TEL: 0800-805-5903 [Toll free] mobile phone ・ Also available from PHS Caller ID is not notified Please contact the "saw SUUMO (Sumo)" If it does not lead, If the real estate company TEL:0800-805-5903【通話料無料】携帯電話・PHSからもご利用いただけます 発信者番号は通知されません 「SUUMO(スーモ)を見た」と問い合わせください つながらない方、不動産会社の方は
| Building coverage, floor area ratio 建ぺい率・容積率 | | 60% ・ 200% 60%・200% | Time residents 入居時期 | | Immediate available 即入居可 | Land of the right form 土地の権利形態 | | Ownership 所有権 | Structure and method of construction 構造・工法 | | Wooden 2-story 木造2階建 | Use district 用途地域 | | One dwelling 1種住居 | Overview and notices その他概要・特記事項 | | Contact: Uemura Takashi, Facilities: Public Water Supply, This sewage, Parking: car space 担当者:上村 貴志、設備:公営水道、本下水、駐車場:カースペース | Company profile 会社概要 | | <Mediation> Saitama Governor (4) No. 017756 No. Ltd. Taisei housing Kawagoe housing gallery Yubinbango350-1117 Kawagoe City Prefecture Koei-cho 10-6 <仲介>埼玉県知事(4)第017756号(株)大成住宅川越ハウジングギャラリー〒350-1117 埼玉県川越市広栄町10-6 |
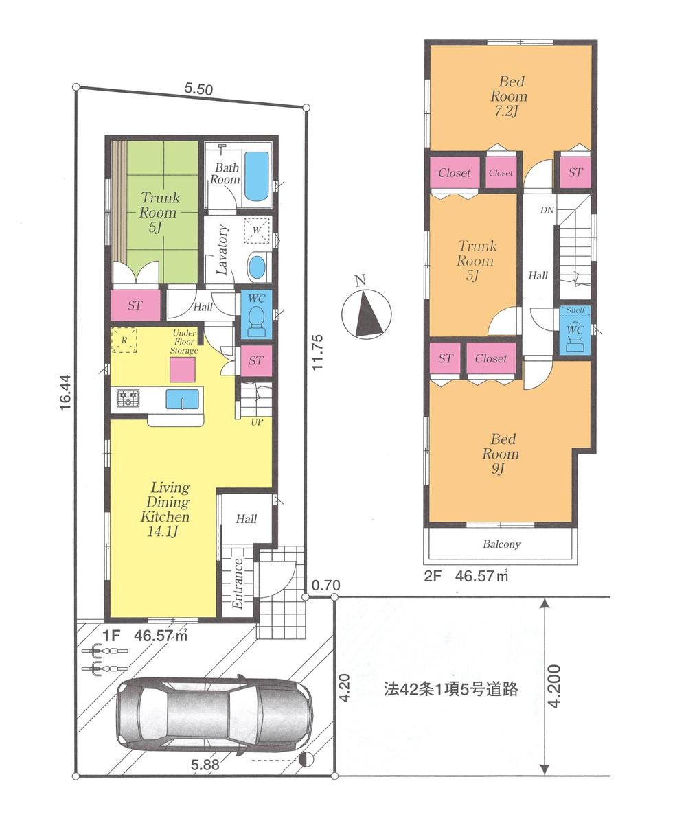
Floor plan間取り図  39,800,000 yen, 4LDK, Land area 91.68 sq m , Building area 93.14 sq m floor plan
3980万円、4LDK、土地面積91.68m2、建物面積93.14m2 間取り図
Local appearance photo現地外観写真  Reference: construction cases
参考:施工例
Local photos, including front road前面道路含む現地写真  Reference: construction cases
参考:施工例
Livingリビング  Reference: construction cases
参考:施工例
Bathroom浴室  Reference: construction cases
参考:施工例
Kitchenキッチン  Reference: construction cases
参考:施工例
Station駅  Shiki Station
志木駅
Location
|