New Homes » Kanto » Saitama » Shiraoka
 
| | Saitama Prefecture shiraoka 埼玉県白岡市 |
| JR Utsunomiya Line "Shinshiraoka" walk 12 minutes JR宇都宮線「新白岡」歩12分 |
| ◆ All Building car space two possible ~ ◆ All building popular face-to-face kitchen 16 Pledge! ◆ There is also room on site 47 or more square meters of Nantei! ◆全号棟カースペース2台可能 ~ ◆全棟人気の対面キッチン16帖!◆南庭もありゆとりの敷地47坪以上! |
| Pre-ground survey, Parking two Allowed, Immediate Available, System kitchen, All room storage, LDK15 tatami mats or more, Or more before road 6mese-style room, Washbasin with shower, Face-to-face kitchen, Barrier-free, Toilet 2 places, Bathroom 1 tsubo or more, 2-story, Double-glazing, Warm water washing toilet seat, TV monitor interphone, Water filter, City gas 地盤調査済、駐車2台可、即入居可、システムキッチン、全居室収納、LDK15畳以上、前道6m以上、和室、シャワー付洗面台、対面式キッチン、バリアフリー、トイレ2ヶ所、浴室1坪以上、2階建、複層ガラス、温水洗浄便座、TVモニタ付インターホン、浄水器、都市ガス |
Features pickup 特徴ピックアップ | | Pre-ground survey / Parking two Allowed / Immediate Available / System kitchen / All room storage / LDK15 tatami mats or more / Or more before road 6m / Japanese-style room / Washbasin with shower / Face-to-face kitchen / Barrier-free / Toilet 2 places / Bathroom 1 tsubo or more / 2-story / Double-glazing / Warm water washing toilet seat / TV monitor interphone / Water filter / City gas 地盤調査済 /駐車2台可 /即入居可 /システムキッチン /全居室収納 /LDK15畳以上 /前道6m以上 /和室 /シャワー付洗面台 /対面式キッチン /バリアフリー /トイレ2ヶ所 /浴室1坪以上 /2階建 /複層ガラス /温水洗浄便座 /TVモニタ付インターホン /浄水器 /都市ガス | Price 価格 | | 22,900,000 yen 2290万円 | Floor plan 間取り | | 4LDK 4LDK | Units sold 販売戸数 | | 3 units 3戸 | Total units 総戸数 | | 4 units 4戸 | Land area 土地面積 | | 156.61 sq m ~ 204.94 sq m (47.37 tsubo ~ 61.99 tsubo) (Registration) 156.61m2 ~ 204.94m2(47.37坪 ~ 61.99坪)(登記) | Building area 建物面積 | | 105.16 sq m ~ 105.98 sq m (31.81 tsubo ~ 32.05 tsubo) (measured) 105.16m2 ~ 105.98m2(31.81坪 ~ 32.05坪)(実測) | Driveway burden-road 私道負担・道路 | | Road width: 8.44 ~ 8.5m, Road by Readjustment 2.62m ~ 2.72m Asphaltic pavement 道路幅:8.44 ~ 8.5m、区画整理による道路2.62m ~ 2.72m アスファルト舗装 | Completion date 完成時期(築年月) | | October 2013 2013年10月 | Address 住所 | | Saitama Prefecture shiraoka bison 埼玉県白岡市野牛 | Traffic 交通 | | JR Utsunomiya Line "Shinshiraoka" walk 12 minutes JR Utsunomiya Line "Shiraoka" walk 25 minutes JR宇都宮線「新白岡」歩12分 JR宇都宮線「白岡」歩25分
| Related links 関連リンク | | [Related Sites of this company] 【この会社の関連サイト】 | Person in charge 担当者より | | Person in charge of real-estate and building FP [House Media Saitama] Yazawa Shinkokorozashi industry experience: I have six years each and every customer encounter to cherish. Your anxiety ・ Although I think whether there is also a worry part, Looking house with a smile I try the service, such as it is. When you are looking for abode, Please feel free to come. 担当者宅建FP【ハウスメディアさいたま】矢沢 信志業界経験:6年お客様一人ひとりの出会いを大切にしています。ご不安・心配な部分もあるかと思いますが、笑顔でお住まい探しができるような接客を心掛けています。お住まい探しの際は、お気軽にお越し下さいませ。 | Contact お問い合せ先 | | TEL: 0120-854371 [Toll free] Please contact the "saw SUUMO (Sumo)" TEL:0120-854371【通話料無料】「SUUMO(スーモ)を見た」と問い合わせください | Building coverage, floor area ratio 建ぺい率・容積率 | | Kenpei rate: 60%, Volume ratio: 200% 建ペい率:60%、容積率:200% | Time residents 入居時期 | | Immediate available 即入居可 | Land of the right form 土地の権利形態 | | Ownership 所有権 | Structure and method of construction 構造・工法 | | Wooden 2-story 木造2階建 | Use district 用途地域 | | One dwelling 1種住居 | Other limitations その他制限事項 | | Regulations have by the Landscape Act, Agricultural Land Act notification requirements, buffalo ・ Takaiwa land readjustment project site There reimbursement system 景観法による規制有、農地法届出要、野牛・高岩土地区画整理事業地 精算金制度あり | Overview and notices その他概要・特記事項 | | Contact Person [House Media Saitama] Yazawa Shinkokorozashi 担当者:【ハウスメディアさいたま】矢沢 信志 | Company profile 会社概要 | | <Mediation> Saitama Governor (5) No. 016625 (Corporation) All Japan Real Estate Association (Corporation) metropolitan area real estate Fair Trade Council member THR housing distribution Group Co., Ltd. House media Saitama Division 1 Yubinbango330-0843 Saitama Omiya-ku, Yoshiki-cho 4-261-1 Capital Building 5th floor <仲介>埼玉県知事(5)第016625号(公社)全日本不動産協会会員 (公社)首都圏不動産公正取引協議会加盟THR住宅流通グループ(株)ハウスメディアさいたま1課〒330-0843 埼玉県さいたま市大宮区吉敷町4-261-1 キャピタルビル5階 |
Local appearance photo現地外観写真  ■ 1 Building _2290 ten thousand!
■1号棟_2290万!
 ■ 1 Building _2290 ten thousand! ■ Building 2 _2290 ten thousand!
■1号棟_2290万!■2号棟_2290万!
Parking lot駐車場  ■ 1 Building _2290 ten thousand! ■ Building 2 _2290 ten thousand!
■1号棟_2290万!■2号棟_2290万!
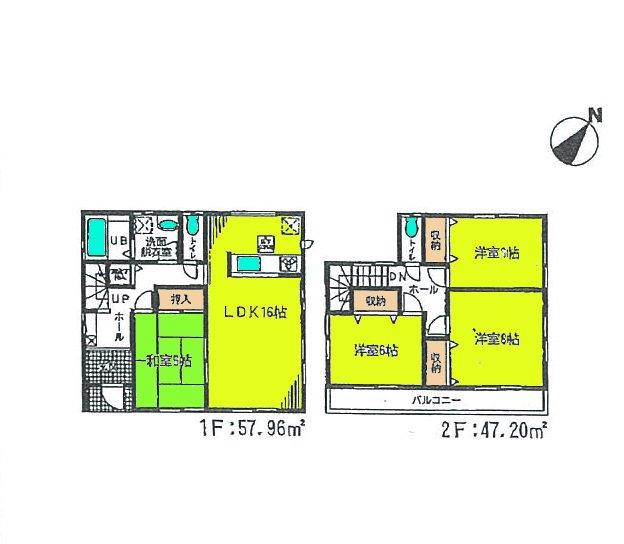
Floor plan間取り図  ((1)), Price 22,900,000 yen, 4LDK, Land area 156.63 sq m , Building area 105.98 sq m
((1))、価格2290万円、4LDK、土地面積156.63m2、建物面積105.98m2
Local appearance photo現地外観写真  ■ Building 3 _2290 ten thousand! ■
■3号棟_2290万!■
Station駅  ◆ 960m until JR shin-shiraoka station ◆ _ 12 mins!
◆JR新白岡駅まで960m ◆_徒歩12分!
Floor plan間取り図  ((2)), Price 22,900,000 yen, 4LDK, Land area 156.61 sq m , Building area 105.98 sq m
((2))、価格2290万円、4LDK、土地面積156.61m2、建物面積105.98m2
Local appearance photo現地外観写真  ■ Building 3 _2290 ten thousand! ■
■3号棟_2290万!■
Floor plan間取り図  ((3)), Price 22,900,000 yen, 4LDK, Land area 204.94 sq m , Building area 105.16 sq m
((3))、価格2290万円、4LDK、土地面積204.94m2、建物面積105.16m2
Location
|