New Homes » Kanto » Saitama » Soka


Soka
Isesaki Tobu "Yatsuka" walk 10 minutes
If you are looking for large land! Soka ・ Yatsuka station within walking distance. The basis unit price is about 300,000 yen! There is also within a 10-minute walk elementary school and supermarkets, It is 78 square meters land of useful area. Once please take a look at the environment.
■ You can architecture in your favorite plan ■ The south promenade and field, West, It is also a good per yang for parking! ■ You can enjoy gardening and barbecue, etc. in a wide land ■ You can architecture at the combined plan to your family
Features pickup
Super close / Yang per good / City gas
Price
23.6 million yen
Building coverage, floor area ratio
60% ・ 160%
Sales compartment
1 compartment
Total number of compartments
1 compartment
Land area
260.8 sq m (78.89 tsubo) (Registration)
Driveway burden-road
78.31 sq m , East 3.2m width (contact the road width 6.4m)
Land situation
Vacant lot
Address
Soka Yoshimachi 5
Traffic
Isesaki Tobu "Yatsuka" walk 10 minutes
Isesaki Tobu "Soka" walk 12 minutes
Isesaki Tobu "Matsubaradanchi" walk 35 minutes
Related links
[Related Sites of this company]
Person in charge
[Regarding this property.] Tobu Sky Tree Line "Soka Station" is 78 square meters wide land of convenient 2 stops use of "yatsuka station"! There are a lot of great shopping facilities at the station!
Contact
TEL: 0800-603-0619 [Toll free] mobile phone ・ Also available from PHS
Caller ID is not notified
Please contact the "saw SUUMO (Sumo)"
If it does not lead, If the real estate company
Land of the right form
Ownership
Building condition
With
Time delivery
Consultation
Land category
Residential land
Use district
One dwelling
Other limitations
Regulations have by the Landscape Act
Overview and notices
Facilities: Public Water Supply, This sewage, City gas
Company profile
<Seller> Saitama Governor (13) No. 003021 (Corporation) Prefecture Building Lots and Buildings Transaction Business Association (Corporation) metropolitan area real estate Fair Trade Council member (Ltd.) Koyama construction headquarters sales department Yubinbango340-0053 Soka Asahimachi 3-5-3 Koyama building


Compartment figure

Compartment figure. Land price 23.6 million yen, Land area 260.8 sq m land topographic map
Land price 23.6 million yen, Land area 260.8 sq m land topographic map

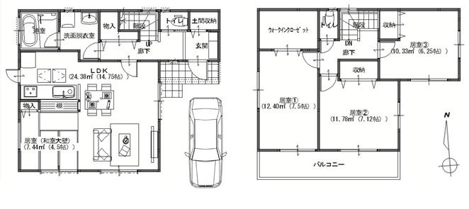
Building plan example (floor plan)

Building plan example (floor plan). Building plan example
Building plan example

Building plan example (exterior photos)

Building plan example (exterior photos). Example of construction (appearance)
Example of construction (appearance)

Building plan example (introspection photo)

Building plan example (introspection photo). Large living example of construction of with skylight
Large living example of construction of with skylight

Station

station. Soka Station East exit to 960m Soka Station 12 mins
Soka Station East exit to 960m Soka Station 12 mins

Building plan example (introspection photo)

Building plan example (introspection photo). Bathroom construction cases
Bathroom construction cases

Station

station. Yatsuka station 800m to the east exit
Yatsuka station 800m to the east exit

Building plan example (introspection photo)

Building plan example (introspection photo). Living example of construction
Living example of construction



Location