|
|
Soka
埼玉県草加市
|
|
Isesaki Tobu "Matsubaradanchi" walk 18 minutes
東武伊勢崎線「松原団地」歩18分
|
|
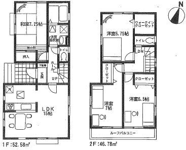
Walk up to elementary school 4 minutes! Parenting mom's is also safe. Walk-in closet and popular counter kitchen is also attractive terms.
小学校まで徒歩4分!子育てママさんも安心です。ウォークインクローゼットや人気のカウンターキッチンも魅力的な条件です。
|
|
■ Counter kitchen to 15 quires living ■ Japanese-style room 7 quires more! How to use such as the drawing room or bedroom is different. ■ Walk-in closet that can store plenty ■ Drugstore 46M! Shopping is convenient. ■ Good per sun on the south side wide balcony ■ □ We will guide the construction cases! Request alone please feel free to. Please feel free to contact us to Soka citizen housing. 0120-830-021 □ ■
■リビング15帖にカウンターキッチン■和室7帖以上!客間や寝室など使い方は様々です。■たっぷり収納ができるウォークインクローゼット■ドラッグストア46M!お買い物便利です。■南側ワイドバルコニーで陽当たり良好■□施工例のご案内致します!資料請求だけでもお気軽にどうぞ。草加市民ハウジングまでお気軽にお問い合わせ下さい。0120-830-021□■
|
Features pickup 特徴ピックアップ | | Super close / System kitchen / Yang per good / A quiet residential area / Japanese-style room / Washbasin with shower / Wide balcony / Toilet 2 places / Bathroom 1 tsubo or more / 2-story / Otobasu / Warm water washing toilet seat / Underfloor Storage / The window in the bathroom / TV monitor interphone / High-function toilet / Ventilation good / Walk-in closet / City gas / All rooms are two-sided lighting スーパーが近い /システムキッチン /陽当り良好 /閑静な住宅地 /和室 /シャワー付洗面台 /ワイドバルコニー /トイレ2ヶ所 /浴室1坪以上 /2階建 /オートバス /温水洗浄便座 /床下収納 /浴室に窓 /TVモニタ付インターホン /高機能トイレ /通風良好 /ウォークインクロゼット /都市ガス /全室2面採光 |
Price 価格 | | 27.3 million yen 2730万円 |
Floor plan 間取り | | 4LDK 4LDK |
Units sold 販売戸数 | | 1 units 1戸 |
Land area 土地面積 | | 102.89 sq m (31.12 square meters) 102.89m2(31.12坪) |
Building area 建物面積 | | 99.36 sq m (30.05 square meters) 99.36m2(30.05坪) |
Driveway burden-road 私道負担・道路 | | Nothing, West 4m width 無、西4m幅 |
Completion date 完成時期(築年月) | | March 2014 2014年3月 |
Address 住所 | | Soka Chatan 1 埼玉県草加市北谷1 |
Traffic 交通 | | Isesaki Tobu "Matsubaradanchi" walk 18 minutes 東武伊勢崎線「松原団地」歩18分
|
Related links 関連リンク | | [Related Sites of this company] 【この会社の関連サイト】 |
Person in charge 担当者より | | Person in charge of deep Nobuyuki Age: 20 Daigyokai Experience: help to find the No. 1 you live for eight years our customers have thought that if you can. It is thought and my role to eliminate your anxiety and worries at that time, Please let me strive hard. 担当者深井 信之年齢:20代業界経験:8年お客様にとっての1番のお住まいを見つけるためのお手伝いが出来ればと思っています。その際のお客様の不安や悩みを解消する事が私の役目と考え、一生懸命努めさせて頂きます。 |
Contact お問い合せ先 | | TEL: 0800-603-1115 [Toll free] mobile phone ・ Also available from PHS Caller ID is not notified Please contact the "saw SUUMO (Sumo)" If it does not lead, If the real estate company TEL:0800-603-1115【通話料無料】携帯電話・PHSからもご利用いただけます 発信者番号は通知されません 「SUUMO(スーモ)を見た」と問い合わせください つながらない方、不動産会社の方は
|
Building coverage, floor area ratio 建ぺい率・容積率 | | 60% ・ 200% 60%・200% |
Time residents 入居時期 | | Consultation 相談 |
Land of the right form 土地の権利形態 | | Ownership 所有権 |
Structure and method of construction 構造・工法 | | Wooden 2-story 木造2階建 |
Use district 用途地域 | | Two mid-high 2種中高 |
Overview and notices その他概要・特記事項 | | Contact: deep Nobuyuki, Facilities: This sewage, City gas, Building confirmation number:., Parking: car space 担当者:深井 信之、設備:本下水、都市ガス、建築確認番号:.、駐車場:カースペース |
Company profile 会社概要 | | <Mediation> Saitama Governor (7) No. 013993 Century 21 (Ltd.) Soka citizen housing Yubinbango340-0016 Soka center 2-15-8 <仲介>埼玉県知事(7)第013993号センチュリー21(株)草加市民ハウジング〒340-0016 埼玉県草加市中央2-15-8 |