|
|
Soka
埼玉県草加市
|
|
Isesaki Tobu "Nitta" walk 10 minutes
東武伊勢崎線「新田」歩10分
|
|
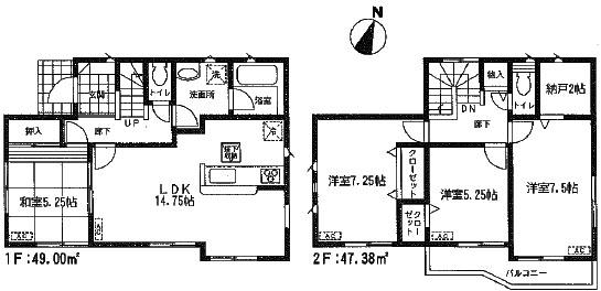
Station near Property, Nitta Station a 10-minute walk, There is all the living room storage, Face-to-face kitchen, All room pair glass, South-facing good per yang
駅近物件、新田駅徒歩10分、全居室収納あり、対面キッチン、全居室ペアガラス、南向き陽当たり良好
|
|
Nitta Elementary School 8 minutes walk ・ Nitta junior high walk 19 minutes, Intercom with TV monitor, Underfloor Storage, Shampoo dresser, unit bus, Bathroom ventilation dryer
新田小学校徒歩8分・新田中学校徒歩19分、TVモニター付インターホン、床下収納、シャンプードレッサー、ユニットバス、浴室換気乾燥機
|
Features pickup 特徴ピックアップ | | Year Available / Immediate Available / System kitchen / Bathroom Dryer / Face-to-face kitchen / 2-story / Warm water washing toilet seat / Underfloor Storage / TV monitor interphone / High-function toilet / Storeroom 年内入居可 /即入居可 /システムキッチン /浴室乾燥機 /対面式キッチン /2階建 /温水洗浄便座 /床下収納 /TVモニタ付インターホン /高機能トイレ /納戸 |
Price 価格 | | 27,800,000 yen 2780万円 |
Floor plan 間取り | | 4LDK + S (storeroom) 4LDK+S(納戸) |
Units sold 販売戸数 | | 1 units 1戸 |
Land area 土地面積 | | 129.58 sq m (39.19 square meters) 129.58m2(39.19坪) |
Building area 建物面積 | | 96.38 sq m (29.15 square meters) 96.38m2(29.15坪) |
Driveway burden-road 私道負担・道路 | | Nothing, West 4.5m width 無、西4.5m幅 |
Completion date 完成時期(築年月) | | October 2013 2013年10月 |
Address 住所 | | Soka Asahimachi 5 埼玉県草加市旭町5 |
Traffic 交通 | | Isesaki Tobu "Nitta" walk 10 minutes Isesaki Tobu "Matsubaradanchi" walk 17 minutes Isesaki Tobu "Soka" walk 37 minutes 東武伊勢崎線「新田」歩10分 東武伊勢崎線「松原団地」歩17分 東武伊勢崎線「草加」歩37分
|
Person in charge 担当者より | | Person in charge of real-estate and building Hasegawa The main Age: 40 Daigyokai experience: to build a trust relationship with the 15-year customer, My best and my best so that the person who buy with confidence. I do not know that and anxiety thing, Please contact us so anything a fine. 担当者宅建長谷川 要年齢:40代業界経験:15年お客様と信頼関係を築き、安心してご購入頂けるよう精一杯頑張ります。分からない事や不安な事、何でも結構なのでご相談下さい。 |
Contact お問い合せ先 | | TEL: 0800-603-6306 [Toll free] mobile phone ・ Also available from PHS Caller ID is not notified Please contact the "saw SUUMO (Sumo)" If it does not lead, If the real estate company TEL:0800-603-6306【通話料無料】携帯電話・PHSからもご利用いただけます 発信者番号は通知されません 「SUUMO(スーモ)を見た」と問い合わせください つながらない方、不動産会社の方は
|
Building coverage, floor area ratio 建ぺい率・容積率 | | 60% ・ 178 percent 60%・178% |
Time residents 入居時期 | | Immediate available 即入居可 |
Land of the right form 土地の権利形態 | | Ownership 所有権 |
Structure and method of construction 構造・工法 | | Wooden 2-story 木造2階建 |
Use district 用途地域 | | Two dwellings 2種住居 |
Overview and notices その他概要・特記事項 | | Contact: Hasegawa The main, Facilities: This sewage, Individual LPG, Building confirmation number:., Parking: car space 担当者:長谷川 要、設備:本下水、個別LPG、建築確認番号:.、駐車場:カースペース |
Company profile 会社概要 | | <Mediation> Governor of Tokyo (1) the first 089,301 No. Century 21 (Ltd.) dwelling & amp; Smile Yubinbango121-0823 Adachi-ku, Tokyo diplomatic 1-24-25 <仲介>東京都知事(1)第089301号センチュリー21(株)住まい&スマイル〒121-0823 東京都足立区伊興1-24-25 |