New Homes » Kanto » Saitama » Toda
 
| | Toda City Prefecture 埼玉県戸田市 |
| JR Saikyo Line "Toda" walk 8 minutes JR埼京線「戸田」歩8分 |
| It is conveniently located an 8-minute walk station. Also relaxed 6m road in the readjustment land. Parking It is also easier. In land area all building 35 square meters or more, The garden is a Century 21 also have peace of mind and trust on the south side. We can guide you today 駅徒歩8分の好立地です。区画整理地内で道路もゆったり6m。駐車も楽ですね。敷地面積全棟35坪以上で、南側にお庭もあり安心と信頼のセンチュリー21です。本日ご案内出来ます |
| ■ Good location of Toda Station 8-minute walk ■ In the proximity of this station, This quiet! ■ Land is the size of even 35 square meters and the room ■ bike ・ Spacious space put bicycle ■ I am happy the garden located on the south side ■戸田駅徒歩8分の好立地■この駅の近さで、この静かさ!■土地も35坪とゆとりの広さです■バイク・自転車も置けるゆったりスペース■南側にあるお庭も嬉しいですね |
Features pickup 特徴ピックアップ | | Pre-ground survey / Immediate Available / 2 along the line more accessible / Super close / It is close to the city / Facing south / System kitchen / Yang per good / Flat to the station / A quiet residential area / LDK15 tatami mats or more / Around traffic fewer / Or more before road 6m / Japanese-style room / Shaping land / garden / Washbasin with shower / Face-to-face kitchen / Wide balcony / Barrier-free / Toilet 2 places / Bathroom 1 tsubo or more / 2-story / South balcony / Double-glazing / Otobasu / Warm water washing toilet seat / Nantei / Underfloor Storage / The window in the bathroom / TV monitor interphone / Urban neighborhood / Ventilation good / Water filter / City gas / A large gap between the neighboring house / Maintained sidewalk / Flat terrain / Readjustment land within 地盤調査済 /即入居可 /2沿線以上利用可 /スーパーが近い /市街地が近い /南向き /システムキッチン /陽当り良好 /駅まで平坦 /閑静な住宅地 /LDK15畳以上 /周辺交通量少なめ /前道6m以上 /和室 /整形地 /庭 /シャワー付洗面台 /対面式キッチン /ワイドバルコニー /バリアフリー /トイレ2ヶ所 /浴室1坪以上 /2階建 /南面バルコニー /複層ガラス /オートバス /温水洗浄便座 /南庭 /床下収納 /浴室に窓 /TVモニタ付インターホン /都市近郊 /通風良好 /浄水器 /都市ガス /隣家との間隔が大きい /整備された歩道 /平坦地 /区画整理地内 | Price 価格 | | 41,800,000 yen 4180万円 | Floor plan 間取り | | 4LDK 4LDK | Units sold 販売戸数 | | 1 units 1戸 | Land area 土地面積 | | 116.84 sq m (registration) 116.84m2(登記) | Building area 建物面積 | | 99.78 sq m 99.78m2 | Driveway burden-road 私道負担・道路 | | Nothing, North 6m width 無、北6m幅 | Completion date 完成時期(築年月) | | July 2013 2013年7月 | Address 住所 | | Toda City Prefecture Kamitoda 4 埼玉県戸田市上戸田4 | Traffic 交通 | | JR Saikyo Line "Toda" walk 8 minutes JR Keihin Tohoku Line "bracken" bus 9 minutes Toda City Hall entrance walk 5 minutes JR Saikyo Line "Todakoen" bus 7 minutes city hall walk 3 minutes JR埼京線「戸田」歩8分 JR京浜東北線「蕨」バス9分戸田市役所入口歩5分 JR埼京線「戸田公園」バス7分市役所歩3分
| Related links 関連リンク | | [Related Sites of this company] 【この会社の関連サイト】 | Person in charge 担当者より | | Rep Ikeda Takuya Age: 30 Daigyokai experience: 2 years Urawa born 3 pups of Papa. Large fitted into began with his son karate. We work hard as a quasi-coach Yara when did! Convinced of your house hunting, of course, Child care consultation from his dad is also being accepted (laughs) 担当者池田 拓矢年齢:30代業界経験:2年浦和出身の3児のパパです。息子と一緒に始めた空手に大ハマリ。いつの間にやら準指導員として頑張っております!納得のお家探しはもちろん、パパさんからの育児相談も受付中です(笑) | Contact お問い合せ先 | | TEL: 0800-602-5513 [Toll free] mobile phone ・ Also available from PHS Caller ID is not notified Please contact the "saw SUUMO (Sumo)" If it does not lead, If the real estate company TEL:0800-602-5513【通話料無料】携帯電話・PHSからもご利用いただけます 発信者番号は通知されません 「SUUMO(スーモ)を見た」と問い合わせください つながらない方、不動産会社の方は
| Building coverage, floor area ratio 建ぺい率・容積率 | | 60% ・ 200% 60%・200% | Time residents 入居時期 | | Immediate available 即入居可 | Land of the right form 土地の権利形態 | | Ownership 所有権 | Structure and method of construction 構造・工法 | | Wooden 2-story 木造2階建 | Use district 用途地域 | | One dwelling 1種住居 | Overview and notices その他概要・特記事項 | | Contact: Ikeda Takuya, Facilities: Public Water Supply, This sewage, City gas 担当者:池田 拓矢、設備:公営水道、本下水、都市ガス | Company profile 会社概要 | | <Mediation> Saitama Governor (1) No. 021966 Century 21 (Ltd.) Home agent Yubinbango336-0918 Saitama Midori Ward Matsuki 3-26-29 Home Agent Bill <仲介>埼玉県知事(1)第021966号センチュリー21(株)ホームエージェント〒336-0918 埼玉県さいたま市緑区松木3-26-29 ホームエージェントビル |
Local appearance photo現地外観写真  Day is a good home
日当り良好なお家です
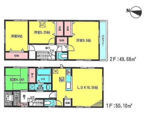
Floor plan間取り図  41,800,000 yen, 4LDK, Land area 116.84 sq m , It is a wide 9 Pledge of building area 99.78 sq m Master Bedroom
4180万円、4LDK、土地面積116.84m2、建物面積99.78m2 主寝室の9帖が広いですね
Kitchenキッチン  Popular face-to-face open kitchen
人気の対面オープンキッチン
Livingリビング  Open face-to-face kitchen adopted
オープン対面キッチン採用
Bathroom浴室  Loose extensible bath feet
足がゆったり伸ばせるお風呂
Entrance玄関  Crime prevention measures already entrance door
防犯対策済み玄関ドア
Wash basin, toilet洗面台・洗面所  Wash basin, easy-to-use three-sided mirror type
使いやすい三面鏡タイプの洗面台
Local photos, including front road前面道路含む現地写真  Around it is also a quiet environment
周りも静かな環境です
Garden庭  Also it comes with a garden
お庭も付いてます
Parking lot駐車場  Parking spaces loose
駐車スペースゆったり
View photos from the dwelling unit住戸からの眺望写真  Day It is good
日当り良いですね
Otherその他  We can guide you today. Feel free to have your voice only please
本日ご案内出来ます。お気軽にお声がけ下さい
Livingリビング  Bright living
明るいリビングです
Local photos, including front road前面道路含む現地写真  It is also spacious environment around
周りの環境もゆったりしております
Otherその他  Suitable to the city, It is refreshing home
街にふさわしい、すっきりしたお家です
Local photos, including front road前面道路含む現地写真  There is almost no traffic
交通量ほとんどありません
Otherその他  Compartment Figure
区画図
Location
|