2009June
25,800,000 yen, 4LDK, 85.04 sq m
New Homes » Kanto » Saitama » Tokorozawa
 
| | Tokorozawa Prefecture 埼玉県所沢市 |
| Seibu Ikebukuro Line "Sayamagaoka" walk 1 minute 西武池袋線「狭山ヶ丘」歩1分 |
Features pickup 特徴ピックアップ | | Pre-ground survey / Parking two Allowed / Immediate Available / Super close / It is close to the city / Facing south / System kitchen / Bathroom Dryer / Flat to the station / Or more before road 6m / Japanese-style room / Barrier-free / Bathroom 1 tsubo or more / 2-story / South balcony / Underfloor Storage / The window in the bathroom / Atrium / Ventilation good / Water filter / Living stairs / City gas / All rooms are two-sided lighting / Flat terrain / Attic storage 地盤調査済 /駐車2台可 /即入居可 /スーパーが近い /市街地が近い /南向き /システムキッチン /浴室乾燥機 /駅まで平坦 /前道6m以上 /和室 /バリアフリー /浴室1坪以上 /2階建 /南面バルコニー /床下収納 /浴室に窓 /吹抜け /通風良好 /浄水器 /リビング階段 /都市ガス /全室2面採光 /平坦地 /屋根裏収納 | Price 価格 | | 25,800,000 yen 2580万円 | Floor plan 間取り | | 4LDK 4LDK | Units sold 販売戸数 | | 1 units 1戸 | Land area 土地面積 | | 96 sq m (measured) 96m2(実測) | Building area 建物面積 | | 85.04 sq m (measured) 85.04m2(実測) | Driveway burden-road 私道負担・道路 | | Nothing, Northwest 9m width 無、北西9m幅 | Completion date 完成時期(築年月) | | June 2009 2009年6月 | Address 住所 | | Tokorozawa Prefecture Higashisayamagaoka 2 埼玉県所沢市東狭山ケ丘2 | Traffic 交通 | | Seibu Ikebukuro Line "Sayamagaoka" walk 1 minute 西武池袋線「狭山ヶ丘」歩1分
| Related links 関連リンク | | [Related Sites of this company] 【この会社の関連サイト】 | Contact お問い合せ先 | | TEL: 0800-603-0804 [Toll free] mobile phone ・ Also available from PHS Caller ID is not notified Please contact the "saw SUUMO (Sumo)" If it does not lead, If the real estate company TEL:0800-603-0804【通話料無料】携帯電話・PHSからもご利用いただけます 発信者番号は通知されません 「SUUMO(スーモ)を見た」と問い合わせください つながらない方、不動産会社の方は
| Building coverage, floor area ratio 建ぺい率・容積率 | | 60% ・ 200% 60%・200% | Time residents 入居時期 | | Immediate available 即入居可 | Land of the right form 土地の権利形態 | | Ownership 所有権 | Structure and method of construction 構造・工法 | | Wooden 2-story 木造2階建 | Use district 用途地域 | | One dwelling 1種住居 | Overview and notices その他概要・特記事項 | | Facilities: Public Water Supply, This sewage, City gas, Parking: car space 設備:公営水道、本下水、都市ガス、駐車場:カースペース | Company profile 会社概要 | | <Mediation> Saitama Governor (10) No. 008534 (Corporation) Prefecture Building Lots and Buildings Transaction Business Association (Corporation) metropolitan area real estate Fair Trade Council member ERA Sayama Real Estate Co., Ltd. Iruma Yubinbango358-0003 Saitama Prefecture Iruma Toyooka 1-4-30 Castle Mansion Iruma Station first floor <仲介>埼玉県知事(10)第008534号(公社)埼玉県宅地建物取引業協会会員 (公社)首都圏不動産公正取引協議会加盟ERA狭山不動産(株)入間店〒358-0003 埼玉県入間市豊岡1-4-30 キャッスルマンション入間駅前1階 |
Local appearance photo現地外観写真  Local (May 2012) shooting
現地(2012年5月)撮影
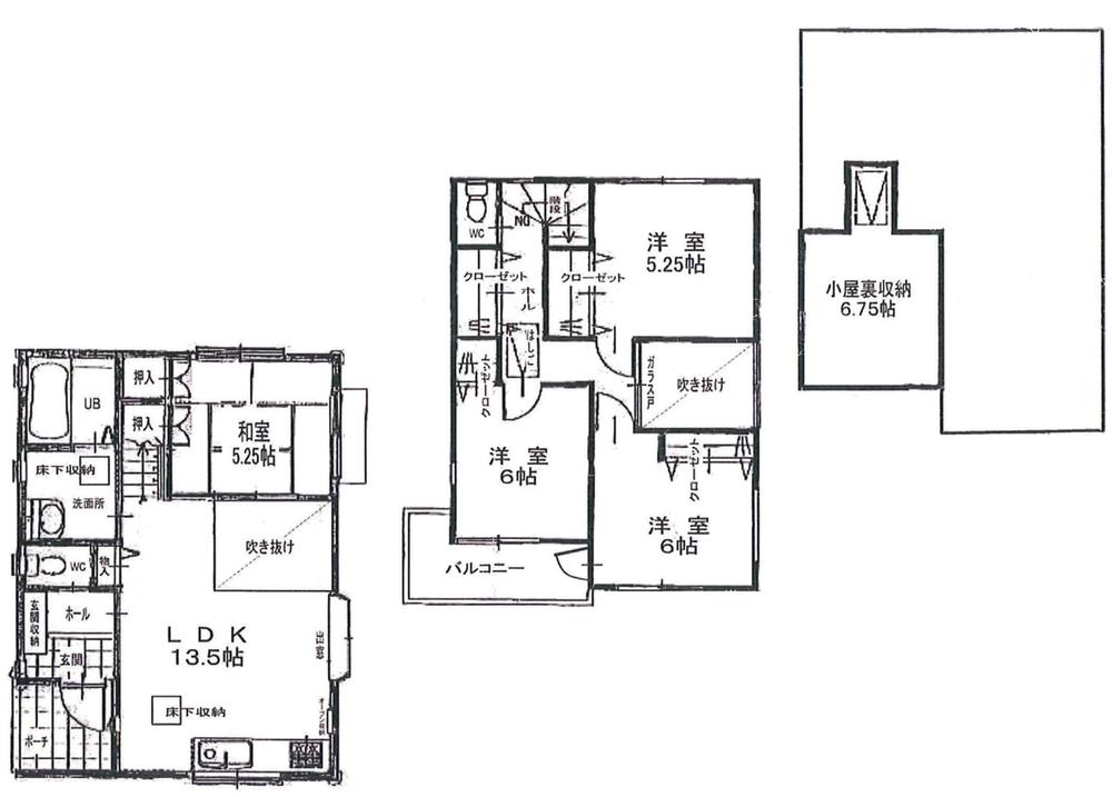
Floor plan間取り図  25,800,000 yen, 4LDK, Land area 96 sq m , Building area 85.04 sq m
2580万円、4LDK、土地面積96m2、建物面積85.04m2
Location
|