New Homes » Kanto » Saitama » Tokorozawa
 
| | Tokorozawa Prefecture 埼玉県所沢市 |
| Seibu Ikebukuro Line "Sayamagaoka" walk 18 minutes 西武池袋線「狭山ヶ丘」歩18分 |
| ■ All seven buildings of new construction condominiums, The completed ■ E Building LDK Furnished sale. ■ IDS-V method in pursuit of safety. Housing Performance Evaluation Report is scheduled acquisition. ■ Corresponding to the entire building flat 35S ■全7棟の新築分譲住宅、完成済み■E号棟LDK家具付き販売です。■安全性を追求したIDS-V工法。住宅性能評価書取得予定です。■全棟フラット35Sに対応 |
| ■ All seven buildings of new construction condominiums, A quiet residential area ■ IDS-V method in pursuit of safety. Housing Performance Evaluation Report is scheduled acquisition. ■ Corresponding to the entire building flat 35S ■ It is the Province road surface. ■ E Building is two car spaces Allowed ■全7棟の新築分譲住宅、閑静な住宅街■安全性を追求したIDS-V工法。住宅性能評価書取得予定です。■全棟フラット35Sに対応■南道路面です。■E号棟はカースペース2台可 |
Features pickup 特徴ピックアップ | | Construction housing performance with evaluation / Design house performance with evaluation / Corresponding to the flat-35S / Pre-ground survey / Immediate Available / Energy-saving water heaters / Facing south / System kitchen / Yang per good / All room storage / A quiet residential area / LDK15 tatami mats or more / Around traffic fewer / garden / Washbasin with shower / Face-to-face kitchen / Barrier-free / Toilet 2 places / Bathroom 1 tsubo or more / 2-story / South balcony / Double-glazing / Warm water washing toilet seat / Underfloor Storage / The window in the bathroom / TV monitor interphone / All living room flooring / City gas / All rooms are two-sided lighting 建設住宅性能評価付 /設計住宅性能評価付 /フラット35Sに対応 /地盤調査済 /即入居可 /省エネ給湯器 /南向き /システムキッチン /陽当り良好 /全居室収納 /閑静な住宅地 /LDK15畳以上 /周辺交通量少なめ /庭 /シャワー付洗面台 /対面式キッチン /バリアフリー /トイレ2ヶ所 /浴室1坪以上 /2階建 /南面バルコニー /複層ガラス /温水洗浄便座 /床下収納 /浴室に窓 /TVモニタ付インターホン /全居室フローリング /都市ガス /全室2面採光 | Price 価格 | | 22,900,000 yen ~ 23.8 million yen 2290万円 ~ 2380万円 | Floor plan 間取り | | 4LDK 4LDK | Units sold 販売戸数 | | 2 units 2戸 | Total units 総戸数 | | 7 units 7戸 | Land area 土地面積 | | 100.04 sq m ~ 100.05 sq m (30.26 tsubo ~ 30.26 tsubo) (measured) 100.04m2 ~ 100.05m2(30.26坪 ~ 30.26坪)(実測) | Building area 建物面積 | | 88.81 sq m ~ 94.39 sq m (26.86 tsubo ~ 28.55 square meters) 88.81m2 ~ 94.39m2(26.86坪 ~ 28.55坪) | Driveway burden-road 私道負担・道路 | | Road width: South 4m public road 道路幅:南4m公道 | Completion date 完成時期(築年月) | | 2013 end of September 2013年9月末 | Address 住所 | | Tokorozawa Prefecture Forest 3 埼玉県所沢市林3 | Traffic 交通 | | Seibu Ikebukuro Line "Sayamagaoka" walk 18 minutes Seibu Ikebukuro Line "Musashi Fujisawa" walk 23 minutes Seibu Ikebukuro Line "Kotesashi" walk 51 minutes 西武池袋線「狭山ヶ丘」歩18分 西武池袋線「武蔵藤沢」歩23分 西武池袋線「小手指」歩51分
| Related links 関連リンク | | [Related Sites of this company] 【この会社の関連サイト】 | Person in charge 担当者より | | Rep Sakino HiroshiIchiro Age: 30 Daigyokai Experience: 10 years I, Customers love the smile that are willing to buy My Home. We, as I will do my best hard can be provided in all of our customers to go meet the only one of my home in the world form. 担当者崎野 裕一朗年齢:30代業界経験:10年私は、お客様がマイホームを購入して喜んでいる笑顔が大好きです。全てのお客様に世界でたった一つのマイホームを満足いく形で提供できますよう一生懸命頑張ります。 | Contact お問い合せ先 | | TEL: 0800-603-3826 [Toll free] mobile phone ・ Also available from PHS Caller ID is not notified Please contact the "saw SUUMO (Sumo)" If it does not lead, If the real estate company TEL:0800-603-3826【通話料無料】携帯電話・PHSからもご利用いただけます 発信者番号は通知されません 「SUUMO(スーモ)を見た」と問い合わせください つながらない方、不動産会社の方は
| Building coverage, floor area ratio 建ぺい率・容積率 | | Kenpei rate: 60%, Volume ratio: 100% 建ペい率:60%、容積率:100% | Time residents 入居時期 | | Immediate available 即入居可 | Land of the right form 土地の権利形態 | | Ownership 所有権 | Structure and method of construction 構造・工法 | | Wooden 2-story (IDS-V type method) 木造2階建(IDS-V型工法) | Use district 用途地域 | | One low-rise 1種低層 | Land category 地目 | | Residential land 宅地 | Other limitations その他制限事項 | | Regulations have by the Landscape Act, Height ceiling Yes, Shade limit Yes, Irregular land 景観法による規制有、高さ最高限度有、日影制限有、不整形地 | Overview and notices その他概要・特記事項 | | Contact: Sakino HiroshiIchiro, Building confirmation number: HPA-13-03107-1 other 担当者:崎野 裕一朗、建築確認番号:HPA-13-03107-1他 | Company profile 会社概要 | | <Mediation> Saitama Governor (2) No. 020299 (Ltd.) Seibu net Home Yubinbango359-1106 Tokorozawa Prefecture Higashisayamagaoka 1-59-14 <仲介>埼玉県知事(2)第020299号(株)西武ネットホーム〒359-1106 埼玉県所沢市東狭山ケ丘1-59-14 |
Local appearance photo現地外観写真  Newly built condominiums with planting. Outer wall has adopted siding.
植栽のある新築分譲住宅。外壁はサイディング採用しております。
Livingリビング  E Building. Deals is furnished. Also put a sofa in the dining table.
E号棟。お得な家具付きです。ダイニングテーブルにソファーも置けます。
Kitchenキッチン  E Building. Face-to-face kitchen Popular. Top there is a sense of relief because it is open.
E号棟。人気のある対面キッチン。上部はオープンですので開放感がございます。
Floor plan間取り図  (E Building), Price 22,900,000 yen, 4LDK, Land area 100.04 sq m , Building area 88.81 sq m
(E号棟)、価格2290万円、4LDK、土地面積100.04m2、建物面積88.81m2
Local appearance photo現地外観写真  E Building. Hito for the Province road surface ・ Ventilation is good.
E号棟。南道路面のため陽当・通風良好です。
Livingリビング  E Building. Bright living space. Two-sided lighting.
E号棟。明るいリビングスペース。2面採光。
Bathroom浴室  E Building. 1 tsubo unit bus with a window.
E号棟。窓のある1坪ユニットバス。
Wash basin, toilet洗面台・洗面所  E Building. Vanity of shampoo dresser type.
E号棟。シャンプードレッサータイプの洗面化粧台。
Receipt収納  E Building. There is a convenient storage space in the kitchen.
E号棟。キッチンに便利な収納スペースがございます。
Toiletトイレ  E Building. Washlet is with.
E号棟。ウォシュレット付きです。
Parking lot駐車場  E Building. Planting with, Spacious car space.
E号棟。植栽つき、広々カースペース。
Balconyバルコニー  E Building (October 2013) Shooting
E号棟(2013年10月)撮影
Other introspectionその他内観  E Building. Good per sun because it is a two-sided lighting.
E号棟。2面採光ですので陽当たり良好。
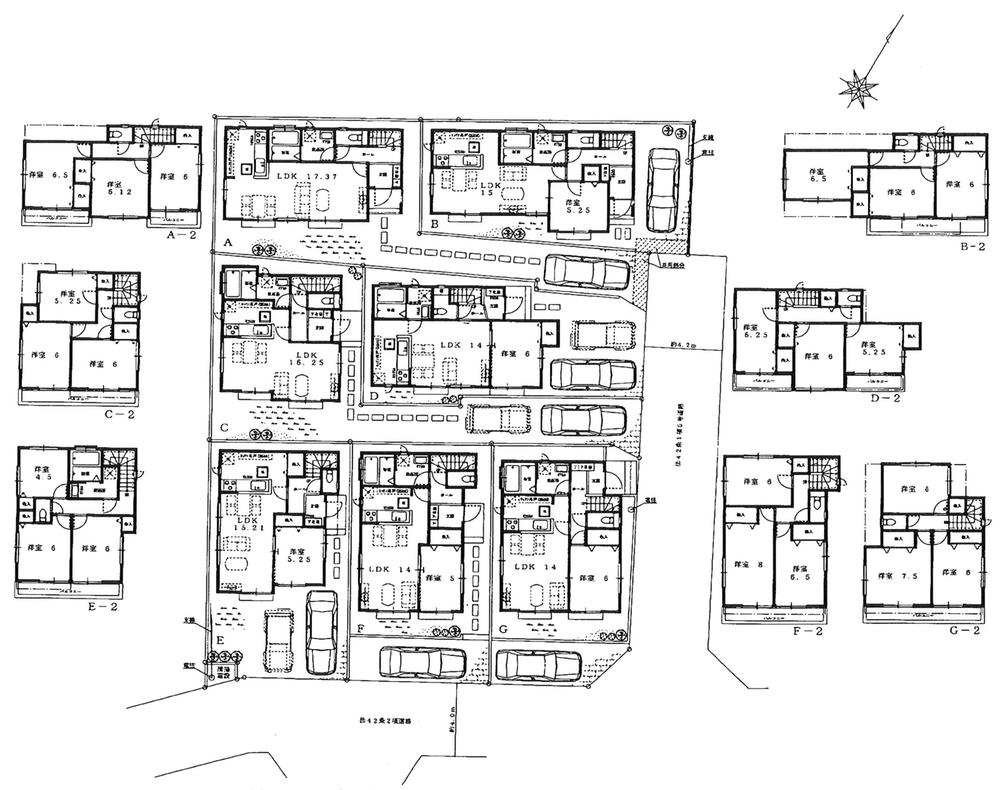
The entire compartment Figure全体区画図  The entire compartment Figure ・ Floor plan
全体区画図・間取図
Floor plan間取り図  (F Building), Price 23.8 million yen, 4LDK, Land area 100.05 sq m , Building area 94.39 sq m
(F号棟)、価格2380万円、4LDK、土地面積100.05m2、建物面積94.39m2
Livingリビング  E Building. Furnished Living.
E号棟。家具付きリビング。
Other introspectionその他内観  E Building. Closet with two Kaiyoshitsu.
E号棟。クローゼット付きの2階洋室。
 E Building. Bright 2 Kaiyoshitsu.
E号棟。明るい2階洋室。
 E Building. It is with a curtain rail.
E号棟。カーテンレール付きです。
 E Building. Western-style living room More.
E号棟。リビングつづきの洋室。
 E Building. Western-style living room More.
E号棟。リビングつづきの洋室。
Location
|