New Homes » Kanto » Saitama » Tokorozawa
 
| | Tokorozawa Prefecture 埼玉県所沢市 |
| JR Musashino Line "Higashitokorozawa" walk 6 minutes JR武蔵野線「東所沢」歩6分 |
| 6-minute walk from Higashitokorozawa Station Commute ・ It is very convenient location to go to school. Stylish room with marble flooring in the hall and LDK. Closet is attached to each room. 東所沢駅から徒歩6分 通勤・通学に大変便利な立地です。ホールやLDKに大理石調フローリングを使用したおしゃれな室内です。各居室にクローゼットが付いています。 |
| ■ Parking two possible ■ With loft ■ Paste power board ■ Supermarkets and schools, A good living environment there, such as banks close. ■駐車2台可能■ロフト付■パワーボード貼り■スーパーや学校、銀行などが近くにあり住環境が良好です。 |
Features pickup 特徴ピックアップ | | Corresponding to the flat-35S / Parking two Allowed / Facing south / System kitchen / Bathroom Dryer / All room storage / A quiet residential area / LDK15 tatami mats or more / Japanese-style room / Washbasin with shower / Face-to-face kitchen / Toilet 2 places / 2-story / Double-glazing / Warm water washing toilet seat / loft / Underfloor Storage / The window in the bathroom / TV monitor interphone / Dish washing dryer / Water filter / City gas フラット35Sに対応 /駐車2台可 /南向き /システムキッチン /浴室乾燥機 /全居室収納 /閑静な住宅地 /LDK15畳以上 /和室 /シャワー付洗面台 /対面式キッチン /トイレ2ヶ所 /2階建 /複層ガラス /温水洗浄便座 /ロフト /床下収納 /浴室に窓 /TVモニタ付インターホン /食器洗乾燥機 /浄水器 /都市ガス | Price 価格 | | 44,800,000 yen 4480万円 | Floor plan 間取り | | 4LDK 4LDK | Units sold 販売戸数 | | 1 units 1戸 | Land area 土地面積 | | 150.59 sq m 150.59m2 | Building area 建物面積 | | 101.85 sq m 101.85m2 | Driveway burden-road 私道負担・道路 | | Nothing, South 6m width 無、南6m幅 | Completion date 完成時期(築年月) | | February 2014 2014年2月 | Address 住所 | | Tokorozawa Prefecture Higashitokorozawawada 2 埼玉県所沢市東所沢和田2 | Traffic 交通 | | JR Musashino Line "Higashitokorozawa" walk 6 minutes JR武蔵野線「東所沢」歩6分 | Contact お問い合せ先 | | TEL: 0120-778772 [Toll free] Please contact the "saw SUUMO (Sumo)" TEL:0120-778772【通話料無料】「SUUMO(スーモ)を見た」と問い合わせください | Time residents 入居時期 | | February 2014 schedule 2014年2月予定 | Land of the right form 土地の権利形態 | | Ownership 所有権 | Structure and method of construction 構造・工法 | | Wooden 2-story 木造2階建 | Overview and notices その他概要・特記事項 | | Facilities: Public Water Supply, This sewage, City gas, Building confirmation number: SJK-KX1311060309, Parking: car space 設備:公営水道、本下水、都市ガス、建築確認番号:SJK-KX1311060309、駐車場:カースペース | Company profile 会社概要 | | <Mediation> Saitama Governor (7) No. 013630 (Corporation) All Japan Real Estate Association (Corporation) metropolitan area real estate Fair Trade Council member Co., Ltd. Yamaguchi planning design headquarters Yubinbango359-1113 Tokorozawa Prefecture Kita-cho, 9-5 <仲介>埼玉県知事(7)第013630号(公社)全日本不動産協会会員 (公社)首都圏不動産公正取引協議会加盟(株)山口企画設計本社〒359-1113 埼玉県所沢市喜多町9-5 |
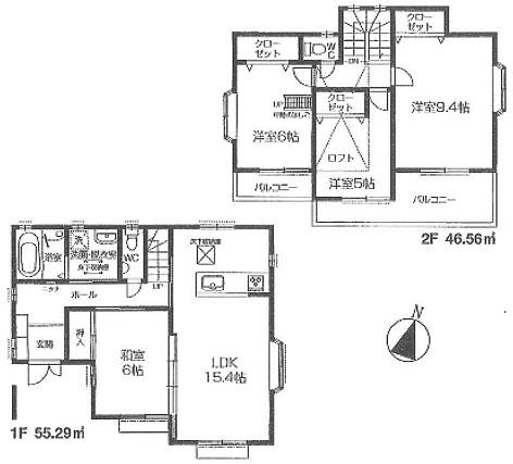
Floor plan間取り図  44,800,000 yen, 4LDK, Land area 150.59 sq m , Building area 101.85 sq m floor plan
4480万円、4LDK、土地面積150.59m2、建物面積101.85m2 間取り図
Other localその他現地  Local (December 10, 2013) Shooting
現地(2013年12月10日)撮影
 Local (December 10, 2013) Shooting
現地(2013年12月10日)撮影
Local photos, including front road前面道路含む現地写真  Local (December 10, 2013) Shooting
現地(2013年12月10日)撮影
Station駅  480m until Higashitokorozawa Station
東所沢駅まで480m
Other localその他現地  Local (December 10, 2013) Shooting
現地(2013年12月10日)撮影
Primary school小学校  480m to Wada Elementary School
和田小学校まで480m
Junior high school中学校  Yasumatsu 80m until junior high school
安松中学校まで80m
Supermarketスーパー  Until Yaoko Co., Ltd. 240m
ヤオコーまで240m
 Biggue up to 350m
ビッグエーまで350m
Drug storeドラッグストア  To drag Seimusu 500m
ドラッグセイムスまで500m
Location
|