New Homes » Kanto » Saitama » Tokorozawa
 
| | Tokorozawa Prefecture 埼玉県所沢市 |
| Seibu Ikebukuro Line "Akitsu" walk 10 minutes 西武池袋線「秋津」歩10分 |
| Convenient location that can be used 2 Line 2 Station Since the corner lot a day ・ Ventilation is good. Parking is 2 units can be parallel Land more than 49 square meters All rooms are facing southeast. Face-to-face is a kitchen with a popular counter. 2路線2駅利用できる便利な立地 角地なので日当たり・通風良好です。駐車は2台並列可能 土地49坪以上 全室東南向きです。人気のカウンター付対面キッチンです。 |
| ■ Is also housed in the other hall there will clean and Katazuki of the closet in each room. ■ Is a useful floor plan that Japanese-style room is adjacent to the living room. ■ Elementary school and a large supermarket is located living environment favorable to close. ■ Commuting because available 2 line 2 Station ・ It is convenient to go to school. ■各居室にクローゼットの他ホールにも収納がありすっきりと片付きます。■リビングに和室が隣接した便利な間取りです。■小学校や大型スーパーが近くにあり生活環境良好です。■2路線2駅利用できるので通勤・通学に便利です。 |
Features pickup 特徴ピックアップ | | Corresponding to the flat-35S / Parking two Allowed / 2 along the line more accessible / System kitchen / Bathroom Dryer / All room storage / A quiet residential area / LDK15 tatami mats or more / Corner lot / Japanese-style room / Washbasin with shower / Face-to-face kitchen / 2-story / Double-glazing / Underfloor Storage / TV monitor interphone / Water filter / City gas / Storeroom / All rooms facing southeast フラット35Sに対応 /駐車2台可 /2沿線以上利用可 /システムキッチン /浴室乾燥機 /全居室収納 /閑静な住宅地 /LDK15畳以上 /角地 /和室 /シャワー付洗面台 /対面式キッチン /2階建 /複層ガラス /床下収納 /TVモニタ付インターホン /浄水器 /都市ガス /納戸 /全室東南向き | Price 価格 | | 34,800,000 yen 3480万円 | Floor plan 間取り | | 4LDK + S (storeroom) 4LDK+S(納戸) | Units sold 販売戸数 | | 1 units 1戸 | Total units 総戸数 | | 2 units 2戸 | Land area 土地面積 | | 162.73 sq m 162.73m2 | Building area 建物面積 | | 96.79 sq m 96.79m2 | Driveway burden-road 私道負担・道路 | | Nothing, Northwest 7m width, Northeast 4.2m width 無、北西7m幅、北東4.2m幅 | Completion date 完成時期(築年月) | | January 2014 2014年1月 | Address 住所 | | Tokorozawa Prefecture, Oaza Shimoyasumatsu 埼玉県所沢市大字下安松 | Traffic 交通 | | Seibu Ikebukuro Line "Akitsu" walk 10 minutes JR Musashino Line "Shin Akitsu" walk 14 minutes 西武池袋線「秋津」歩10分 JR武蔵野線「新秋津」歩14分
| Contact お問い合せ先 | | TEL: 0120-778772 [Toll free] Please contact the "saw SUUMO (Sumo)" TEL:0120-778772【通話料無料】「SUUMO(スーモ)を見た」と問い合わせください | Time residents 入居時期 | | January 2014 2014年1月 | Land of the right form 土地の権利形態 | | Ownership 所有権 | Structure and method of construction 構造・工法 | | Wooden 2-story 木造2階建 | Overview and notices その他概要・特記事項 | | Facilities: Public Water Supply, This sewage, City gas, Building confirmation number: No. HPA-13-05742-1, Parking: car space 設備:公営水道、本下水、都市ガス、建築確認番号:第HPA-13-05742-1号、駐車場:カースペース | Company profile 会社概要 | | <Mediation> Saitama Governor (7) No. 013630 (Corporation) All Japan Real Estate Association (Corporation) metropolitan area real estate Fair Trade Council member Co., Ltd. Yamaguchi planning design headquarters Yubinbango359-1113 Tokorozawa Prefecture Kita-cho, 9-5 <仲介>埼玉県知事(7)第013630号(公社)全日本不動産協会会員 (公社)首都圏不動産公正取引協議会加盟(株)山口企画設計本社〒359-1113 埼玉県所沢市喜多町9-5 |
Rendering (appearance)完成予想図(外観)  (1 Building) Rendering
(1号棟)完成予想図
 (1 Building) Rendering
(1号棟)完成予想図
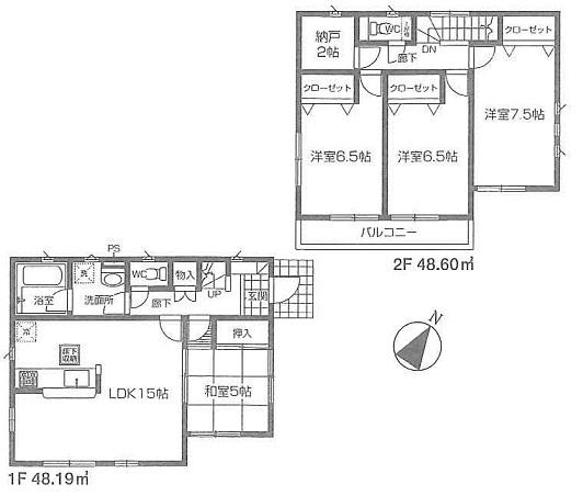
Floor plan間取り図  34,800,000 yen, 4LDK + S (storeroom), Land area 162.73 sq m , Building area 96.79 sq m floor plan
3480万円、4LDK+S(納戸)、土地面積162.73m2、建物面積96.79m2 間取り図
Local photos, including front road前面道路含む現地写真  Local (December 23, 2013) Shooting
現地(2013年12月23日)撮影
Station駅  Akitsu 800m to the Train Station
秋津駅まで800m
Other localその他現地  Local (December 23, 2013) Shooting
現地(2013年12月23日)撮影
Local photos, including front road前面道路含む現地写真  Local (December 23, 2013) Shooting
現地(2013年12月23日)撮影
Station駅  1120m until Shin Akitsu Station
新秋津駅まで1120m
Other localその他現地  Local (December 23, 2013) Shooting
現地(2013年12月23日)撮影
Primary school小学校  Yasumatsu until elementary school 640m
安松小学校まで640m
Other localその他現地  Local (December 23, 2013) Shooting
現地(2013年12月23日)撮影
Junior high school中学校  Yasumatsu 1600m until junior high school
安松中学校まで1600m
Other localその他現地  Local (December 23, 2013) Shooting
現地(2013年12月23日)撮影
Supermarketスーパー  Until Inageya 720m
いなげやまで720m
Location
|