|
|
Wako
埼玉県和光市
|
|
Tokyo Metro Yurakucho Line "subway Akatsuka" walk 28 minutes
東京メトロ有楽町線「地下鉄赤塚」歩28分
|
|
■ □ Current, Because of under construction, We will guide you through the complete listing of the same construction company □ ■
■□現在、建築中の為、同じ施工会社の完成物件をご案内致します□■
|
|
● Wako fifth elementary school ・ ・ A 15-minute walk ● Wako third junior high school ・ ・ 18-minute walk ● Tobu Tojo Line / Yurakucho ・ Fukutoshin / Toei Oedo Line Available Access good! Around ●, [Home improvement Shimachu Co., Ltd.] You can refresh the body facility [Paradise hot water] Appliances [Kojima electricity] general Hospital [Saitama hospital] Sports Facilities [Konami Sports Club] etc, Is the enhancement of the surrounding environment
●和光第五小学校・・徒歩15分●和光第三中学校・・徒歩18分●東武東上線/有楽町・副都心線/都営大江戸線利用可 交通アクセス良好!●周辺には、【ホームセンターの島忠】 体をリフレッシュできる施設【極楽湯】 家電の【コジマ電気】総合病院【埼玉病院】 スポーツ施設【コナミスポーツクラブ】等、充実の周辺環境です
|
Features pickup 特徴ピックアップ | | Facing south / System kitchen / Bathroom Dryer / Yang per good / All room storage / A quiet residential area / LDK15 tatami mats or more / Washbasin with shower / Barrier-free / Toilet 2 places / Underfloor Storage / TV monitor interphone / Leafy residential area / Ventilation good / Water filter / City gas 南向き /システムキッチン /浴室乾燥機 /陽当り良好 /全居室収納 /閑静な住宅地 /LDK15畳以上 /シャワー付洗面台 /バリアフリー /トイレ2ヶ所 /床下収納 /TVモニタ付インターホン /緑豊かな住宅地 /通風良好 /浄水器 /都市ガス |
Price 価格 | | 32,800,000 yen 3280万円 |
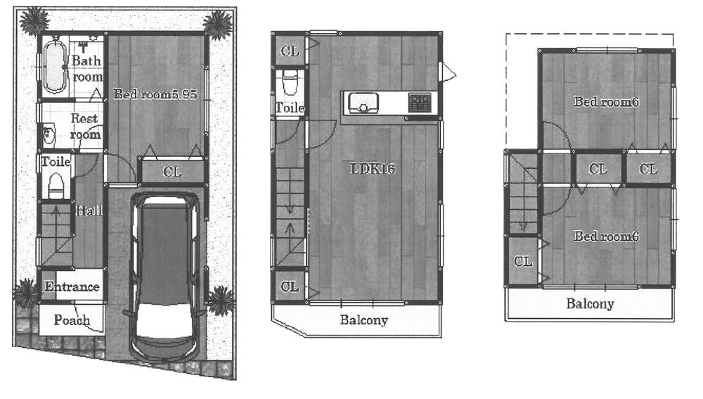
Floor plan 間取り | | 3LDK 3LDK |
Units sold 販売戸数 | | 1 units 1戸 |
Total units 総戸数 | | 1 units 1戸 |
Land area 土地面積 | | 57.55 sq m (measured) 57.55m2(実測) |
Building area 建物面積 | | 95.21 sq m (measured) 95.21m2(実測) |
Driveway burden-road 私道負担・道路 | | Nothing, South 4m width 無、南4m幅 |
Completion date 完成時期(築年月) | | December 2013 2013年12月 |
Address 住所 | | Wako milt 1 埼玉県和光市白子1 |
Traffic 交通 | | Tokyo Metro Yurakucho Line "subway Akatsuka" walk 28 minutes Tokyo Metro Yurakucho Line "subway Narimasu" walk 17 minutes Toei Oedo Line "Hikarigaoka" walk 22 minutes 東京メトロ有楽町線「地下鉄赤塚」歩28分 東京メトロ有楽町線「地下鉄成増」歩17分 都営大江戸線「光が丘」歩22分
|
Related links 関連リンク | | [Related Sites of this company] 【この会社の関連サイト】 |
Person in charge 担当者より | | [Regarding this property.] ■ Good day in the south road ■ Popular Hikarigaoka park near ■ Tojo Line ・ Yurakucho ・ Fukutoshin ・ Toei Oedo Line Available 【この物件について】■南道路で日当たり良好 ■人気の光が丘公園近く ■東上線・有楽町・副都心線・都営大江戸線利用可 |
Contact お問い合せ先 | | TEL: 0800-602-6285 [Toll free] mobile phone ・ Also available from PHS Caller ID is not notified Please contact the "saw SUUMO (Sumo)" If it does not lead, If the real estate company TEL:0800-602-6285【通話料無料】携帯電話・PHSからもご利用いただけます 発信者番号は通知されません 「SUUMO(スーモ)を見た」と問い合わせください つながらない方、不動産会社の方は
|
Building coverage, floor area ratio 建ぺい率・容積率 | | 60% ・ 200% 60%・200% |
Time residents 入居時期 | | Consultation 相談 |
Land of the right form 土地の権利形態 | | Ownership 所有権 |
Structure and method of construction 構造・工法 | | Wooden three-story 木造3階建 |
Use district 用途地域 | | One dwelling 1種住居 |
Overview and notices その他概要・特記事項 | | Facilities: Public Water Supply, This sewage, City gas, Building confirmation number: 00525, Parking: Garage 設備:公営水道、本下水、都市ガス、建築確認番号:00525、駐車場:車庫 |
Company profile 会社概要 | | <Mediation> Saitama Governor (1) Article 022 250 issue (stock) residence of laboratory Yubinbango353-0004 Saitama Prefecture Shiki Honcho 5-21-13 second floor <仲介>埼玉県知事(1)第022250号(株)住まいの研究室〒353-0004 埼玉県志木市本町5-21-13 2階 |