2013November
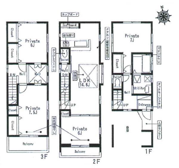
39,500,000 yen, 4LDK, 115.36 sq m
New Homes » Kanto » Saitama » Wako
 
| | Wako 埼玉県和光市 |
| Tobu Tojo Line "Wako" walk 10 minutes 東武東上線「和光市」歩10分 |
| 4LDK of "Wako" station walk 10 minutes! Access to the city center is also very convenient! 「和光市」駅徒歩10分の4LDK! 都心へのアクセスも大変便利です! |
| TV in the bathroom Entrance touch key system The LDK blow 浴室にTV 玄関はタッチキーシステム LDKには吹抜け |
Features pickup 特徴ピックアップ | | System kitchen / Yang per good / Siemens south road / Face-to-face kitchen / Toilet 2 places / Bathroom 1 tsubo or more / All room 6 tatami mats or more / Three-story or more システムキッチン /陽当り良好 /南側道路面す /対面式キッチン /トイレ2ヶ所 /浴室1坪以上 /全居室6畳以上 /3階建以上 | Price 価格 | | 39,500,000 yen 3950万円 | Floor plan 間取り | | 4LDK 4LDK | Units sold 販売戸数 | | 1 units 1戸 | Land area 土地面積 | | 70 sq m (registration) 70m2(登記) | Building area 建物面積 | | 115.36 sq m 115.36m2 | Driveway burden-road 私道負担・道路 | | Nothing, South 4m width 無、南4m幅 | Completion date 完成時期(築年月) | | November 2013 2013年11月 | Address 住所 | | Wako Niikura 1 埼玉県和光市新倉1 | Traffic 交通 | | Tobu Tojo Line "Wako" walk 10 minutes Tobu Tojo Line "Asaka" walk 12 minutes 東武東上線「和光市」歩10分 東武東上線「朝霞」歩12分
| Related links 関連リンク | | [Related Sites of this company] 【この会社の関連サイト】 | Contact お問い合せ先 | | TEL: 0800-603-1286 [Toll free] mobile phone ・ Also available from PHS Caller ID is not notified Please contact the "saw SUUMO (Sumo)" If it does not lead, If the real estate company TEL:0800-603-1286【通話料無料】携帯電話・PHSからもご利用いただけます 発信者番号は通知されません 「SUUMO(スーモ)を見た」と問い合わせください つながらない方、不動産会社の方は
| Building coverage, floor area ratio 建ぺい率・容積率 | | 60% ・ 200% 60%・200% | Time residents 入居時期 | | Consultation 相談 | Land of the right form 土地の権利形態 | | Ownership 所有権 | Structure and method of construction 構造・工法 | | Wooden three-story 木造3階建 | Use district 用途地域 | | One middle and high 1種中高 | Overview and notices その他概要・特記事項 | | Facilities: Public Water Supply, This sewage, Individual LPG, Building confirmation number: No. SJK-KX1311050674 設備:公営水道、本下水、個別LPG、建築確認番号:第SJK-KX1311050674号 | Company profile 会社概要 | | <Mediation> Minister of Land, Infrastructure and Transport (1) No. 007428 (Corporation) Prefecture Building Lots and Buildings Transaction Business Association (Corporation) metropolitan area real estate Fair Trade Council member Century 21 (Ltd.) Fukushima construction Yubinbango352-0001 Saitama Prefecture Niiza northeast 2-37-17 <仲介>国土交通大臣(1)第007428号(公社)埼玉県宅地建物取引業協会会員 (公社)首都圏不動産公正取引協議会加盟センチュリー21(株)フクシマ建設〒352-0001 埼玉県新座市東北2-37-17 |
 Local appearance photo
現地外観写真
Floor plan間取り図  39,500,000 yen, 4LDK, Land area 70 sq m , Building area 115.36 sq m
3950万円、4LDK、土地面積70m2、建物面積115.36m2
 Other
その他
 Other
その他
Location
|