New Homes » Kanto » Saitama » Wako
 
| | Wako 埼玉県和光市 |
| Tobu Tojo Line "Wako" walk 8 minutes 東武東上線「和光市」歩8分 |
| Corresponding to the flat-35S, 2 along the line more accessible, System kitchen, Bathroom Dryer, Washbasin with shower, Face-to-face kitchen, Toilet 2 places, Bathroom 1 tsubo or more, 2-story, South balcony, Warm water washing toilet seat フラット35Sに対応、2沿線以上利用可、システムキッチン、浴室乾燥機、シャワー付洗面台、対面式キッチン、トイレ2ヶ所、浴室1坪以上、2階建、南面バルコニー、温水洗浄便座 |
| ◆ 3-wire Available ◆ Antifouling outer wall adopted wash off the dirt in the rain ◆3線利用可◆雨で汚れを洗い落とす防汚外壁採用 |
Features pickup 特徴ピックアップ | | Corresponding to the flat-35S / 2 along the line more accessible / System kitchen / Bathroom Dryer / Washbasin with shower / Face-to-face kitchen / Toilet 2 places / Bathroom 1 tsubo or more / 2-story / South balcony / Warm water washing toilet seat / The window in the bathroom / TV monitor interphone / Three-story or more / City gas / All rooms are two-sided lighting フラット35Sに対応 /2沿線以上利用可 /システムキッチン /浴室乾燥機 /シャワー付洗面台 /対面式キッチン /トイレ2ヶ所 /浴室1坪以上 /2階建 /南面バルコニー /温水洗浄便座 /浴室に窓 /TVモニタ付インターホン /3階建以上 /都市ガス /全室2面採光 | Price 価格 | | 39,800,000 yen ~ 42,800,000 yen 3980万円 ~ 4280万円 | Floor plan 間取り | | 4LDK 4LDK | Units sold 販売戸数 | | 2 units 2戸 | Total units 総戸数 | | 2 units 2戸 | Land area 土地面積 | | 77.72 sq m ~ 100.05 sq m 77.72m2 ~ 100.05m2 | Building area 建物面積 | | 87.77 sq m ~ 96.04 sq m 87.77m2 ~ 96.04m2 | Driveway burden-road 私道負担・道路 | | Road width: 5.7m ~ 6.3m 道路幅:5.7m ~ 6.3m | Completion date 完成時期(築年月) | | February 2014 schedule 2014年2月予定 | Address 住所 | | Wako Niikura 1 埼玉県和光市新倉1 | Traffic 交通 | | Tobu Tojo Line "Wako" walk 8 minutes Tokyo Metro Yurakucho Line "Wako" walk 8 minutes Tokyo Metro Fukutoshin line "Wako" walk 8 minutes 東武東上線「和光市」歩8分 東京メトロ有楽町線「和光市」歩8分 東京メトロ副都心線「和光市」歩8分
| Related links 関連リンク | | [Related Sites of this company] 【この会社の関連サイト】 | Contact お問い合せ先 | | TEL: 0800-808-5704 [Toll free] mobile phone ・ Also available from PHS Caller ID is not notified Please contact the "saw SUUMO (Sumo)" If it does not lead, If the real estate company TEL:0800-808-5704【通話料無料】携帯電話・PHSからもご利用いただけます 発信者番号は通知されません 「SUUMO(スーモ)を見た」と問い合わせください つながらない方、不動産会社の方は
| Building coverage, floor area ratio 建ぺい率・容積率 | | Kenpei rate: 60%, Volume ratio: 200% 建ペい率:60%、容積率:200% | Time residents 入居時期 | | February 2014 schedule 2014年2月予定 | Land of the right form 土地の権利形態 | | Ownership 所有権 | Structure and method of construction 構造・工法 | | Wooden 2-story, Wooden three-story 木造2階建、木造3階建 | Use district 用途地域 | | One dwelling 1種住居 | Land category 地目 | | Residential land 宅地 | Overview and notices その他概要・特記事項 | | Building confirmation number: TKK 確済 No. 13-1165 ・ TKK 確済 No. 13-1166 建築確認番号:TKK確済13-1165号・TKK確済13-1166号 | Company profile 会社概要 | | <Mediation> Governor of Tokyo (1) No. 093720 (Corporation) All Japan Real Estate Association (Corporation) metropolitan area real estate Fair Trade Council member Co., Ltd. Nissei housing Yubinbango175-0093 Itabashi-ku, Tokyo Akatsukashin cho 1-24-2 <仲介>東京都知事(1)第093720号(公社)全日本不動産協会会員 (公社)首都圏不動産公正取引協議会加盟(株)日生ハウジング〒175-0093 東京都板橋区赤塚新町1-24-2 |
 Local appearance photo
現地外観写真
 Local appearance photo
現地外観写真
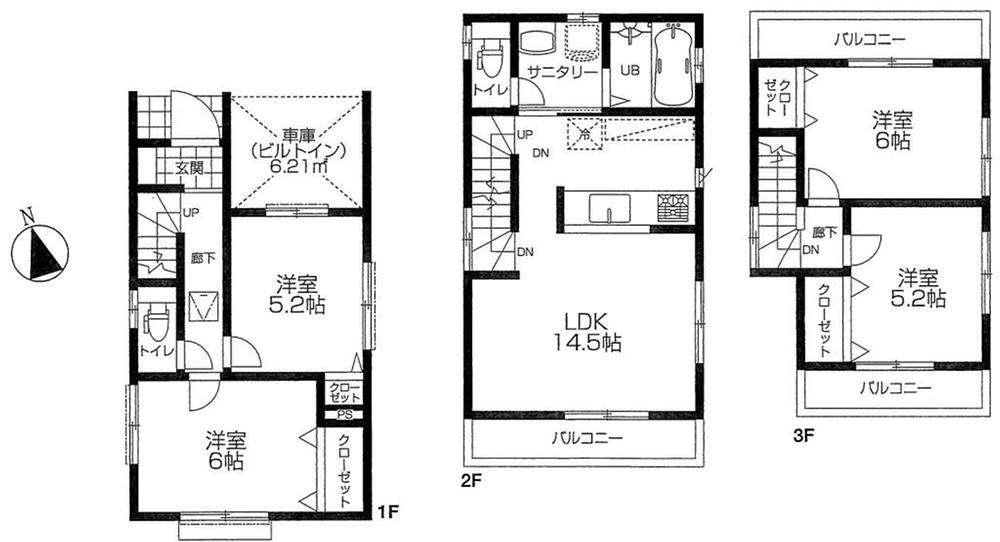
Floor plan間取り図  (1 Building), Price 42,800,000 yen, 4LDK, Land area 100.05 sq m , Building area 87.77 sq m
(1号棟)、価格4280万円、4LDK、土地面積100.05m2、建物面積87.77m2
 The entire compartment Figure
全体区画図
 (Building 2), Price 39,800,000 yen, 4LDK, Land area 77.72 sq m , Building area 96.04 sq m
(2号棟)、価格3980万円、4LDK、土地面積77.72m2、建物面積96.04m2
Location
|