|
|
Saitama Prefecture Warabi
埼玉県蕨市
|
|
JR Keihin Tohoku Line "bracken" walk 6 minutes
JR京浜東北線「蕨」歩6分
|
|
JR Keihin Tohoku Line "bracken" 6-minute walk of the good location.
JR京浜東北線「蕨」徒歩6分の好立地。
|
|
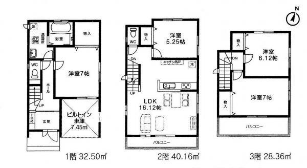
Good is per yang per south road. All rooms flooring. design ・ Construction housing performance evaluation report acquisition plans. Popular counter kitchen. Walk-in closet with. LDK16 Pledge than.
南道路につき陽当り良好です。全室フローリング。設計・建設住宅性能評価書取得予定。人気のカウンターキッチン。ウォークインクローゼット付。LDK16帖超。
|
Features pickup 特徴ピックアップ | | Construction housing performance with evaluation / Design house performance with evaluation / Corresponding to the flat-35S / System kitchen / Yang per good / All room storage / Siemens south road / LDK15 tatami mats or more / Shaping land / Face-to-face kitchen / Toilet 2 places / South balcony / Warm water washing toilet seat / Underfloor Storage / The window in the bathroom / TV monitor interphone / All living room flooring / Walk-in closet / Three-story or more / City gas 建設住宅性能評価付 /設計住宅性能評価付 /フラット35Sに対応 /システムキッチン /陽当り良好 /全居室収納 /南側道路面す /LDK15畳以上 /整形地 /対面式キッチン /トイレ2ヶ所 /南面バルコニー /温水洗浄便座 /床下収納 /浴室に窓 /TVモニタ付インターホン /全居室フローリング /ウォークインクロゼット /3階建以上 /都市ガス |
Price 価格 | | 38,800,000 yen 3880万円 |
Floor plan 間取り | | 4LDK 4LDK |
Units sold 販売戸数 | | 1 units 1戸 |
Total units 総戸数 | | 1 units 1戸 |
Land area 土地面積 | | 74.19 sq m (registration) 74.19m2(登記) |
Building area 建物面積 | | 115.92 sq m (registration) 115.92m2(登記) |
Driveway burden-road 私道負担・道路 | | Nothing, South 4m width 無、南4m幅 |
Completion date 完成時期(築年月) | | October 2013 2013年10月 |
Address 住所 | | Saitama Prefecture Warabi center 2 埼玉県蕨市中央2 |
Traffic 交通 | | JR Keihin Tohoku Line "bracken" walk 6 minutes JR京浜東北線「蕨」歩6分
|
Related links 関連リンク | | [Related Sites of this company] 【この会社の関連サイト】 |
Person in charge 担当者より | | Rep Kanno Takami Age: 40 Daigyokai Experience: 6 years customer so I will do my best so that many can respond to your request, It does not matter what it. First consultation. 担当者菅野 孝美年齢:40代業界経験:6年お客様のご要望に数多く応えられるよう頑張りますので、どんな事でもかまいません。まずはご相談を。 |
Contact お問い合せ先 | | TEL: 0800-603-0561 [Toll free] mobile phone ・ Also available from PHS Caller ID is not notified Please contact the "saw SUUMO (Sumo)" If it does not lead, If the real estate company TEL:0800-603-0561【通話料無料】携帯電話・PHSからもご利用いただけます 発信者番号は通知されません 「SUUMO(スーモ)を見た」と問い合わせください つながらない方、不動産会社の方は
|
Building coverage, floor area ratio 建ぺい率・容積率 | | 80% ・ 400% 80%・400% |
Time residents 入居時期 | | Consultation 相談 |
Land of the right form 土地の権利形態 | | Ownership 所有権 |
Structure and method of construction 構造・工法 | | Wooden three-story 木造3階建 |
Use district 用途地域 | | Commerce 商業 |
Overview and notices その他概要・特記事項 | | Contact: Kanno Takami, Facilities: Public Water Supply, This sewage, City gas, Building confirmation number: No. HPA-13-03593-1, Parking: car space 担当者:菅野 孝美、設備:公営水道、本下水、都市ガス、建築確認番号:第HPA-13-03593-1号、駐車場:カースペース |
Company profile 会社概要 | | <Mediation> Minister of Land, Infrastructure and Transport (3) No. 006,185 (one company) National Housing Industry Association (Corporation) metropolitan area real estate Fair Trade Council member Asahi Housing Corporation Omiya Yubinbango330-0845 Saitama Omiya-ku Nakamachi 1-54-3 Visionary III 4 floor <仲介>国土交通大臣(3)第006185号(一社)全国住宅産業協会会員 (公社)首都圏不動産公正取引協議会加盟朝日住宅(株)大宮店〒330-0845 埼玉県さいたま市大宮区仲町1-54-3 ビジョナリーIII 4階 |