New Homes » Kanto » Saitama » Yashio
 
| | Saitama Prefecture Yashio 埼玉県八潮市 |
| Tsukuba Express "Yashio" walk 26 minutes つくばエクスプレス「八潮」歩26分 |
| Super other commercial facilities and Yashio city hall, Central park, Matching such as junior high school is in the vicinity, Living environment favorable! ! Three-story house, All two buildings. スーパー他商業施設や八潮市役所、中央公園、中学校などが付近に揃い、住環境良好!! 3階建て住宅、全2棟。 |
| ◆ Three-story house, All two buildings. There are two cars car space (according to the model). ◆ LDK spacious 17 Pledge (1 Building), 18 Pledge (Building 2) Popular face-to-face kitchen! ◆ Housed many convenient! ! ◆ Entrance door card key support, Artificial marble top of the system Kitchen, Bathroom Dryer, Shower toilet, Ekojuzu such facilities enhancement! ☆ ☆ Otherwise, it is in the public a large number listing on our HP. New construction if trading commissions of Yashio is not required [First living creation] so! For more information, please refer to the following "Related Links" ☆ ☆ ◆3階建て住宅、全2棟。 カースペース2台分あります(車種により)。◆LDK広々17帖(1号棟)、18帖(2号棟) 人気の対面キッチン!◆収納が多く便利!!◆玄関ドアカードキー対応、人工大理石トップのシステムキッチン、浴室乾燥機、シャワートイレ、エコジューズ等設備も充実!☆☆他にも弊社HP上で多数物件を公開中です。 八潮の新築なら売買手数料が不要な【第一住創】で! 詳しくは下記『関連リンク』をご参照下さい☆☆ |
Features pickup 特徴ピックアップ | | Corresponding to the flat-35S / Year Available / Parking two Allowed / 2 along the line more accessible / LDK18 tatami mats or more / Energy-saving water heaters / Super close / It is close to the city / Facing south / System kitchen / Bathroom Dryer / Yang per good / All room storage / A quiet residential area / Or more before road 6m / Shaping land / Washbasin with shower / Face-to-face kitchen / Wide balcony / Barrier-free / Toilet 2 places / Bathroom 1 tsubo or more / 2 or more sides balcony / South balcony / Double-glazing / Zenshitsuminami direction / Otobasu / Warm water washing toilet seat / Underfloor Storage / The window in the bathroom / TV monitor interphone / Leafy residential area / Ventilation good / All living room flooring / Walk-in closet / Water filter / Three-story or more / roof balcony / Flat terrain フラット35Sに対応 /年内入居可 /駐車2台可 /2沿線以上利用可 /LDK18畳以上 /省エネ給湯器 /スーパーが近い /市街地が近い /南向き /システムキッチン /浴室乾燥機 /陽当り良好 /全居室収納 /閑静な住宅地 /前道6m以上 /整形地 /シャワー付洗面台 /対面式キッチン /ワイドバルコニー /バリアフリー /トイレ2ヶ所 /浴室1坪以上 /2面以上バルコニー /南面バルコニー /複層ガラス /全室南向き /オートバス /温水洗浄便座 /床下収納 /浴室に窓 /TVモニタ付インターホン /緑豊かな住宅地 /通風良好 /全居室フローリング /ウォークインクロゼット /浄水器 /3階建以上 /ルーフバルコニー /平坦地 | Event information イベント情報 | | Local guide Board (Please be sure to ask in advance) schedule / Local will guide you in public. Please feel free to call the toll-free "0120-840-813". 現地案内会(事前に必ずお問い合わせください)日程/公開中現地ご案内致します。 お気軽にフリーダイヤル『0120-840-813』までお電話下さい。 | Price 価格 | | 24,800,000 yen ・ 25,800,000 yen 2480万円・2580万円 | Floor plan 間取り | | 3LDK + S (storeroom) ・ 4LDK 3LDK+S(納戸)・4LDK | Units sold 販売戸数 | | 2 units 2戸 | Total units 総戸数 | | 2 units 2戸 | Land area 土地面積 | | 85.1 sq m ・ 101.14 sq m (25.74 tsubo ・ 30.59 square meters) 85.1m2・101.14m2(25.74坪・30.59坪) | Building area 建物面積 | | 103.5 sq m (31.30 square meters) 103.5m2(31.30坪) | Driveway burden-road 私道負担・道路 | | East 6.0m public road 東側6.0m公道 | Completion date 完成時期(築年月) | | 2013 in late November 2013年11月下旬 | Address 住所 | | Saitama Prefecture Yashio city center 1 埼玉県八潮市中央1 | Traffic 交通 | | Tsukuba Express "Yashio" walk 26 minutes Isesaki Tobu "Soka" walk 45 minutes Isesaki Tobu "Yatsuka" walk 45 minutes つくばエクスプレス「八潮」歩26分 東武伊勢崎線「草加」歩45分 東武伊勢崎線「谷塚」歩45分
| Related links 関連リンク | | [Related Sites of this company] 【この会社の関連サイト】 | Person in charge 担当者より | | Rep Kawahara Masaya industry experience: we will be happy to help with great sincerity to all of the things surrounding 26 years you live. Please please feel free to contact us. 担当者河原 雅也業界経験:26年お住まいにまつわる全ての事に真心をこめてお手伝いさせて頂きます。どうぞお気軽にご相談下さい。 | Contact お問い合せ先 | | TEL: 0120-840813 [Toll free] Please contact the "saw SUUMO (Sumo)" TEL:0120-840813【通話料無料】「SUUMO(スーモ)を見た」と問い合わせください | Building coverage, floor area ratio 建ぺい率・容積率 | | Kenpei rate: 80% ・ 200% 建ペい率:80%・200% | Time residents 入居時期 | | Immediate available 即入居可 | Land of the right form 土地の権利形態 | | Ownership 所有権 | Structure and method of construction 構造・工法 | | 2-story wooden 木造2階建て | Use district 用途地域 | | Residential 近隣商業 | Land category 地目 | | Residential land 宅地 | Overview and notices その他概要・特記事項 | | Contact: Kawahara Masaya, Building confirmation number: first SJK-KX1311200180 ・ 181 No. 担当者:河原 雅也、建築確認番号:第SJK-KX1311200180・181号 | Company profile 会社概要 | | <Mediation> Saitama Governor (1) No. 021793 (Corporation) Prefecture Building Lots and Buildings Transaction Business Association (Corporation) metropolitan area real estate Fair Trade Council member (Ltd.) first living creation Yubinbango340-0822 Saitama Prefecture Yashio Oaza Ose 788-1 TX Avenue Yashio <仲介>埼玉県知事(1)第021793号(公社)埼玉県宅地建物取引業協会会員 (公社)首都圏不動産公正取引協議会加盟(株)第一住創〒340-0822 埼玉県八潮市大字大瀬788-1 TXアベニュー八潮 |
Otherその他 ![Other. [First living creation] The Yashio Station 1 minute, But before the wicket eyes. If Yashio of sale commission Please leave first living creation of deals! Same day is possible guidance. Please feel free to call the toll-free "0120-840-813".](/images/saitama/yashio/8f2bea0049.jpg) [First living creation] The Yashio Station 1 minute, But before the wicket eyes. If Yashio of sale commission Please leave first living creation of deals! Same day is possible guidance. Please feel free to call the toll-free "0120-840-813".
【第一住創】は八潮駅1分、改札目の前です。 八潮の物件なら売買手数料がお得な第一住創にお任せ下さい! 即日ご案内可能です。 お気軽にフリーダイヤル「0120-840-813」までお電話下さい。
Local appearance photo現地外観写真  1 Building appearance (2013.12.05 shooting) a quiet residential area, Three-story house, All two buildings. East 6m public road surface, Good per sun! ! There are two cars car space (depending on model)
1号棟外観(2013.12.05撮影)閑静な住宅地、3階建て住宅、全2棟。東6m公道面、陽当たり良好!!カースペース2台分あります(車種による)
 Building 2 appearance
2号棟外観
Livingリビング  1 Building Living: spacious about 17 Pledge!
1号棟リビング:広々約17帖!
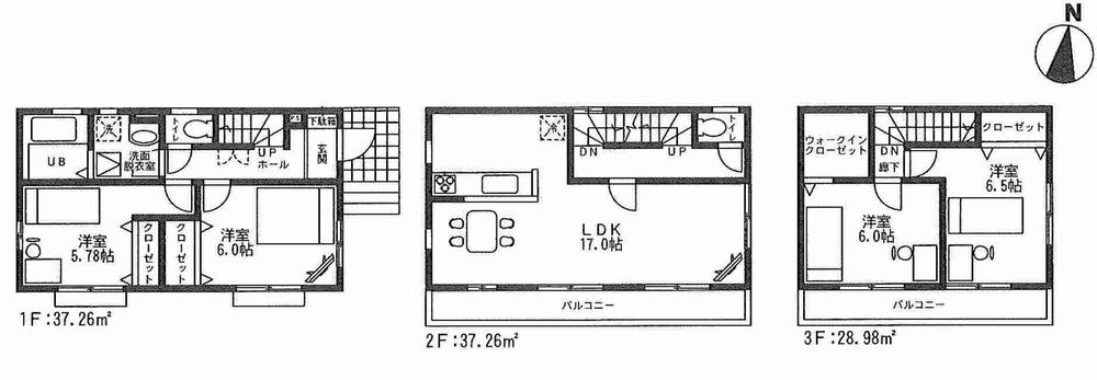
Floor plan間取り図  (1 Building), Price 25,800,000 yen, 4LDK, Land area 85.1 sq m , Building area 103.5 sq m
(1号棟)、価格2580万円、4LDK、土地面積85.1m2、建物面積103.5m2
Kitchenキッチン  Artificial marble top of the system Kitchen
人工大理石トップのシステムキッチン
Entrance玄関  Entrance door card key support
玄関ドアカードキー対応
Livingリビング  Sunny! (1 Building)
日当たり良好!(1号棟)
Bathroom浴室  Add cooked with Otobasu
追炊き付オートバス
Otherその他  With bathroom ventilation dryer
浴室換気乾燥機付
Toiletトイレ  Shower toilet
シャワートイレ
Non-living roomリビング以外の居室  Indoor (12 May 2013) Shooting
室内(2013年12月)撮影
Receipt収納  Large living accommodated two places!
大きなリビング収納が2カ所!
Livingリビング  Building 2 Living: spacious about 18 Pledge!
2号棟リビング:広々約18帖!
Floor plan間取り図  (Building 2), Price 24,800,000 yen, 3LDK+S, Land area 101.14 sq m , Building area 103.5 sq m
(2号棟)、価格2480万円、3LDK+S、土地面積101.14m2、建物面積103.5m2
The entire compartment Figure全体区画図  All two buildings subdivision
全2棟分譲地
Other localその他現地  Et al., "Soka Station" of the "Yashio Station" is also available.
「八潮駅」の他「草加駅」も利用可能です。
Supermarketスーパー  Maruetsu to Yashio shop 414m
マルエツ八潮店まで414m
 532m until Inageya Yashio Nakabanba shop
いなげや八潮中馬場店まで532m
Drug storeドラッグストア  Matsumotokiyoshi drugstore Yashio to the central shop 726m
マツモトキヨシドラッグストア八潮中央店まで726m
Home centerホームセンター  Yamada Denki Tecc Land until Yashio shop 260m
ヤマダ電機テックランド八潮店まで260m
Park公園  Yashio to Central Park 336m
八潮中央公園まで336m
Location
|