New Homes » Kanto » Saitama » Yashio
 
| | Saitama Prefecture Yashio 埼玉県八潮市 |
| Tsukuba Express "Yashio" walk 26 minutes つくばエクスプレス「八潮」歩26分 |
| Because we are facing to 6m road, Out Ease of car! Car spaces are reserved 2 car. LDK is spacious 17 Pledge, All room with storage, Storage enhancement also with walk-in closet! ! 6m道路に面している為、車の出し入れラクラク!カースペースは2台分確保。LDKは広々17帖、全居室収納付き、ウォークインクローゼットも付いて収納充実!! |
| A quiet residential area, Or more before road 6m, Yang per good, LDK15 tatami mats or more, All room storage, Walk-in closet, Parking two Allowed, System kitchen, Bathroom Dryer, Washbasin with shower, Toilet 2 places, South balcony, Double-glazing, Otobasu, Warm water washing toilet seat, Underfloor Storage, TV monitor interphone, Water filter, Three-story or more 閑静な住宅地、前道6m以上、陽当り良好、LDK15畳以上、全居室収納、ウォークインクロゼット、駐車2台可、システムキッチン、浴室乾燥機、シャワー付洗面台、トイレ2ヶ所、南面バルコニー、複層ガラス、オートバス、温水洗浄便座、床下収納、TVモニタ付インターホン、浄水器、3階建以上 |
Features pickup 特徴ピックアップ | | Parking two Allowed / System kitchen / Bathroom Dryer / Yang per good / All room storage / A quiet residential area / LDK15 tatami mats or more / Or more before road 6m / Washbasin with shower / Toilet 2 places / South balcony / Double-glazing / Otobasu / Warm water washing toilet seat / Underfloor Storage / TV monitor interphone / Walk-in closet / Water filter / Three-story or more 駐車2台可 /システムキッチン /浴室乾燥機 /陽当り良好 /全居室収納 /閑静な住宅地 /LDK15畳以上 /前道6m以上 /シャワー付洗面台 /トイレ2ヶ所 /南面バルコニー /複層ガラス /オートバス /温水洗浄便座 /床下収納 /TVモニタ付インターホン /ウォークインクロゼット /浄水器 /3階建以上 | Price 価格 | | 25,800,000 yen 2580万円 | Floor plan 間取り | | 4LDK 4LDK | Units sold 販売戸数 | | 1 units 1戸 | Total units 総戸数 | | 2 units 2戸 | Land area 土地面積 | | 85.1 sq m (registration) 85.1m2(登記) | Building area 建物面積 | | 103.5 sq m (registration) 103.5m2(登記) | Driveway burden-road 私道負担・道路 | | Nothing, East 6m width 無、東6m幅 | Completion date 完成時期(築年月) | | November 2013 2013年11月 | Address 住所 | | Saitama Prefecture Yashio city center 1 埼玉県八潮市中央1 | Traffic 交通 | | Tsukuba Express "Yashio" walk 26 minutes つくばエクスプレス「八潮」歩26分
| Related links 関連リンク | | [Related Sites of this company] 【この会社の関連サイト】 | Person in charge 担当者より | | Person in charge of real-estate and building FP Masaki Takayuki Age: 40 Daigyokai Experience: 10 years other than the above qualification Mortgage adviser. Your sale of Tobu wayside of real estate, Anything please contact us if you Relocation of thing. There is confidence in the sale. Please leave with peace of mind to me. 担当者宅建FP正木 孝之年齢:40代業界経験:10年上記以外資格 住宅ローンアドバイザー。東武沿線の不動産のご売却、お住み替えの事なら何でもご相談下さい。売却には自信があります。私に安心してお任せ下さい。 | Contact お問い合せ先 | | TEL: 0800-603-0709 [Toll free] mobile phone ・ Also available from PHS Caller ID is not notified Please contact the "saw SUUMO (Sumo)" If it does not lead, If the real estate company TEL:0800-603-0709【通話料無料】携帯電話・PHSからもご利用いただけます 発信者番号は通知されません 「SUUMO(スーモ)を見た」と問い合わせください つながらない方、不動産会社の方は
| Building coverage, floor area ratio 建ぺい率・容積率 | | 80% ・ 200% 80%・200% | Time residents 入居時期 | | Consultation 相談 | Land of the right form 土地の権利形態 | | Ownership 所有権 | Structure and method of construction 構造・工法 | | Wooden three-story 木造3階建 | Use district 用途地域 | | Residential 近隣商業 | Overview and notices その他概要・特記事項 | | Contact: Masaki Takayuki, Facilities: Public Water Supply, This sewage, Building confirmation number: No. SJK-KX1311200180, Parking: car space 担当者:正木 孝之、設備:公営水道、本下水、建築確認番号:第SJK-KX1311200180号、駐車場:カースペース | Company profile 会社概要 | | <Mediation> Minister of Land, Infrastructure and Transport (11) No. 002401 (Corporation) Prefecture Building Lots and Buildings Transaction Business Association (Corporation) metropolitan area real estate Fair Trade Council member (Ltd.) a central residential real estate Solutions Division Division Sales Section Yubinbango343-0845 Saitama Prefecture Koshigaya Minami Koshigaya 1-21-2 <仲介>国土交通大臣(11)第002401号(公社)埼玉県宅地建物取引業協会会員 (公社)首都圏不動産公正取引協議会加盟(株)中央住宅不動産ソリューション事業部本部営業課〒343-0845 埼玉県越谷市南越谷1-21-2 |
 Local appearance photo
現地外観写真
 Local photos, including front road
前面道路含む現地写真
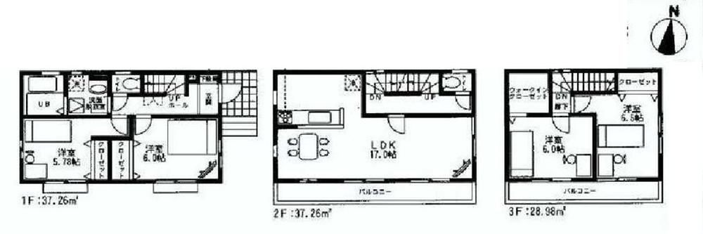
Floor plan間取り図  25,800,000 yen, 4LDK, Land area 85.1 sq m , Building area 103.5 sq m
2580万円、4LDK、土地面積85.1m2、建物面積103.5m2
Supermarketスーパー  Maruetsu to Yashio shop 460m
マルエツ八潮店まで460m
Junior high school中学校  Yashio Municipal Yashio 300m up to junior high school
八潮市立八潮中学校まで300m
Primary school小学校  Yashio 1000m to stand Yahata elementary school
八潮市立八幡小学校まで1000m
Supermarketスーパー  Until the Big A 310m
ビッグAまで310m
Location
|