|
|
Saitama Prefecture Yashio
埼玉県八潮市
|
|
Tsukuba Express "Yashio" walk 19 minutes
つくばエクスプレス「八潮」歩19分
|
|
Nursery in a quiet living environment ・ Elementary school are also nearby. Car space in all sections 40 square meters or more of the site also two (one small car) Yes! Please contact us to Porras group Plenty of you live.
閑静な住環境で保育園・小学校も近くにあります。全区画40坪以上の敷地でカースペースも2台(1台小型車)可!お住まいのことならポラスグループへご相談下さい。
|
|
Facing south, System kitchen, Bathroom Dryer, Yang per good, A quiet residential area, Washbasin with shower, Face-to-face kitchen, Toilet 2 places, 2-story, 2 or more sides balcony, Zenshitsuminami direction, Otobasu, Warm water washing toilet seat, City gas
南向き、システムキッチン、浴室乾燥機、陽当り良好、閑静な住宅地、シャワー付洗面台、対面式キッチン、トイレ2ヶ所、2階建、2面以上バルコニー、全室南向き、オートバス、温水洗浄便座、都市ガス
|
Features pickup 特徴ピックアップ | | Facing south / System kitchen / Bathroom Dryer / Yang per good / A quiet residential area / Washbasin with shower / Face-to-face kitchen / Toilet 2 places / 2-story / 2 or more sides balcony / Zenshitsuminami direction / Otobasu / Warm water washing toilet seat / City gas 南向き /システムキッチン /浴室乾燥機 /陽当り良好 /閑静な住宅地 /シャワー付洗面台 /対面式キッチン /トイレ2ヶ所 /2階建 /2面以上バルコニー /全室南向き /オートバス /温水洗浄便座 /都市ガス |
Price 価格 | | 23.8 million yen 2380万円 |
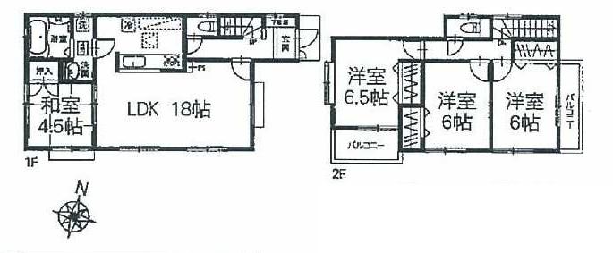
Floor plan 間取り | | 4LDK 4LDK |
Units sold 販売戸数 | | 1 units 1戸 |
Land area 土地面積 | | 136.55 sq m (registration) 136.55m2(登記) |
Building area 建物面積 | | 96.05 sq m (registration) 96.05m2(登記) |
Driveway burden-road 私道負担・道路 | | Nothing, South 5m width 無、南5m幅 |
Completion date 完成時期(築年月) | | December 2013 2013年12月 |
Address 住所 | | Saitama Prefecture Yashio Oaza Ose 埼玉県八潮市大字大瀬 |
Traffic 交通 | | Tsukuba Express "Yashio" walk 19 minutes つくばエクスプレス「八潮」歩19分
|
Related links 関連リンク | | [Related Sites of this company] 【この会社の関連サイト】 |
Person in charge 担当者より | | Person in charge of real-estate and building FP Masaki Takayuki Age: 40 Daigyokai Experience: 10 years other than the above qualification Mortgage adviser. Your sale of Tobu wayside of real estate, Anything please contact us if you Relocation of thing. There is confidence in the sale. Please leave with peace of mind to me. 担当者宅建FP正木 孝之年齢:40代業界経験:10年上記以外資格 住宅ローンアドバイザー。東武沿線の不動産のご売却、お住み替えの事なら何でもご相談下さい。売却には自信があります。私に安心してお任せ下さい。 |
Contact お問い合せ先 | | TEL: 0800-603-0709 [Toll free] mobile phone ・ Also available from PHS Caller ID is not notified Please contact the "saw SUUMO (Sumo)" If it does not lead, If the real estate company TEL:0800-603-0709【通話料無料】携帯電話・PHSからもご利用いただけます 発信者番号は通知されません 「SUUMO(スーモ)を見た」と問い合わせください つながらない方、不動産会社の方は
|
Building coverage, floor area ratio 建ぺい率・容積率 | | 60% ・ 200% 60%・200% |
Time residents 入居時期 | | Consultation 相談 |
Land of the right form 土地の権利形態 | | Ownership 所有権 |
Structure and method of construction 構造・工法 | | Wooden 2-story 木造2階建 |
Use district 用途地域 | | One middle and high 1種中高 |
Overview and notices その他概要・特記事項 | | Contact: Masaki Takayuki, Facilities: Public Water Supply, City gas, Building confirmation number: No. SJK-KX1311020585, Parking: car space 担当者:正木 孝之、設備:公営水道、都市ガス、建築確認番号:第SJK-KX1311020585号、駐車場:カースペース |
Company profile 会社概要 | | <Mediation> Minister of Land, Infrastructure and Transport (11) No. 002401 (Corporation) Prefecture Building Lots and Buildings Transaction Business Association (Corporation) metropolitan area real estate Fair Trade Council member (Ltd.) a central residential real estate Solutions Division Division Sales Section Yubinbango343-0845 Saitama Prefecture Koshigaya Minami Koshigaya 1-21-2 <仲介>国土交通大臣(11)第002401号(公社)埼玉県宅地建物取引業協会会員 (公社)首都圏不動産公正取引協議会加盟(株)中央住宅不動産ソリューション事業部本部営業課〒343-0845 埼玉県越谷市南越谷1-21-2 |