2013August
31,800,000 yen, 4LDK, 136.3 sq m
New Homes » Kanto » Saitama » Yoshikawa City
 
| | Saitama Prefecture Yoshikawa City 埼玉県吉川市 |
| JR Musashino Line "Yoshikawa" walk 15 minutes JR武蔵野線「吉川」歩15分 |
Price 価格 | | 31,800,000 yen 3180万円 | Floor plan 間取り | | 4LDK 4LDK | Units sold 販売戸数 | | 1 units 1戸 | Land area 土地面積 | | 107.53 sq m (measured) 107.53m2(実測) | Building area 建物面積 | | 136.3 sq m (measured) 136.3m2(実測) | Driveway burden-road 私道負担・道路 | | Nothing 無 | Completion date 完成時期(築年月) | | August 2013 2013年8月 | Address 住所 | | Saitama Prefecture Yoshikawa City Oaza coercive 埼玉県吉川市大字保 | Traffic 交通 | | JR Musashino Line "Yoshikawa" walk 15 minutes JR武蔵野線「吉川」歩15分 | Contact お問い合せ先 | | TEL: 0800-805-6286 [Toll free] mobile phone ・ Also available from PHS Caller ID is not notified Please contact the "saw SUUMO (Sumo)" If it does not lead, If the real estate company TEL:0800-805-6286【通話料無料】携帯電話・PHSからもご利用いただけます 発信者番号は通知されません 「SUUMO(スーモ)を見た」と問い合わせください つながらない方、不動産会社の方は
| Building coverage, floor area ratio 建ぺい率・容積率 | | 70% ・ 200% 70%・200% | Time residents 入居時期 | | Consultation 相談 | Land of the right form 土地の権利形態 | | Ownership 所有権 | Structure and method of construction 構造・工法 | | Wooden 2-story 木造2階建 | Use district 用途地域 | | One middle and high 1種中高 | Other limitations その他制限事項 | | Use consent Yu west 4m driveway Building area in the garage part about 20.28m2 including Building area in the penthouse part about 3.72m2 including 西側4m私道の使用承諾有 建物面積内車庫部分約20.28m2含 建物面積内塔屋部分約3.72m2含 | Overview and notices その他概要・特記事項 | | Parking: Garage 駐車場:車庫 | Company profile 会社概要 | | <Mediation> Minister of Land, Infrastructure and Transport (3) The 006,183 No. housing Information Center Koshigaya shop Seongnam Construction (Ltd.) Yubinbango343-0805 Saitama Prefecture Koshigaya Shinmei-cho 2-225-1 <仲介>国土交通大臣(3)第006183号住宅情報館 越谷店城南建設(株)〒343-0805 埼玉県越谷市神明町2-225-1 |
 Kitchen
キッチン
 Kitchen
キッチン
Kitchenキッチン  Kitchen seen from the living room
キッチンからみたリビング
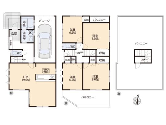
Floor plan間取り図  31,800,000 yen, 4LDK, Land area 107.53 sq m , Building area 136.3 sq m floor plan
3180万円、4LDK、土地面積107.53m2、建物面積136.3m2 間取り図
Livingリビング  Kitchen seen from the living room
リビングから見たキッチン
 Bathroom
浴室
Kitchenキッチン  Living viewed from the kitchen
リビングからみたキッチン
Non-living roomリビング以外の居室  Western style room
洋室
 Entrance
玄関
Wash basin, toilet洗面台・洗面所  Wash basin
洗面台
 Toilet
トイレ
Livingリビング  Living viewed from the kitchen
リビングからみたキッチン
Non-living roomリビング以外の居室  Western style room
洋室
 Living
リビング
 Western style room
洋室
Location
|