New Homes » Kansai » Shiga Prefecture » Higashiomi
 
| | Shiga Prefecture Higashiomi 滋賀県東近江市 |
| Ohmi Railway Yōkaichi Line "Yokaichi" walk 53 minutes 近江鉄道八日市線「八日市」歩53分 |
Features pickup 特徴ピックアップ | | Measures to conserve energy / Corresponding to the flat-35S / Airtight high insulated houses / Pre-ground survey / Year Available / Parking two Allowed / Energy-saving water heaters / It is close to the city / Bathroom Dryer / Yang per good / Flat to the station / A quiet residential area / LDK15 tatami mats or more / Japanese-style room / Shaping land / Washbasin with shower / Wide balcony / Toilet 2 places / Bathroom 1 tsubo or more / 2-story / 2 or more sides balcony / Double-glazing / Otobasu / Warm water washing toilet seat / The window in the bathroom / TV monitor interphone / High-function toilet / Leafy residential area / Urban neighborhood / Mu front building / Ventilation good / All-electric / A large gap between the neighboring house / Flat terrain / Development subdivision in 省エネルギー対策 /フラット35Sに対応 /高気密高断熱住宅 /地盤調査済 /年内入居可 /駐車2台可 /省エネ給湯器 /市街地が近い /浴室乾燥機 /陽当り良好 /駅まで平坦 /閑静な住宅地 /LDK15畳以上 /和室 /整形地 /シャワー付洗面台 /ワイドバルコニー /トイレ2ヶ所 /浴室1坪以上 /2階建 /2面以上バルコニー /複層ガラス /オートバス /温水洗浄便座 /浴室に窓 /TVモニタ付インターホン /高機能トイレ /緑豊かな住宅地 /都市近郊 /前面棟無 /通風良好 /オール電化 /隣家との間隔が大きい /平坦地 /開発分譲地内 | Event information イベント情報 | | (Please make a reservation beforehand) (事前に必ず予約してください) | Price 価格 | | 17.5 million yen ~ 18.5 million yen 1750万円 ~ 1850万円 | Floor plan 間取り | | 4LDK ~ 4LDK + S (storeroom) 4LDK ~ 4LDK+S(納戸) | Units sold 販売戸数 | | 4 units 4戸 | Total units 総戸数 | | 4 units 4戸 | Land area 土地面積 | | 156.15 sq m ~ 179.37 sq m (47.23 tsubo ~ 54.25 tsubo) (Registration) 156.15m2 ~ 179.37m2(47.23坪 ~ 54.25坪)(登記) | Building area 建物面積 | | 99.63 sq m ~ 101.65 sq m (30.13 tsubo ~ 30.74 square meters) 99.63m2 ~ 101.65m2(30.13坪 ~ 30.74坪) | Driveway burden-road 私道負担・道路 | | Road width: 6m, Asphaltic pavement 道路幅:6m、アスファルト舗装 | Completion date 完成時期(築年月) | | In late September 2013 2013年9月下旬 | Address 住所 | | Shiga Prefecture Higashiomi Nakoji cho 滋賀県東近江市中小路町 | Traffic 交通 | | Ohmi Railway Yōkaichi Line "Yokaichi" walk 53 minutes 近江鉄道八日市線「八日市」歩53分
| Related links 関連リンク | | [Related Sites of this company] 【この会社の関連サイト】 | Contact お問い合せ先 | | Seta housing (Yes) TEL: 0800-808-5270 [Toll free] mobile phone ・ Also available from PHS Caller ID is not notified Please contact the "saw SUUMO (Sumo)" If it does not lead, If the real estate company 瀬田ハウジング(有)TEL:0800-808-5270【通話料無料】携帯電話・PHSからもご利用いただけます 発信者番号は通知されません 「SUUMO(スーモ)を見た」と問い合わせください つながらない方、不動産会社の方は
| Most price range 最多価格帯 | | 18 million yen (2 units) 1800万円台(2戸) | Building coverage, floor area ratio 建ぺい率・容積率 | | Kenpei rate: 60%, Volume ratio: 200% 建ペい率:60%、容積率:200% | Time residents 入居時期 | | Immediate available 即入居可 | Land of the right form 土地の権利形態 | | Ownership 所有権 | Construction 施工 | | A A | Use district 用途地域 | | One middle and high 1種中高 | Overview and notices その他概要・特記事項 | | Building confirmation number: H25SHC110048, H25SHC110049, H25SHC110050, H25SHC110051 建築確認番号:H25SHC110048、H25SHC110049、H25SHC110050、H25SHC110051 | Company profile 会社概要 | | <Mediation> Governor of Shiga Prefecture (3) Seta housing (with) No. 002690 Yubinbango520-2141 Otsu, Shiga Prefecture Oe 2-12-30 Cosmo Seta 104 <仲介>滋賀県知事(3)第002690号瀬田ハウジング(有)〒520-2141 滋賀県大津市大江2-12-30 コスモ瀬田104 |
Local appearance photo現地外観写真  Local (11 May 2013) shooting 1 Building
現地(2013年11月)撮影1号棟
 Local (11 May 2013) Shooting Building 2
現地(2013年11月)撮影 2号棟
 Local (11 May 2013) Shooting Building 3
現地(2013年11月)撮影 3号棟
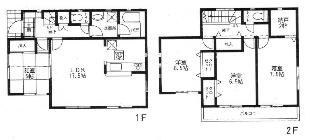
Floor plan間取り図  (1 Building), Price 17.8 million yen, 4LDK+S, Land area 156.15 sq m , Building area 101.65 sq m
(1号棟)、価格1780万円、4LDK+S、土地面積156.15m2、建物面積101.65m2
Local appearance photo現地外観写真  Local (11 May 2013) Shooting 4 Building
現地(2013年11月)撮影 4号棟
Livingリビング  Indoor (11 May 2013) Shooting
室内(2013年11月)撮影
Bathroom浴室  Indoor (11 May 2013) Shooting
室内(2013年11月)撮影
Kitchenキッチン  Indoor (11 May 2013) Shooting
室内(2013年11月)撮影
Non-living roomリビング以外の居室  Indoor (11 May 2013) Shooting
室内(2013年11月)撮影
Floor plan間取り図  (Building 2), Price 18.5 million yen, 4LDK, Land area 179.37 sq m , Building area 100.84 sq m
(2号棟)、価格1850万円、4LDK、土地面積179.37m2、建物面積100.84m2
Location
|