New Homes » Kansai » Shiga Prefecture » Higashiomi

| | Shiga Prefecture Higashiomi 滋賀県東近江市 |
| JR Tokaido Line "Notogawa" walk 7 minutes JR東海道本線「能登川」歩7分 |
| Solar power system, It is close to the city, All-electric, Parking two Allowed, LDK18 tatami mats or more, Pre-ground survey, Corresponding to the flat-35S, Year Available, Energy-saving water heaters, Super close, System kitchen 太陽光発電システム、市街地が近い、オール電化、駐車2台可、LDK18畳以上、地盤調査済、フラット35Sに対応、年内入居可、省エネ給湯器、スーパーが近い、システムキッチン |
| 10 year warranty Since solar power is equipped with, To the great help of the household! Parking is also a possible two, City soon! 10年保証付き 太陽光発電が搭載されていますので、家計の大きな助けに!駐車も2台可能で、市街地すぐ! |
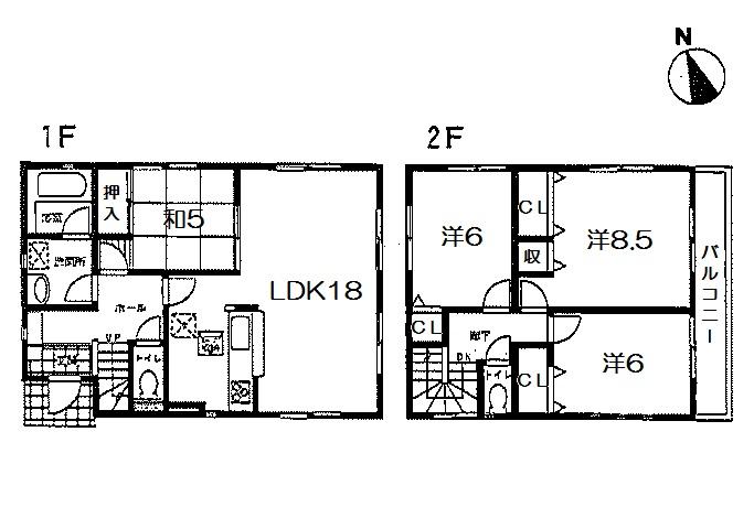
Features pickup 特徴ピックアップ | | Corresponding to the flat-35S / Solar power system / Pre-ground survey / Year Available / Parking two Allowed / LDK18 tatami mats or more / Energy-saving water heaters / Super close / It is close to the city / System kitchen / Bathroom Dryer / All room storage / Flat to the station / Or more before road 6m / garden / Washbasin with shower / Face-to-face kitchen / Toilet 2 places / 2-story / Double-glazing / Warm water washing toilet seat / Underfloor Storage / The window in the bathroom / IH cooking heater / All room 6 tatami mats or more / Water filter / All-electric フラット35Sに対応 /太陽光発電システム /地盤調査済 /年内入居可 /駐車2台可 /LDK18畳以上 /省エネ給湯器 /スーパーが近い /市街地が近い /システムキッチン /浴室乾燥機 /全居室収納 /駅まで平坦 /前道6m以上 /庭 /シャワー付洗面台 /対面式キッチン /トイレ2ヶ所 /2階建 /複層ガラス /温水洗浄便座 /床下収納 /浴室に窓 /IHクッキングヒーター /全居室6畳以上 /浄水器 /オール電化 | Price 価格 | | 26,800,000 yen 2680万円 | Floor plan 間取り | | 4LDK 4LDK | Units sold 販売戸数 | | 1 units 1戸 | Land area 土地面積 | | 150 sq m (registration) 150m2(登記) | Building area 建物面積 | | 99.63 sq m (registration) 99.63m2(登記) | Driveway burden-road 私道負担・道路 | | Nothing 無 | Completion date 完成時期(築年月) | | December 2013 2013年12月 | Address 住所 | | Shiga Prefecture Higashiomi Kakimi cho 滋賀県東近江市垣見町 | Traffic 交通 | | JR Tokaido Line "Notogawa" walk 7 minutes JR Tokaido Line "Inae" walk 55 minutes Omi railway main line "Goka Zhuang" walk 61 minutes JR東海道本線「能登川」歩7分 JR東海道本線「稲枝」歩55分 近江鉄道本線「五箇荘」歩61分
| Contact お問い合せ先 | | Pitattohausu Omihachiman store (Ltd.) KS Residential TEL: 0800-603-9540 [Toll free] mobile phone ・ Also available from PHS Caller ID is not notified Please contact the "saw SUUMO (Sumo)" If it does not lead, If the real estate company ピタットハウス近江八幡店(株)KSレジデンシャルTEL:0800-603-9540【通話料無料】携帯電話・PHSからもご利用いただけます 発信者番号は通知されません 「SUUMO(スーモ)を見た」と問い合わせください つながらない方、不動産会社の方は
| Building coverage, floor area ratio 建ぺい率・容積率 | | 60% ・ 200% 60%・200% | Time residents 入居時期 | | December 2013 2013年12月 | Land of the right form 土地の権利形態 | | Ownership 所有権 | Structure and method of construction 構造・工法 | | Wooden 2-story 木造2階建 | Use district 用途地域 | | One dwelling 1種住居 | Overview and notices その他概要・特記事項 | | Facilities: Public Water Supply, This sewage, All-electric, Building confirmation number: SHC113590, Parking: car space 設備:公営水道、本下水、オール電化、建築確認番号:SHC113590、駐車場:カースペース | Company profile 会社概要 | | <Mediation> Governor of Shiga Prefecture (1) the first 003,239 No. Pitattohausu Omihachiman store (Ltd.) KS Residential Yubinbango523-0031 Shiga Prefecture Omihachiman Horikami cho 190-1 <仲介>滋賀県知事(1)第003239号ピタットハウス近江八幡店(株)KSレジデンシャル〒523-0031 滋賀県近江八幡市堀上町190-1 |
Floor plan間取り図  26,800,000 yen, 4LDK, Land area 150 sq m , Building area 99.63 sq m
2680万円、4LDK、土地面積150m2、建物面積99.63m2
Otherその他  2 Gochi is 25,500,000 yen! Parking three Allowed!
2号地は2550万円!駐車3台可!
Location
|