|
|
Kusatsu City, Shiga Prefecture
滋賀県草津市
|
|
JR Tokaido Line "Kusatsu" walk 20 minutes
JR東海道本線「草津」歩20分
|
|
Walk from JR Kusatsu Station 20 minutes! Parking one Allowed! Plan be changed!
JR草津駅まで徒歩20分!駐車1台可!プラン変更可!
|
|
Kasanui 540m to East Elementary School! Kasanui 570m to east kindergarten! 1150m to stingray Square! HPOS
笠縫東小学校まで540m!笠縫東幼稚園まで570m!エイスクエアまで1150m!HPOS
|
Features pickup 特徴ピックアップ | | System kitchen / Washbasin with shower / Barrier-free / Toilet 2 places / Bathroom 1 tsubo or more / Double-glazing / Otobasu / Warm water washing toilet seat / Underfloor Storage / Three-story or more / City gas / Flat terrain システムキッチン /シャワー付洗面台 /バリアフリー /トイレ2ヶ所 /浴室1坪以上 /複層ガラス /オートバス /温水洗浄便座 /床下収納 /3階建以上 /都市ガス /平坦地 |
Price 価格 | | 22,800,000 yen 2280万円 |
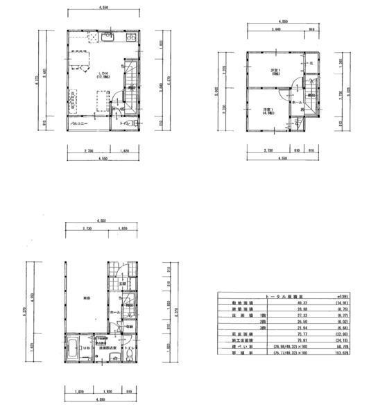
Floor plan 間取り | | 2LDK 2LDK |
Units sold 販売戸数 | | 1 units 1戸 |
Land area 土地面積 | | 49.96 sq m (registration) 49.96m2(登記) |
Building area 建物面積 | | 75.77 sq m 75.77m2 |
Driveway burden-road 私道負担・道路 | | Nothing, Northwest 4m width (contact the road width 6m) 無、北西4m幅(接道幅6m) |
Completion date 完成時期(築年月) | | May 2014 2014年5月 |
Address 住所 | | Kusatsu City, Shiga Prefecture Hirai 4 滋賀県草津市平井4 |
Traffic 交通 | | JR Tokaido Line "Kusatsu" walk 20 minutes JR東海道本線「草津」歩20分
|
Related links 関連リンク | | [Related Sites of this company] 【この会社の関連サイト】 |
Person in charge 担当者より | | Rep Yushan Hideyuki 担当者玉山 英幸 |
Contact お問い合せ先 | | TEL: 0800-808-5228 [Toll free] mobile phone ・ Also available from PHS Caller ID is not notified Please contact the "saw SUUMO (Sumo)" If it does not lead, If the real estate company TEL:0800-808-5228【通話料無料】携帯電話・PHSからもご利用いただけます 発信者番号は通知されません 「SUUMO(スーモ)を見た」と問い合わせください つながらない方、不動産会社の方は
|
Building coverage, floor area ratio 建ぺい率・容積率 | | 60% ・ 200% 60%・200% |
Time residents 入居時期 | | Consultation 相談 |
Land of the right form 土地の権利形態 | | Ownership 所有権 |
Structure and method of construction 構造・工法 | | Wooden three-story 木造3階建 |
Use district 用途地域 | | Two mid-high 2種中高 |
Overview and notices その他概要・特記事項 | | Contact: Yushan Hideyuki, Facilities: Public Water Supply, This sewage, City gas, Building confirmation number: No. H25-2421 担当者:玉山 英幸、設備:公営水道、本下水、都市ガス、建築確認番号:H25-2421号 |
Company profile 会社概要 | | <Mediation> Governor of Shiga Prefecture (3) No. 002691 (Corporation), Shiga Prefecture, Building Lots and Buildings Transaction Business Association (Corporation) Kinki district Real Estate Fair Trade Council member Century 21 (Ltd.) Park home Yubinbango525-0066 Kusatsu City, Shiga Prefecture Yahashi machi 113-1 <仲介>滋賀県知事(3)第002691号(公社)滋賀県宅地建物取引業協会会員 (公社)近畿地区不動産公正取引協議会加盟センチュリー21(株)パークホーム〒525-0066 滋賀県草津市矢橋町113-1 |